查看完整案例

收藏

下载

翻译
Firm: TALLER
Type: Residential › Apartment Multi Unit Housing
STATUS: Concept
SIZE: 10,000 sqft - 25,000 sqft
BUDGET: $5M - 10M
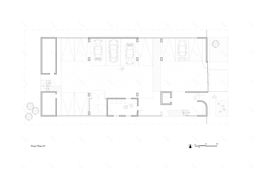
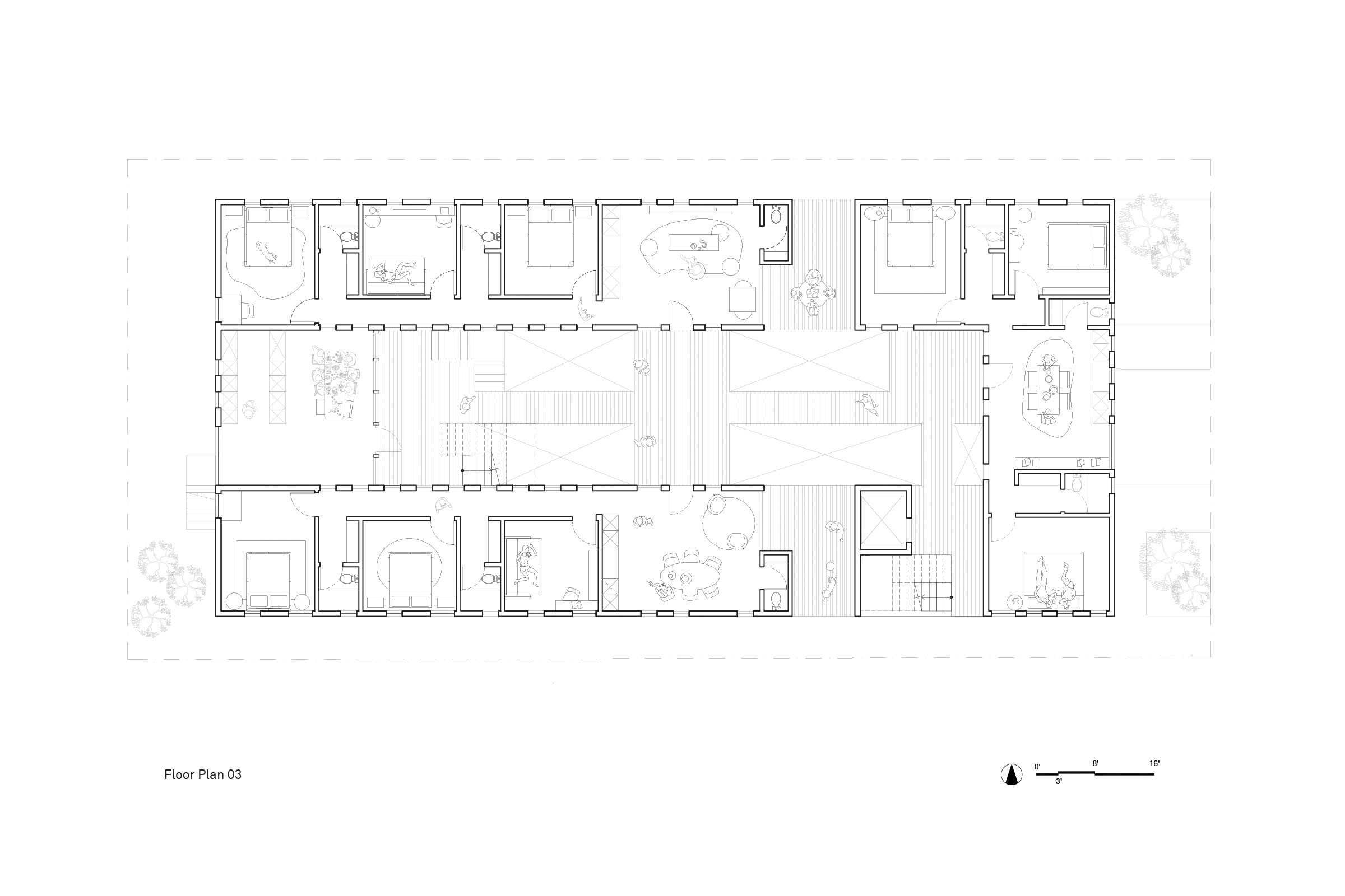
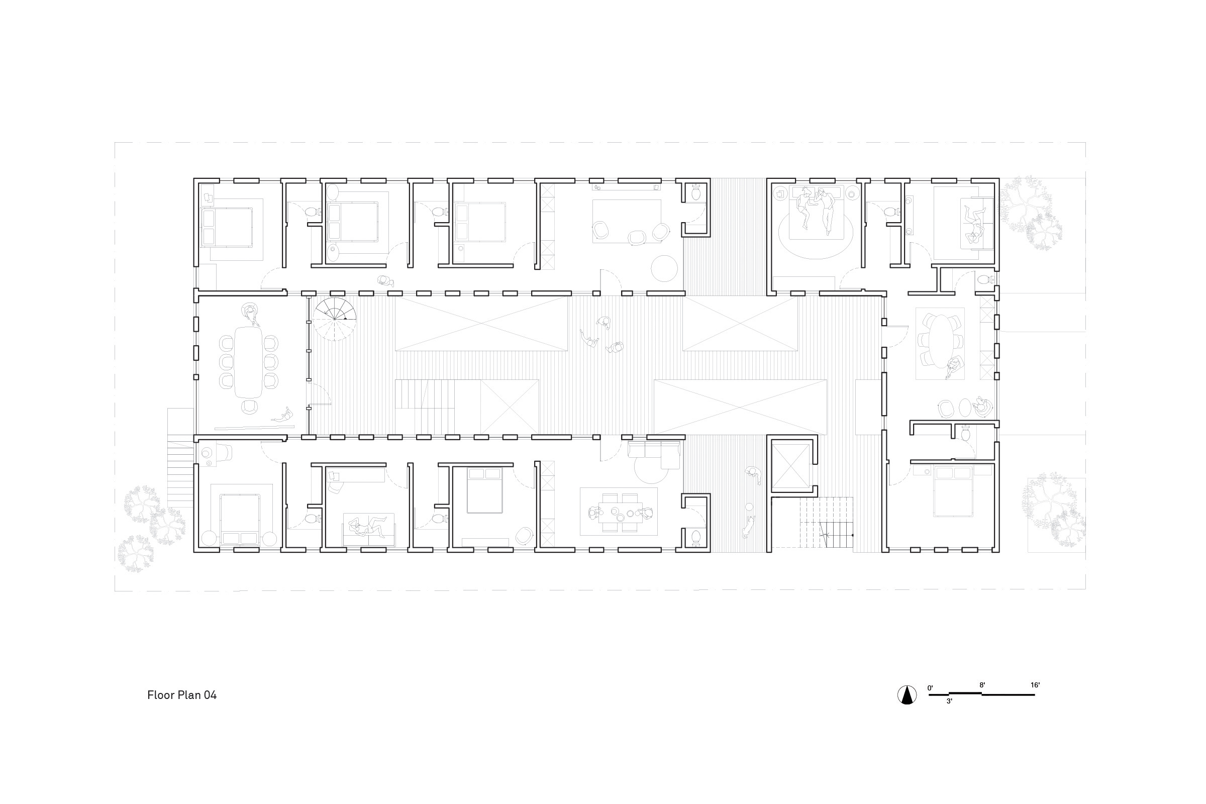
The Van Ness apartments are designed as a co-living complex intended to appeal to Los Angeles creatives. The client approached us with a unique program intended to mix housing with an eclectic array of amenity spaces meant to foster collaboration and creative expression. Via the manipulation of a courtyard typology, the building becomes a breathing, creative organism in and of itself, promoting collaborations and performing efficiently in the Southern California climate. By designing the units to be semi-prefabricated and using industrial materials in novel ways, the design is able to maximize aesthetic appeal while maintaining the project on budget and schedule.
客服
消息
收藏
下载
最近












