查看完整案例

收藏

下载

翻译
Firm: Pejman Tayebi Architects
Type: Residential › Apartment Multi Unit Housing
STATUS: Built
YEAR: 2020
SIZE: 5000 sqft - 10,000 sqft
BUDGET: $10K - 50K
"Apartment" and "Rural country house" are usually two different concepts.
vernacular architecture of the project region is known with large balconies and wooden structure. Challenge was to it and restore this concept to the building that was supposed to use modern architecture.
In the past, most of the local people lived in houses with large semi-open spaces. But now the dense urban space doesn't allow it. Considering the poor view of the neighboring building.
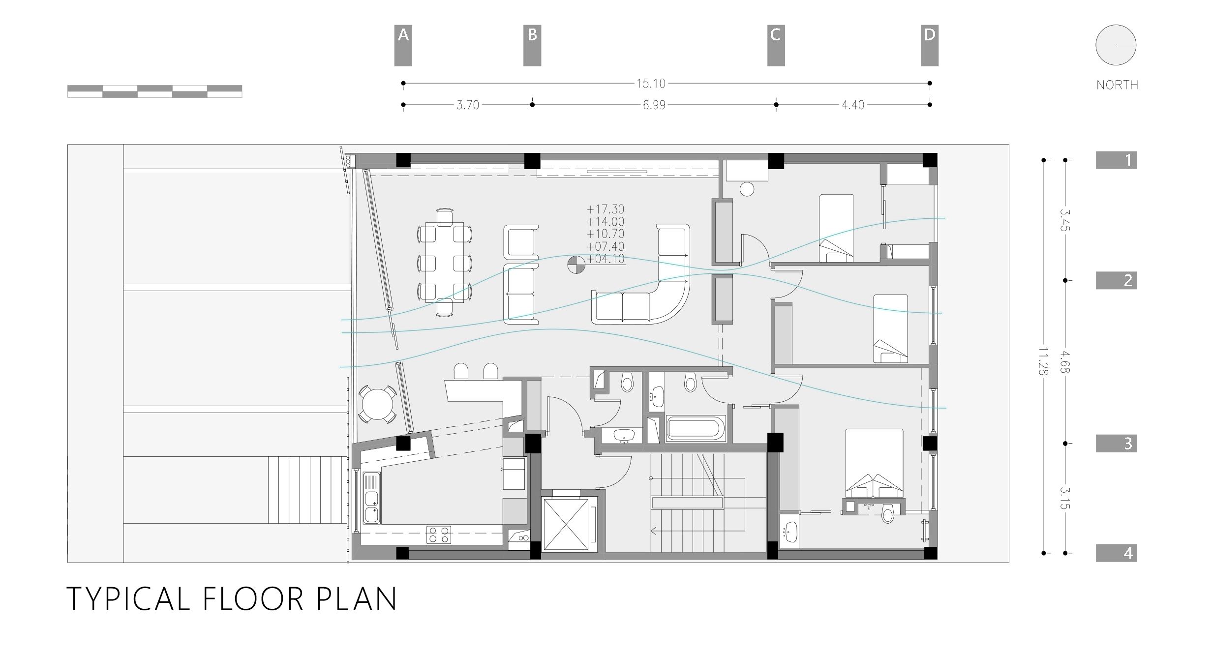
To do this, first we rotated the balcony in a way that it could have a good view of the green space at the end of the alley. We also covered the balcony wall with wooden façade that would evoke the structure of the vernacular architecture. This wooden lattice wall became the foundation of the building's visual form and concept.
The design of the peripheral spaces continued along with the overall design. The entrance of the complex, the lobby, the parking lot roof and the lighting of that space were also combined with this wooden pattern. rooftop-entrance was considered as a mass intertwined with the wooden pattern.
Due to the humid climate of this area, there was a need for natural ventilation, so the corridors and doors of the rooms were positioned in a way that were in line with the wind direction. A narrow opening in a closet located in the hallway helped to establish the natural ventilation.
In the process of designing the interiors of the units, we decided to make the space as simple and minimal as possible in order to let the balconie and its wooden pattern paly the rule . giving the the users and residents the freedom of choosing their own types of furniture, textures and styles of interior design. because In the project location, it's common to sell houses without furnitures.
design associate : Nasim Alvandy
construction team: Mohammad Ali Tayebi, Milad Safarnejad, Rabi Taji, Mohammad Rastgoo
mechanical (HVAC) : Shahram Roosta, Mostafa Sotoodeh
Electrical : E. Parvaresh, Arman Omidi
客服
消息
收藏
下载
最近




























