查看完整案例

收藏

下载

翻译
Firm: Witte Sundell
Type: Residential › Apartment
STATUS: Built
YEAR: 2017
SIZE: 1000 sqft - 3000 sqft
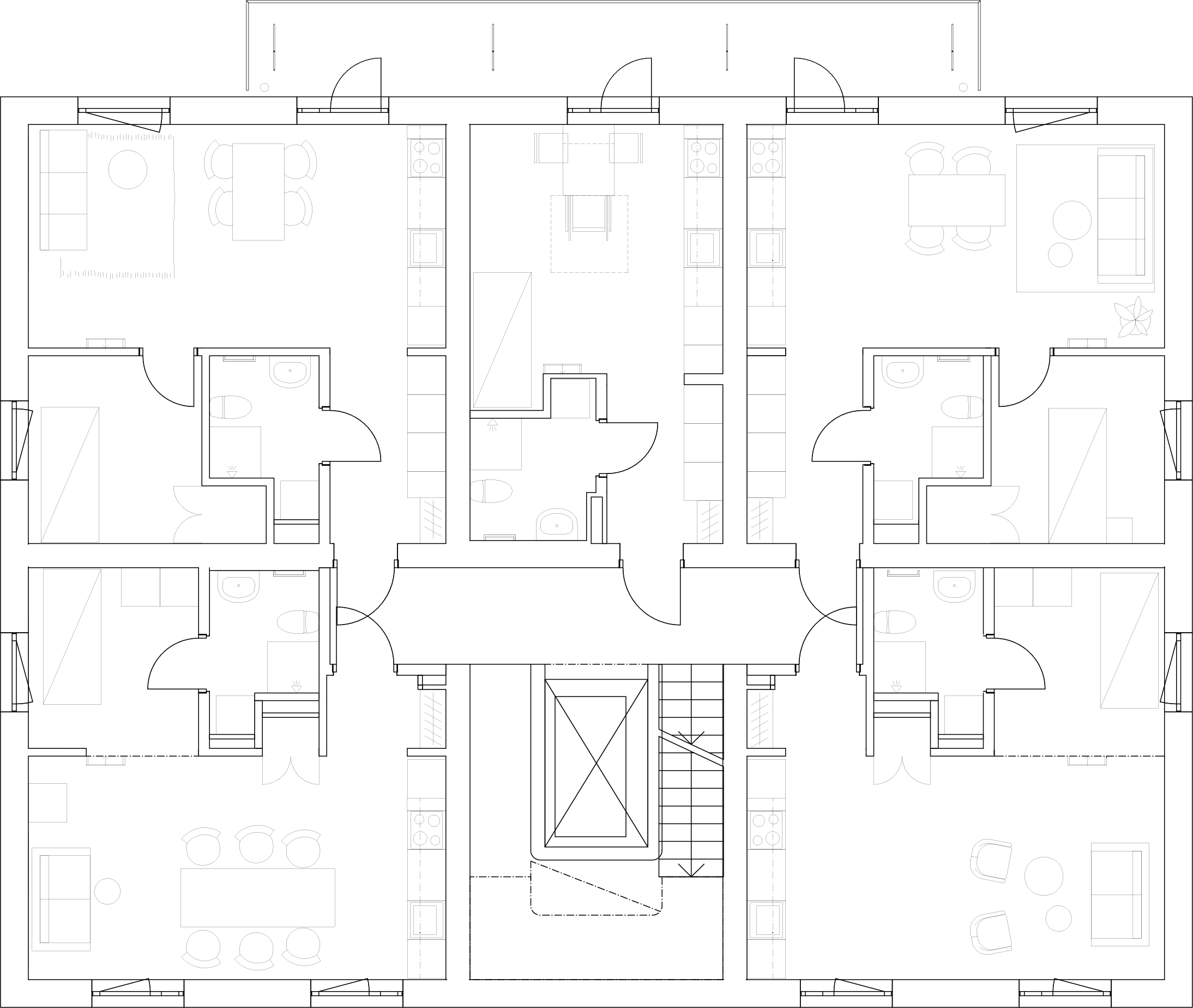
Kv. Integration is a residential building entirely built of cross-laminated timber build at the Bomässan (Living fair) in Vallastaden, Linköping Sweden, 2017. Both material and design are carefully considered to minimize the building's environmental impact both during the construction phase and throughout its lifetime. The building is classified as a passive house and does not require any additional energy for heating.
The permitted height of the plot was a maximum of four floors, but the building height was not controlled in the detailed development plan. It provided room for making extra-high floors and creating homes with close to four meters in height. It provides a living environment out of the ordinary, with airy living rooms and raised sleeping lofts. The house marks an important corner on one of the streets connecting the northern and southern parts of Vallastaden. Much work has been done to create a modern ornamented wooden facade with historical references. The windows are marked with subtle reliefs. On the roof there is a winter garden in glass for meetings and cultivation and a storage room for the apartments. Sedum is growing on the other roof surfaces.
In the project, Witte Sundell has worked as both architect and developer. This has given room to try new ways of building residential environments and to take on an architectural role with responsibility for all parts of the design.
Contractor: Martinsons
Engineer: Sweco
Client: Koncepthus
Photography: Fredric Boukari
客服
消息
收藏
下载
最近

















