查看完整案例

收藏

下载
糖果银行项目是一个混合使用的设施,基于"一个大客厅在城市的概念。该网站规模庞大,但精心设计的桌椅是为了表达顺卡多公司的口号:"我们希望人们与糖果一起在餐桌上度过家庭时光。"在社交媒体的现代时代,一张照片可以瞬间抓住人们的心灵和心灵,建筑物本身的形象成为媒介,吸引人们到区域城市,并创造难忘的体验,以张贴到世界。
真实性和价值
为了满足全球游客的期望,我们设计了13倍于实际尺寸的桌椅,追求建筑设计的质量和形式。我们相信,要创造建筑价值,关键是要努力使家具看起来真实.这反过来又有利于城镇和公司,使其作为广告媒介的吸引力最大化。这是从长期角度讨论建筑应如何有助于形成城市景观和企业活动的结果。由此产生的紧凑网站是一个自己的世界,为游客提供了一个令人兴奋的独一无二的体验。
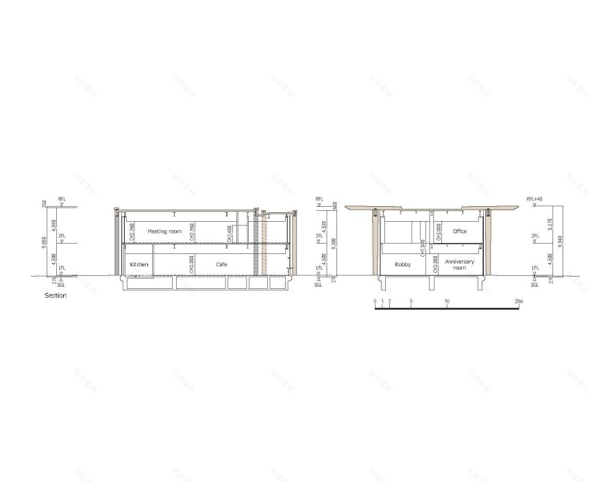
大型家具和玻璃盒
该建筑由两个主要元素组成:作为避雨和避日之所的家具和确保舒适的玻璃盒。大型桌椅设计的目的是为了密切反映实际家具,同时克服与结构、油漆、排水和机械系统有关的挑战,创造一个提高城市和吸引人们的现实。玻璃盒的设计抽象和简单的细节作为家具背景。
在城里的一个大客厅
大型客厅的概念已经成为家庭聚集的标志性场所,也是欢迎客人来到该地区的地方。为了让第一次来这里的游客更容易理解和熟悉,这些桌椅都是在顺卡多的咖啡厅、商品店和当地的岩田寺银行分行的图片中设计的。其目的是通过一个连接人们的社区综合体来创造城市的活力。
客服
消息
收藏
下载
最近




















