查看完整案例

收藏

下载

翻译
Conceptual Project: High Park Tiny House
Academic 2nd Year Project 2020
Environmental Design - Interior Design Specification - OCAD University [Toronto, ON, Canada]
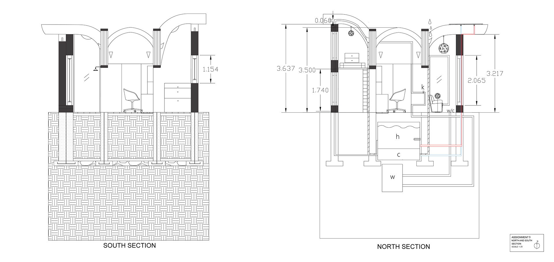
🌸: Conceptual idea comes from the cherry blossom trees that were around the high park site, which was close to the selected project area. The project is a conceptual project that imagined how a small-sized private house could be designed. It, therefore, took the cherry blossom petal as inspiration and shaped it into the curved roof and walls. On the floor plan, it is clear that the house looks like a flower, with each petal functioned as one room, including a washroom, bedroom, kitchenette, workshop, and a central reading/gaming area. By designing an orbit sliding bookshelf, the house solved the issue with circulation. The owner shall use the reading table tied to the bookshelf, and use the remote control to slide the bookshelf to the other side when using specific rooms.
Elevations
Floor plan and sections
Designer:
Victoria Lyu
客服
消息
收藏
下载
最近










