查看完整案例

收藏

下载

翻译
Arcadia Sales Office
Scope of Works: Full architectural and structural drawings
As Built Photos
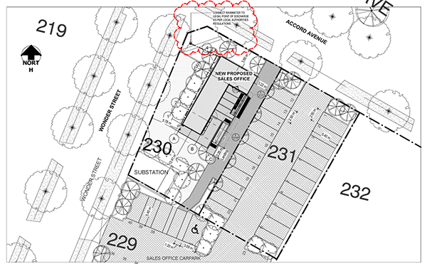
Site Plan and Floor Plan
External Elevations and Typical Section View
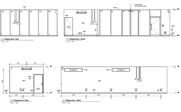
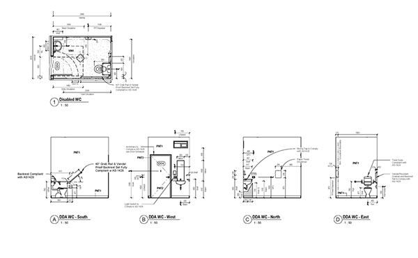
Interior Elevations and Floor Plan
Construction Details
客服
消息
收藏
下载
最近



















