查看完整案例

收藏

下载

翻译
Firm: TreanorHL
Type: Residential › Multi Unit Housing Government + Health › Community Center
STATUS: Built
YEAR: 2018
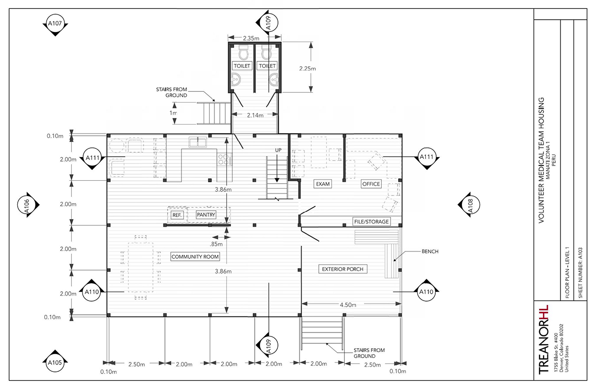
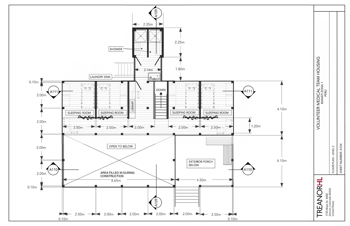
Manati Zone 1 is an agricultural village located along the Amazon River in Peru. Villages throughout this region suffer from the lack of modern medicine and nearly no education regarding hygiene or safe, healthy food preparation, resulting in many medical concerns, Centura Health’s organization Global Health Initiatives partnered with our firm to design housing for volunteers to live within the village while they provided long-term medical care and health education. This housing unit was to be built in Manati and then evaluated for replication across the region. The unit was built by the local people using construction methods from the region, and local materials. Partnerships also occurred with the Loreto Region Ministry of Health, the Municipality of Indiana, and Manati Zone 1 leader, Richard.
The design team began researching local building materials and methods in 2016. Centura Health shared research on the process behind the village selection and the resources the village had to offer. Then, together with village representatives, we researched the best site as it related to the existing fabric of the community. A program was developed to include sleeping rooms for ten volunteers, medical waiting and exam spaces, a kitchen, restrooms, and open spaces to hold classes and host the community. Finally, our team created loose construction documents, using the metric system and translated to Spanish, and a physical model to explain our design intent to the local builders. This information was sent to Manati where the villagers utilized their skills to erect the housing unit. In early 2017, representatives were sent to oversee the construction process and educate the population on the passive systems. Finally, in August of 2017, a post-occupancy evaluation occurred after the first volunteer team occupied the space. Construction began on the second structure in Sinchicuy, Peru in December of 2018.
Credits: Greg Hodgsen Centura Health, Steve Carr TreanorHL
Credits:
- Centura Health - Greg Hodgsen
- TreanorHL - Architect - Steve Carr
客服
消息
收藏
下载
最近













