查看完整案例

收藏

下载

翻译
Firm: RIPPLE IDEAS
Type: Industrial › Warehouse
STATUS: Built
YEAR: 2017
Lead designer: Fang Huan,Dong Fanzheng,Yao Lifu,Xu Yizhou,Xiong Wenrui,Yuan Yi
Client: Shanghai HuajiTao
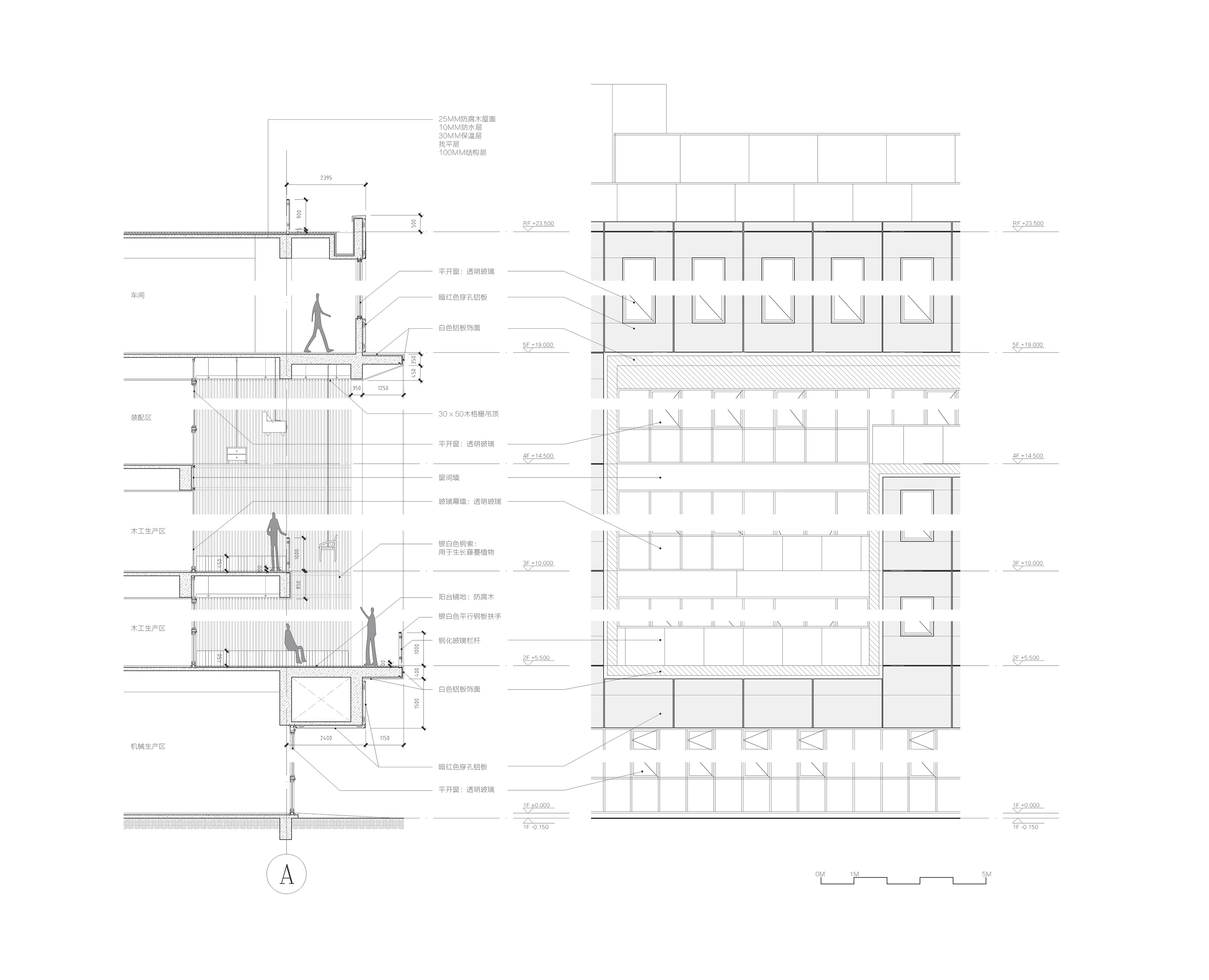
The Project located at Songjiang Xinqiao industry district of Shanghai and is adjacent to a city river. The design Scheme is for Jiuwo Furniture factory campus phase I, which total GFA is 15211M2 with 14911 M2 above ground, 300m2 underground and five levels.
Design concept came from an intensive research about three relationships: 1. Project site and its surrounding environment; 2. campus massing and the whole industry district; 3. Workers and their working space. We are trying to design a complex ecological factory with the ideas of “factory+ green+ exhibition”.
"Garden + factory", the design concept got interpreted further from just building vertical green wall, it should expand from 2D to a 3D ecological, green and leisure space. It should open itself to become a private-public, energetic, dynamic space which align with Huajitao's branding strategy.
From inside out back to outside in, we are using several central courtyards to organize interior space sequence. Double and triple level height courtyard break the traditional factory boring impression and reveal the internal design order. Courtyards become even more dramatic combined with green walls and skylights.
We use negative‚ method, break building massing with various sizes, heights terraces and balconies, which blurring the building‚ inside-outside boundary. With plantings climbing up around, we hope this green space can become a private-public space for workers to have lunch, events and etc. These exterior green terraces correspond with internal green courtyards to make the design scheme consistent.
Dark brown perforated aluminum panel remained the industry feelings of the factory, which also standout compare with other dark gray industry buildings within the district.
客服
消息
收藏
下载
最近














