查看完整案例

收藏

下载

翻译
Firm: NguyenHieu Architecture
Type: Industrial › Warehouse
STATUS: Built
YEAR: 2016
SIZE: 0 sqft - 1000 sqft
BUDGET: $10K - 50K
CARO HOUSE (CHECKED HOUSE)
• Architects: NguyenHieu Architecture
• Location: Vinh Yen, Vinh Phuc, Vietnam
• Architect in Charge: Nguyen Trung Hieu
• Design Team: Nguyen Trung Hieu, Phan Thai, Le Hieu
• Project Manager: Nguyen Trung Hieu
• Project Year: 2016
• Photographs: Tu Lee
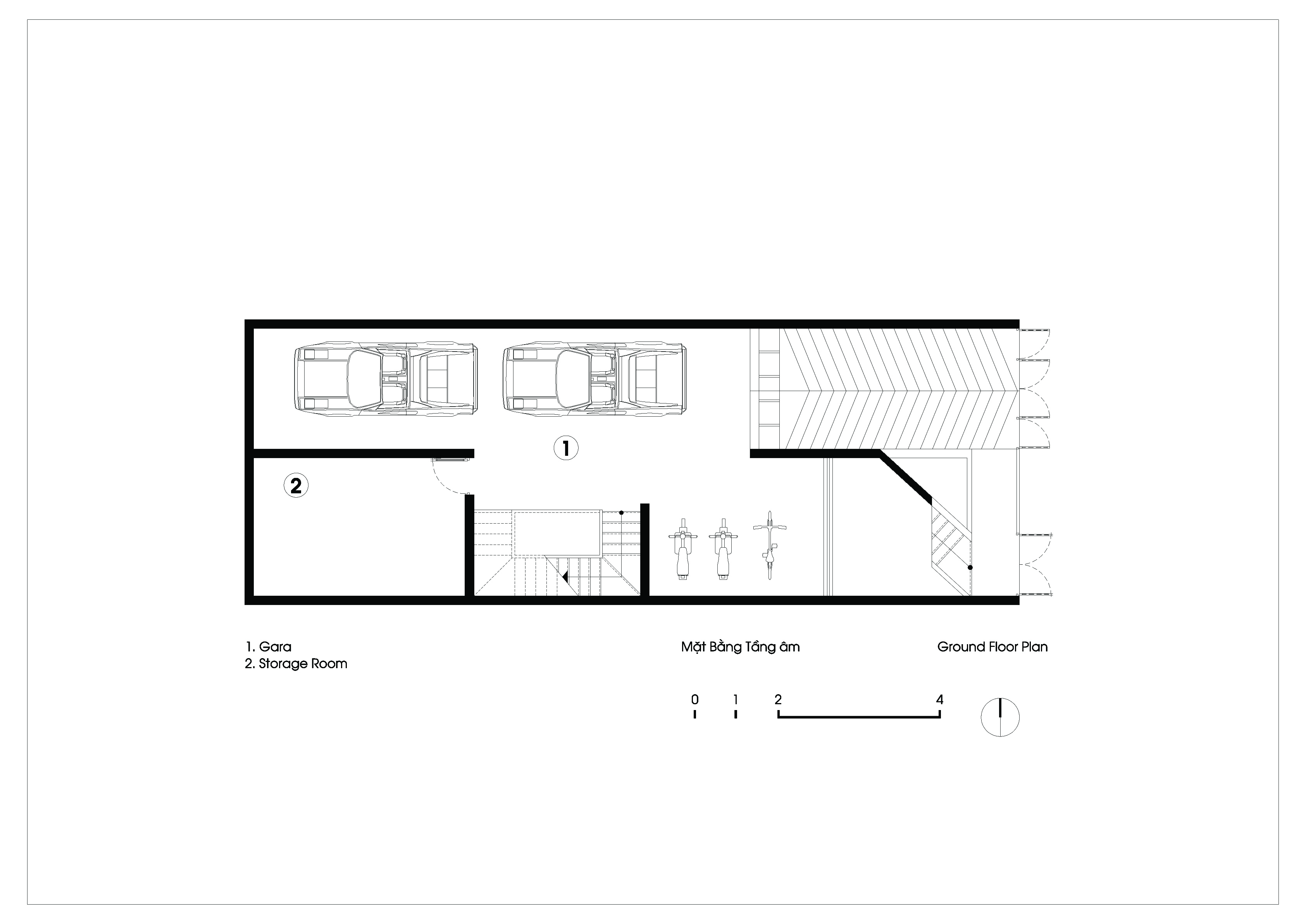
From the architect. Caro House is located in the new urban area of Vinh Yen City, Vinh Phuc Province, an area with not many people live in. Terrain where the house is on is not flat and at deep depressions about 2m. Therefore, the house should be designed on that difficult plots but should be suitable for a 3-generation family, including young couples, children, and their mother while it still can take the advantages of the terrain to reduce the construction costs and to optimize using area.
To suit the terrain, we and the landlord agreed to design a building with a basement story, good for vehicle park or warehouse without affecting the remaining area for living.
On the other hand, the house is oriented to the west, so the first point we concern is how to avoid the sunshine while still ensuring adequate ventilation for the house. So we have to think of creating a buffer between the living area and outside, this will turn the temperature inside the house into cool and unaffected by wind and sun from the west. The atrium space is also arranged so that the inside of the house will be filled with natural light.
The landlords are romantic people and so they want to live and feel a wooded space and can enjoy the sunset from the rooms. That is why we choose the design of checked cells instead of concrete block with appropriate size so that the sunset can be in full view when the sun is falling down.
The landlord want to feel the difference and water inside of the house. And so we have researched and chosen to make the difference in the living room. It is the atrium throughout the stories and waterfall flowing on a natural stone surface. The atrium can be seen from every corner of the master bedroom, living room and dining room. Landlords are very satisfied with that. And now living room is no longer for watching TV but for relaxing; enjoying a cup of tea while watching the sunset listening to the murmuring sound from the waterfall.
We can say, light; sound and wind will make the people in the house become closer and more romantic. And we always try to satisfy their living space.
客服
消息
收藏
下载
最近






























