查看完整案例


收藏

下载

翻译
Architects:Licht Architecture
Area:198m²
Year:2023
Photographs:Anjie Blair
Manufacturers:Academy Tiles,Design Pine,James Hardie
Lead Architects:Jason Licht and Rachel Licht
Structural Engineer:Brierley Consulting Engineers
Environmental Consultant:RED Sustainabilty
Furniture:Simon Ancher Studio
Builder:Pride Building Solutions
City:East Launceston
Country:Australia
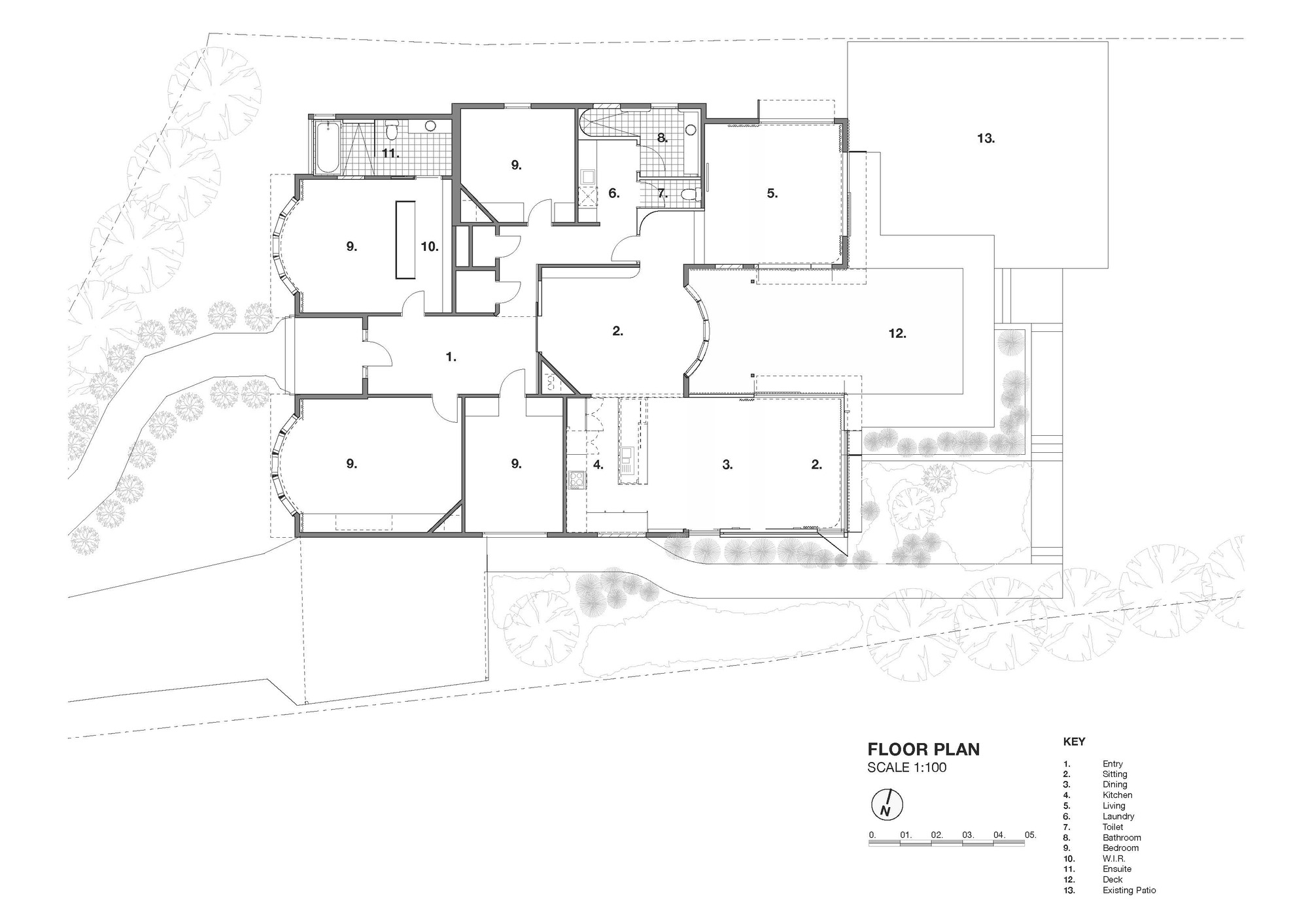
Text description provided by the architects. Located in East Launceston, Tasmania, sits a Federation house built in 1914; it is home to a family of three. The home had lovely character and charm, but the interiors were internalized and lacked a connection to the backyard. The design approach removes a tired lean-to, making way for a new kitchen/dining extension that focuses out onto a new courtyard and backyard beyond. The internal floor plan has been rationalized to simplify movement through the home and to incorporate an ensuite and laundry within the existing footprint.
The new works draw light deeper into the home and offer multiple places to sit in the sun. A garden and terraced courtyard allows for a soft connection between the inside and outside and subtly negotiates a significant level change between inside and out.
The new addition is modest in size and references the federation details and finesse through a modern interpretation. Archways of the existing verandah are reinterpreted in vaulted dining ceilings and external shade structures. These subtle curves are further referenced throughout the plan via a sweeping curved bathroom shower and a new transition between existing sitting and living rooms. The outcome is a playful celebration of a humble federation home.
Project gallery
客服
消息
收藏
下载
最近



















