查看完整案例


收藏

下载

翻译
Architects:Salamanca Arquitetos
Year:2022
Photographs:Eduardo Macarios
Manufacturers:Cerâmica Portinari,Docol,Esquadrias de alumínio
Lead Architects:Carlos Eduardo Salamanca, Débora Carres, Gabriela Pastório
Hydrosanitary Project:Thais Gabriela Salamanca
Structural Design:Henrique Catuzzo
Prestressing:Lever Protensão
Electrical Project:Roberto Melo de Souto
Hydraulic Project:Thais Gabriela Salamanca
Landscaping Project:Espaço Brasil Paisagismo - Ronaldo Carpanesi
Air Conditioning Infrastructure:Refrigeração Fique Frio
Hydraulic Execution:Hidráulica Perusso
Surveying:HC Geo Infra - Turíbio Holsbach
Construction:JF Construções
Marblework:Martol
Woodwork:Cerbarro Moveis
Swimming Pool Execution:Atlântica Piscinas
Program:Single-family residence
Country:Brazil
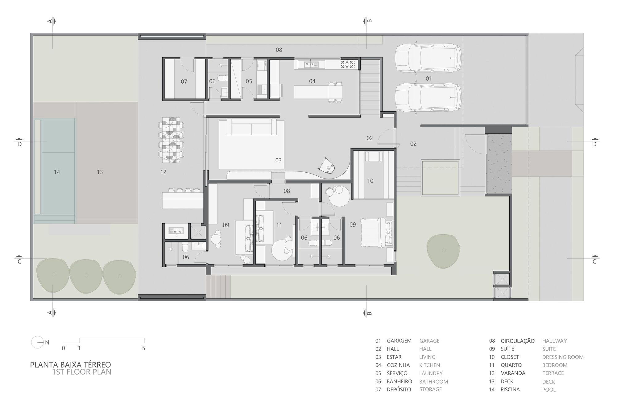
Text description provided by the architects. The Primavera House, located in a residential neighborhood in the city of Toledo-PR, is the result of a transformation opportunity. The mid-80s residence aimed to create a new, current space that could meet the demands of a growing family. The existing structure was preserved, and some internal walls were removed to integrate the spaces. Additionally, two expansions were added, one at the front and another at the back.
The house was designed from the inside out, allowing its structure to be maintained and preserved, serving as inspiration for the new spaces. These spaces were designed based on the family's needs. Where there was once a garage, now stands the main kitchen of the residence. Some areas were internally expanded, such as the suite's closet, transformed from the former house's office.
Two blocks were added to the existing volumes. A large exposed concrete slab rests on two supports, creating a comfortable and extensive leisure area along with support areas, spanning 16.5m. The projection of this space prioritized the connection between the house's interiors and the deck, pool, and garden areas—a spacious family living and day-to-day use space.
The upper volume on the house's facade houses the family's office, superimposed on the wood-clad wall, creating a garage space and an overhang for the main entrance.
The search for natural and reclaimed materials from the existing construction was crucial to the project's conception. The old Ipê wood from the house was recovered, restored, and used in the interior cladding, such as the gate and the rear area of the property. Other materials, such as stone and exposed concrete, played a significant role in transforming an old residence into a new home.
Project gallery
客服
消息
收藏
下载
最近






























