查看完整案例

收藏

下载

翻译
Architects:N.A.O
Area:109m²
Year:2022
Photographs:Shinichi Hanaoka
Manufacturers:ABC Trading,DAINICHI GIKEN KOGYO,LIXIL,Osmo & Edel Corporation
Lead Architect:Naoki Kato
Design Team:N.A.O
City:Ninomiya
Country:Japan
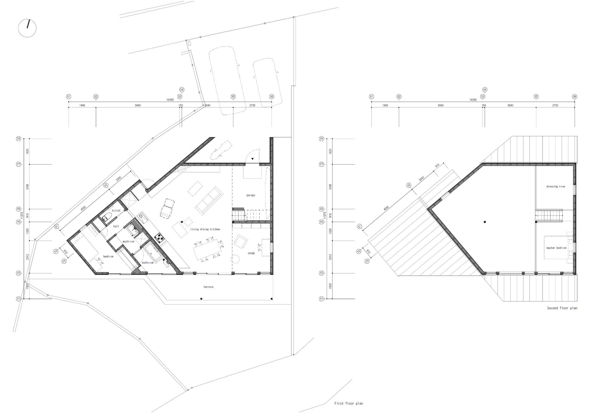
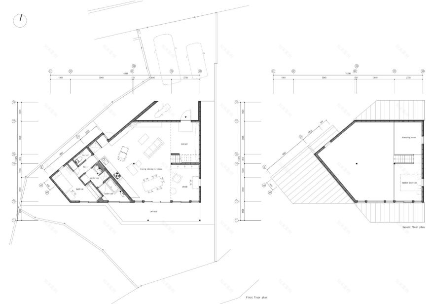
Text description provided by the architects. The site was a deformed site with a height difference from the neighboring land, and there were concerns about solar radiation. A large space was placed in a favorable range to secure solar radiation from a high position.
A large space without partitions was also required. The reason for this was that the client wanted to be able to arrange things freely. Therefore, the architectural space was planned to be "unaligned. If the rule is to align, there are few correct answers, but if the rule is not aligned, there are more correct answers.
The goal was to create a house in which objects, people, and space have a good relationship.
Project gallery
客服
消息
收藏
下载
最近































