查看完整案例

收藏

下载

翻译
Architects:blaq arquitectos
Area:60m²
Year:2022
Photographs:Macarena Whittle
Manufacturers:Budnik,FDV,Lamitech Imperial,MK,Termoalum chile
Lead Architect:Benjamin Litvak
Collaborator:Catalina Corral
City:Las Condes
Country:Chile
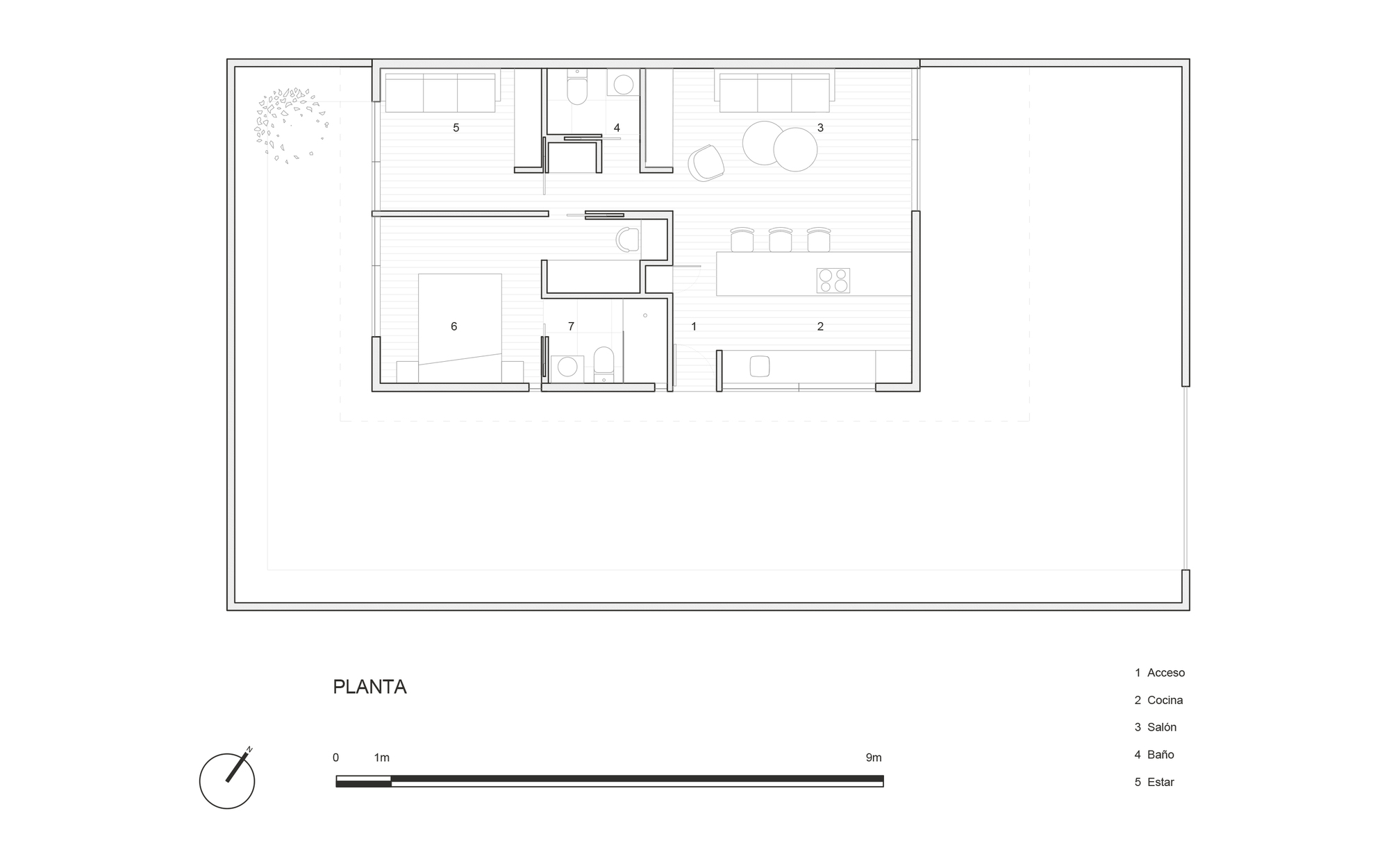
Text description provided by the architects. The project is a complete renovation of a unit in the popular housing complex plan developed in the 1970s in the Colon Oriente sector of Santiago. This plan aimed to integrate and address the housing deficit and reduce segregation due to the explosive demographic growth of that time. This urbanization consists of approximately 200 identical basic construction of 60 square meters of rectangular-shaped houses with gable roofs, built with reinforced masonry and wooden roofs, with poor lighting and a height of only 208 cm.
The objective was to turn one of these identical units into a unique one, personalized to the interests of the client. For this purpose, we proposed a complete renovation, open according to today's uses but without losing its scale or unity within the neighborhood. Designed for a young couple with no children and a very tight budget, we decided to redistribute the entire interior, maintaining the original perimeter walls of confined masonry, increasing the openings, and elevating a new laminated wood roof to 2.5 meters from the floor, supported by an iron substructure, leaving a glazed strip around the perimeter, which allowed the entry of light between the wall and the new roof, calculated to receive a future second floor. This laminated wood structure was prefabricated and machined outside the site to streamline the construction process and save time and money in execution.
Two skylights were installed between the beams, allowing more natural light to enter the interior, and all the existing walls were painted white, including the exteriors, to increase reflectivity. Inside. Natural wood was used for the floor and kitchen furniture, providing greater warmth and comfort, and the perimeter exposed bricks were kept, and painted with a more sandy matte color to promote relaxation and rest. The interior distribution is simple, with the living room and kitchen in one half, connected to the entrance, and the private spaces with access to the patio in the other half. The entire structure is calculated to support a future expansion on the second floor, for when the family grows, as part of the initial design."
Project gallery
客服
消息
收藏
下载
最近



















