查看完整案例

收藏

下载

翻译
Architects:Takanori Ineyama Architects
Area:99m²
Year:2022
Photographs:Koichi Torimura
Manufacturers:Ceramica Globo,Haradasakan,Isamu Noguchi,LIXIL,NEW LIGHT POTTERY,Sanwa,SuperStudio
Lead Architects:Takanori Ineyama
Structural Design:Building Structure Institute
Builder:Sato Kensyo Co., Ltd
City:Hayama
Country:Japan
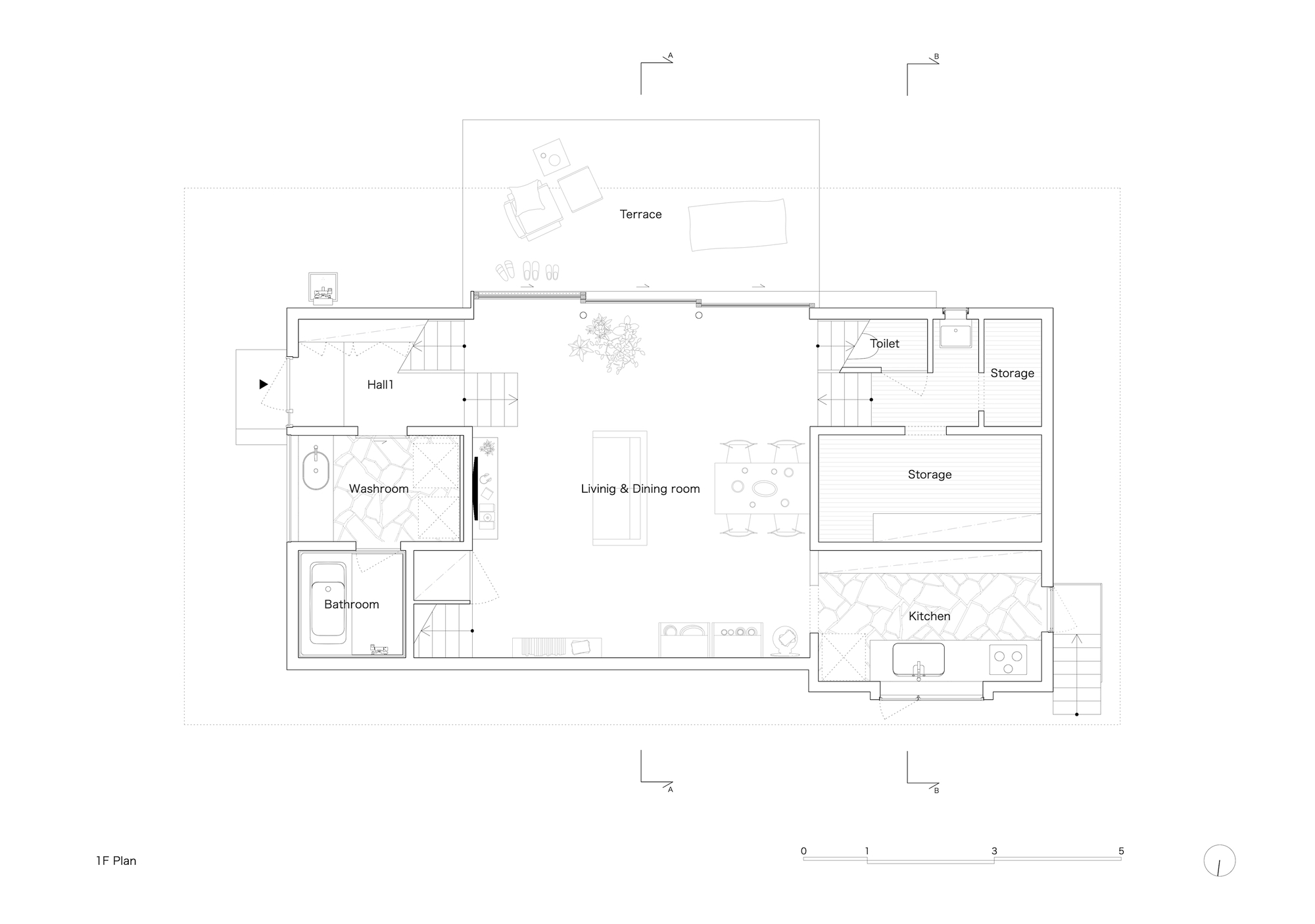
Text description provided by the architects. This project is a house for a family who likes interior design, built in Hayama-cho, Kanagawa Prefecture. The site has a large garden due to the rebuilding of 2 houses existing and has a topography difference due to a gentle slope leading from a cliff on the neighboring site on the south. Considering lighting, the building was placed on the north side of the site, away from the cliff on the south side, with a garden on the south side, and the trees on the neighboring nature and tree were used as a borrowed landscape.
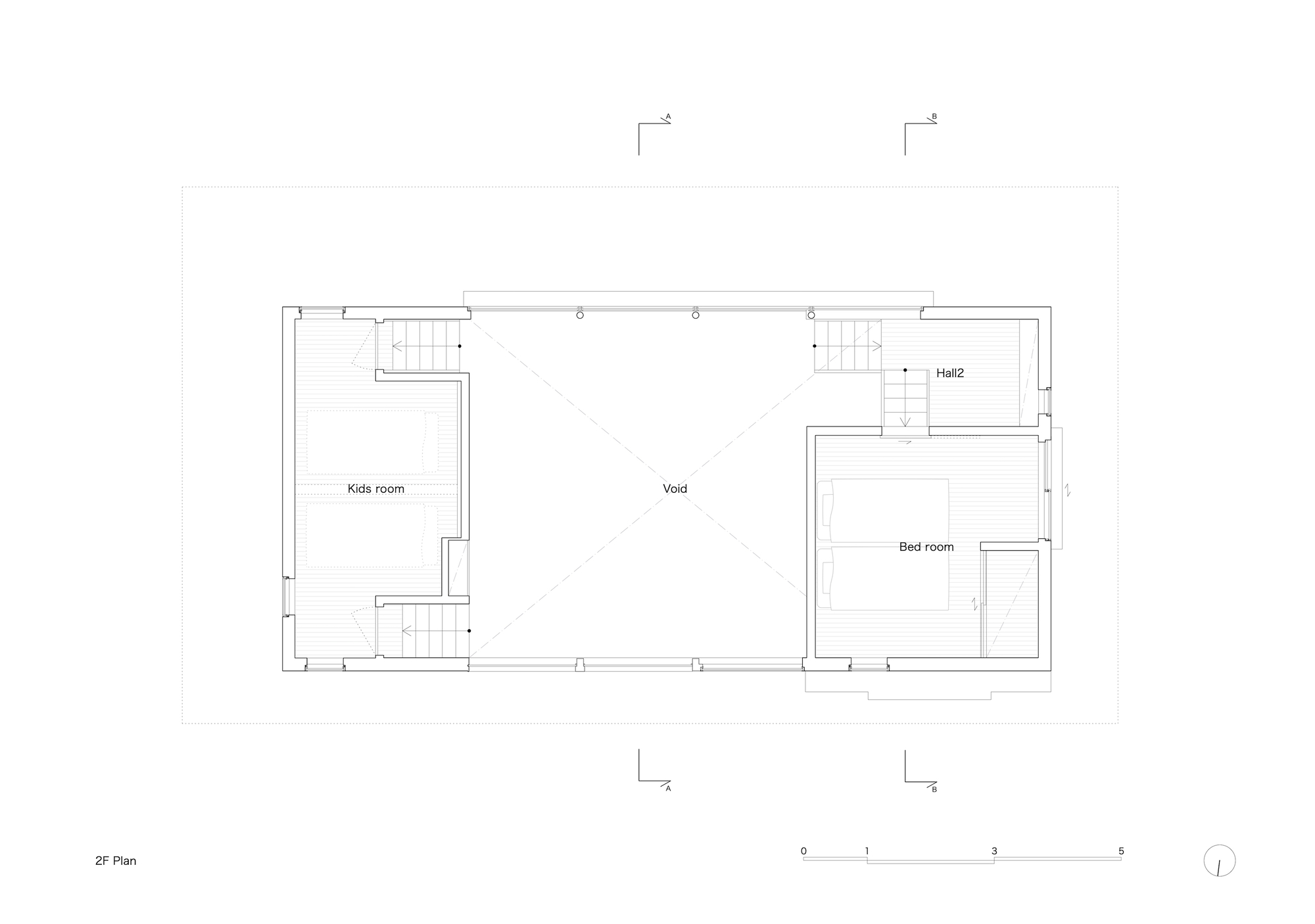
Therefore, I arranged living-ding space 1m upper from the 1st floor and the terrace that is called “Stage” that is connecting inside to the garden area seamlessly. Living-Dining has a high ceiling and also a 4.5m high window, which is maximum provided nature from the garden and neighboring site and takes sunlight into the inside. I arranged the bedroom and sanitary space which has the minimum necessary on both sides along the living-dining space which is 1m upper from the 1st floor, there is a skip floor arrangement.
The main structure is made of wood. However, steel columns are used on the window side to support the large volume. 8.2m beam is connected to the divided wooden beam by using a steel plate and bolt. The Huge window has huge eaves that have long depth, which can block the sunlight in summer. On the other hand, sunlight reaches deep into the room through the windows and stores heat on the concrete floor in winter. The walls of the living-dining space are finished in different materials to create different impressions depending on the direction of the furniture.
The "stage" and the living-dining area are separated from the kitchen, where the furniture can be freely arranged. and there are the owner’s furniture and ornament and fittings, and the owner's many pieces of furniture and ornaments, repurposed fixtures, and lighting scattered throughout.
I look forward to the life the owners will develop as they renovate to fit their family's lifestyle.
Project gallery
客服
消息
收藏
下载
最近





























