查看完整案例

收藏

下载

翻译
Architects:Meir Lobaton Corona,Rafael Ortiz Cervantes
Area:1300m²
Year:2019
Photographs:Rafael Gamo
Laed Architect:Meir Lobaton Corona
Design Development:Rafael Ortiz Cervantes
Construction:Agustín Hernandez
Landscape:Hugo Sanchez Paisaje, Entorno Paisaje / Tonatiuh Martinez
Structural Engineering:Jarma
City:Ciudad de México
Country:Mexico
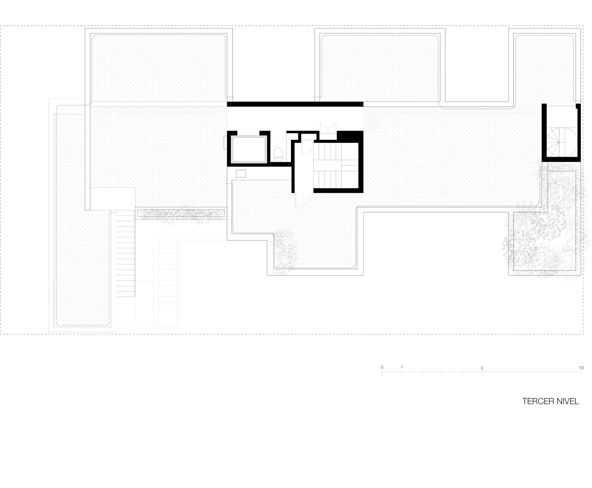
Text description provided by the architects. The spatial and volumetric complexity of the project aren’t the result of a formal strategy, but instead of the materialization of the clients’ programmatic guidelines and constraints: four families with different requirements and sometimes contradictory demands. The resulting spaces and volumes, thus radiate the sensation of being a naturally grown body rooted in the ground, rather than an imposed construction controlled by the architects´ will.
The geometry, dimension, and orientation of the site, naturally led to the decision of folding back the built volumes towards the western boundary, leaving room for a semi-deciduous garden that serves as a natural buffer and gathering place between the dwellings.
The four units are intertwined in a seamless three-dimensional puzzle, where their limits are blurred, giving the impression of being a single house rather than an aggregation of apartments. This condition is reinforced by the materiality of the construction: the apparent red clay brick load-bearing walls, create a continuous texture, occasionally interrupted by wooden doors and window frames.
The massiveness and rough texture of the architecture contrast with the delicacy of the vegetation, which hopefully throughout time will take possession over the built volumes.
Project gallery
客服
消息
收藏
下载
最近
























