查看完整案例

收藏

下载

翻译
Architects:Studio Anois
Area:150m²
Year:2021
Photographs:Aisling McCoy
Manufacturers:Bauder,Ikea,VINDR
Lead Architects:Declan Crowley/ Niamh Chambers
City:Dublin
Country:Ireland
Text description provided by the architects. This early Georgian city center building has undergone extensive renovation to create a sustainable contemporary home in the heart of Dublin city. The majority of the building was destroyed in a fire in the 1980’s with most of the original features eradicated, leaving only the original front facade and party wall. The design intent was to work with the existing fabric as much as possible. The existing structural beams and posts were retained, and the brick party wall was exposed. At the front façade, the damaged cement pebble dash render was removed, and sliding sash windows were reinstated.
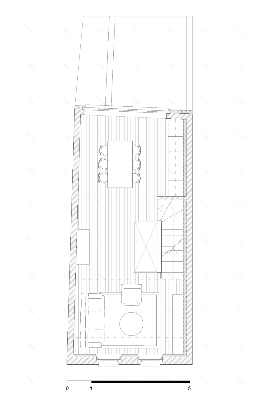
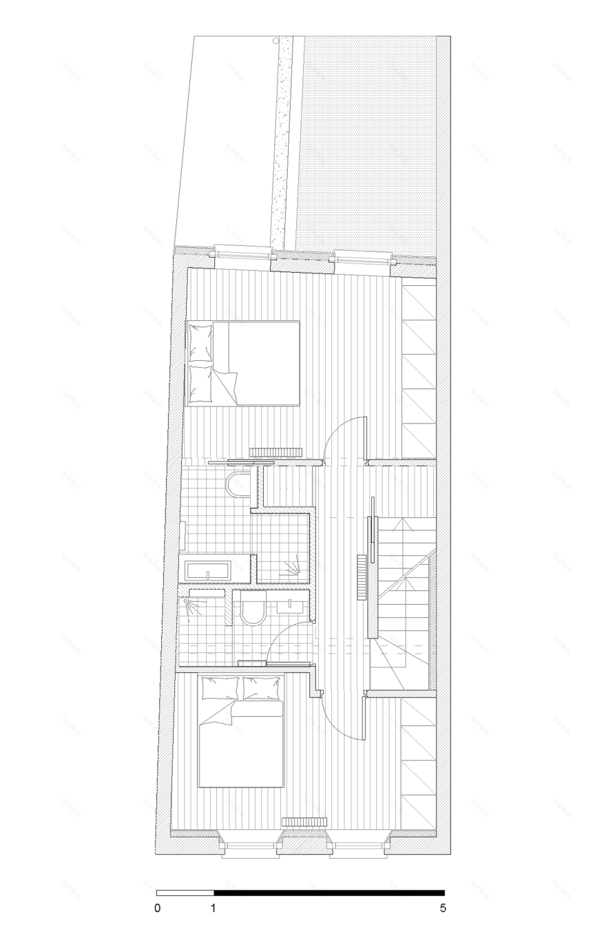
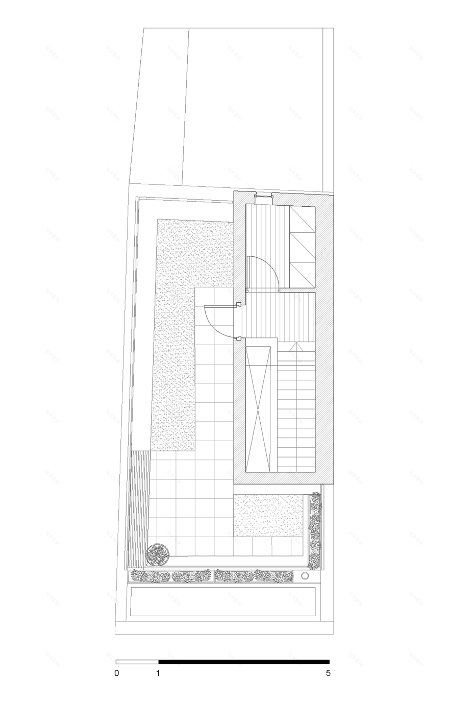
Due to the density of the site, the main living spaces were moved to the second floor to make the most of the solar gains throughout the day. A new top-lit central stairwell connects all floors whilst allowing light deep into the plan and provides access to a generous private roof garden that capitalizes on the panoramic views across the city.
The project is limited in both area and light so a small materials palette of timeless natural materials has been used to enhance the sense of space and light. An elegant metal screen opens up the building at street level, whilst maintaining adequate security for the occupants.
The functional areas of the house such as the bathrooms and storage areas have been compressed into the darkest areas of the house, to maximize the light in the primary living spaces. The property has been thermally upgraded throughout, a heat pump heating system has been installed, and a sedum green roof has been placed at the roof level, promoting biodiversity in the city and providing additional green space. This is an example of how a sensitive approach can preserve and enhance our existing built fabric whilst providing a beautiful sustainable space for city living.
Project gallery
客服
消息
收藏
下载
最近





























