查看完整案例

收藏

下载

翻译
Architects:Saunders Architecture
Area:392m²
Year:2016
Photographs:Ivar Kvaal
Interior Architect:Jane Dunkley, In Design
Lanscape Design:Saunders Architecture
Builders:Sunnhordland Bygg AS, Nils Morten Ådnanes, Arild Lillenes
Lead Designer:Todd Saunders
Project Architect:Pedro Léger Pereira, Maxime Rousse, Márk Szőke, Attila Béres
City:Mosterhamn
Country:Norway
Text description provided by the architects. The Røksunds and their two children had been living on one of the islands in the Bømlo district to the south of Bergen for many years when they discovered plans for a new road and bridge would have a significant impact on their existing home. Given that the family loved the setting and surroundings, the solution was to build a new house on a hilltop site further away from the road that also offered a mesmerizing open vista across the islands.
As an experienced engineer, Reinert Røksund decided to manage the construction process as a self-build project. But then Judit Røksund, a schoolteacher, fell ill with cancer, and their plans were thrown into question while she began a course of treatment. They decided to press ahead with the new house, seeing it as a positive step forward into the future for the whole family.
For Saunders himself, the project took on fresh relevance and resonance. Working with clients on the design and build of a family house clearly involves a relationship that is both personal and professional, but here the project took on a new level of importance for all involved.
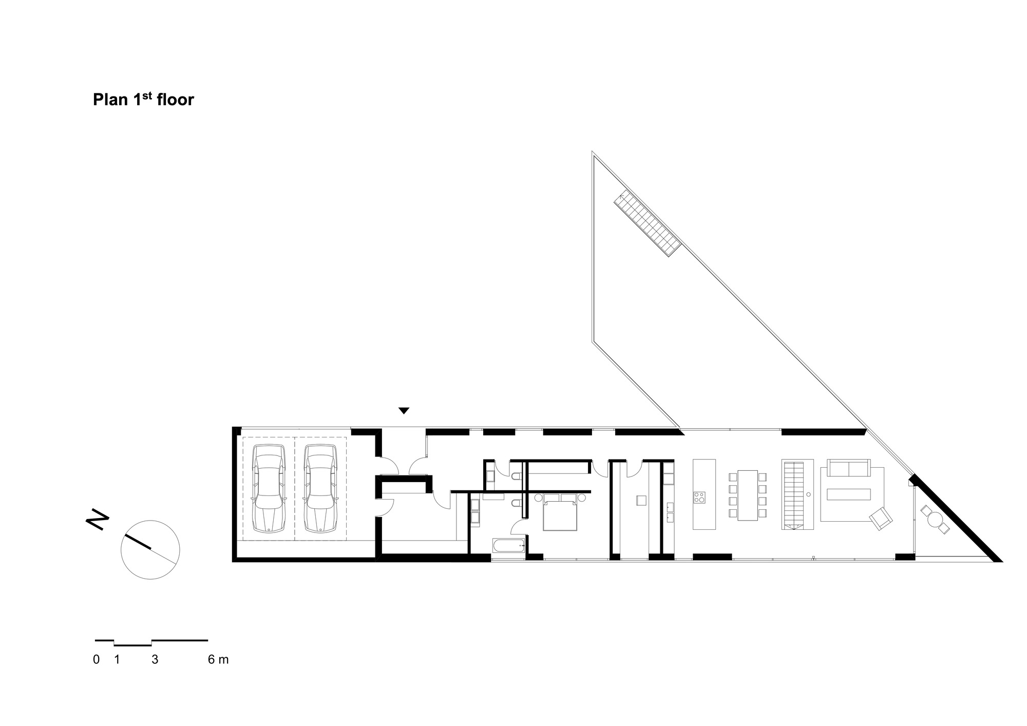
The design of the house itself maximizes the potential of the hilltop site while working around the rugged topography, including rocky outcrops and the mature trees that populate the sloping land as it dips away toward the water below. Much of the house is arranged on one, principal level, including an integrated garage and storage room at one end, alongside the main entrance. Beyond this, a line of circulation line passes the master suite and a dedicated study, both of which are orientated towards the view, before reaching an open plan living space holding the kitchen, dining area, and sitting room, with a covered terrace beyond.
Saunders describes this space as a kind of ‘rural penthouse’, offering a framed panorama of the water, the trees, and the neighboring islands. The elevated position of the house means that this space, with its wall of floor-to-ceiling glass framing the vista, has the feel of a sophisticated treehouse or observation point floating above both land and sea. At the same time, a wood-burning stove forms a key focal point here and enhances the sense of warmth.
The main body of the steel-framed, timber-clad building forms a kind of bridge stepping over the lower portion of the site and spanning a sheltered undercroft that forms an additional outdoor room. One end of the bridge, around the garage and entrance zone, is supported by the rock outcrop while the other end is held aloft with the support of a modestly scaled lower level that pushes back from the rest of the house at an angle of ninety degrees. This lower zone holds a media room, two bedrooms for the Røksunds’ children, and an additional bedroom for guests.
The thoughtful design of the house means that daily living becomes easier and more straightforward. The firewood store, for instance, is in the garage meaning the family doesn’t have to go outside when they need more timber for the stove. For a family with a love of sailing, being able to change wet clothes in the store room and laundry alongside the entrance is also very practical. Such elements make everyday life more pleasurable.
Project gallery
客服
消息
收藏
下载
最近















