查看完整案例

收藏

下载

翻译
Architects:Fast and Furious Production Office
Area:10656ft²
Year:2023
Photographs:Fast&FuriousOffice
Manufacturers:Grohe,iGuzzini,Alfombras KP,Pladur,QUICK-STEP,Roca,SIMON ELETRIC,Sancal,Techos Montefrio
Building Management:Simon Electric
Construction Costs:65K €
City:Madrid
Country:Spain
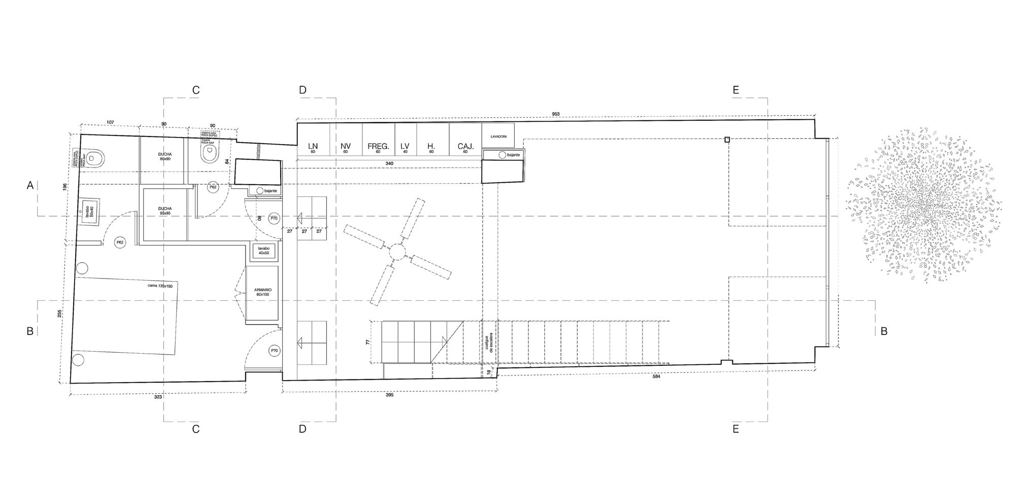
Text description provided by the architects. It is a refurbishment in an old bakery in the Salamanca district of Madrid, for adapting for residential use.
The project respects existing elements such as the anodized aluminum facade and some tiles that served the original counter. In the premise of doing work only with lines of force and essential planes, all elements considered annoying were eliminated.
To achieve this, a radical technical condition is defined: Everything new that is built (regardless of standards for executing divisions and modular furniture) must be done only with 12 and 20-mm steel bars and basic solid pine planks that can be purchased online.
With these elements, and through surgeries on the existing steel, 2000kg of excess structure are eliminated and only the essentials are supported through a suspension system executed with those steel bars working under traction. A new staircase is also designed and built without using screws.
The construction condition also served for the design of custom furniture elements such as a mobile table and kitchen shelves.
Project gallery
客服
消息
收藏
下载
最近























