查看完整案例

收藏

下载

翻译
Architects:S-AR
Area:164m²
Year:2023
Photographs:Ana Cecilia Garza Villarreal,C129
Manufacturers:Aceromex,Bloquera Regiomontana,Cemex,Vitro Vidrio Claro
Lead Architect:César Guerrero, Ana Cecilia Garza.
Collaborators:Carlos Morales, María Sevilla.
Technical Inspection Of The Work:S-AR + Daniel Hernández
Construction:Daniel Hernández
Country:Mexico
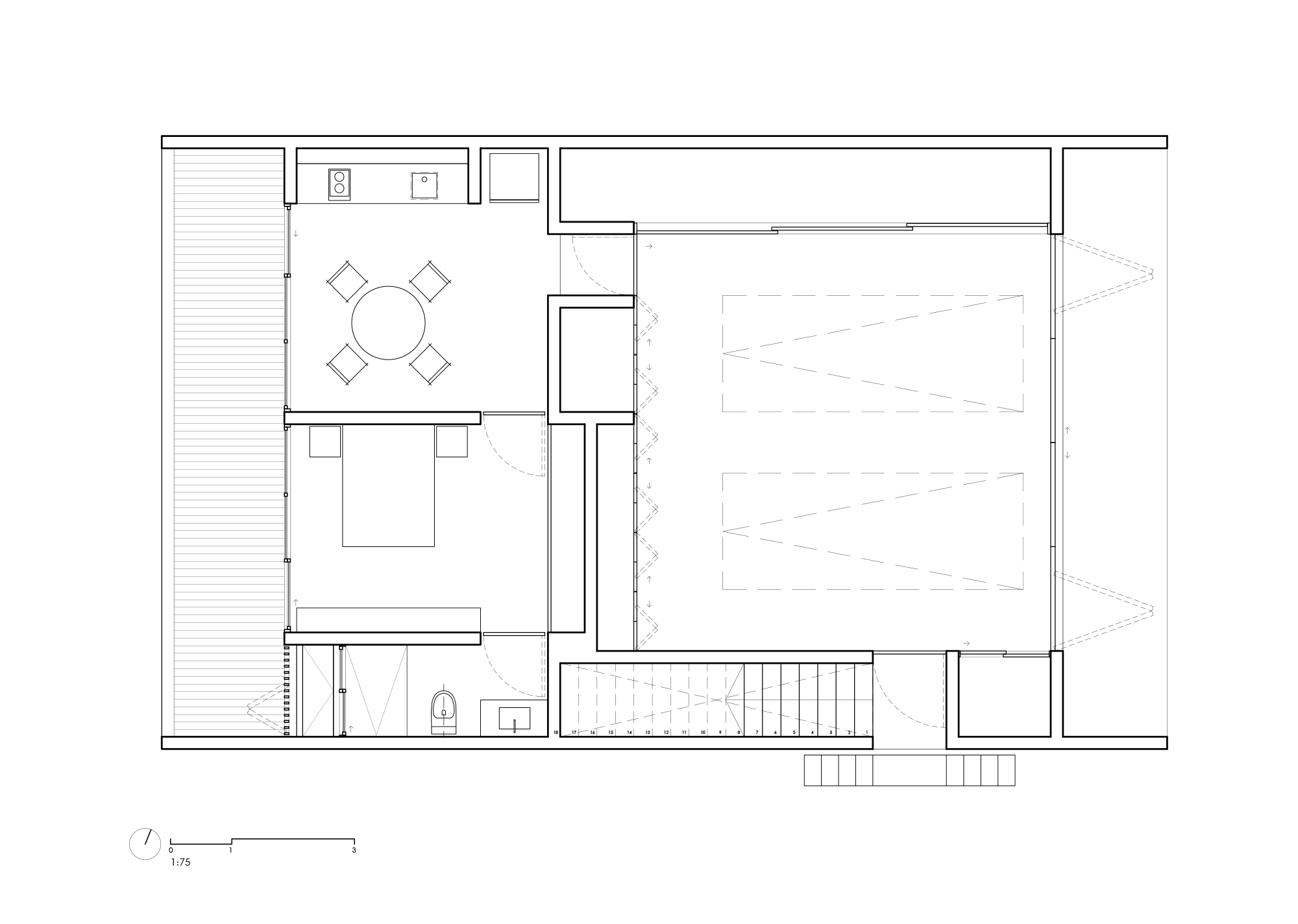
Text description provided by the architects. Proposed as an architectural object that brings together and merges the program of a small house for the guard of a property with storage spaces and parking for vehicles, Casa Mirador is a rectangular volume embedded in the landscape built basically of concrete, glass, and metal. Exposed concrete walls are used for the exterior structure and exposed concrete block walls for the interior partitions. Glass enclosures are located at the side of the guard´s house and metal gates for the side of the storage area and garage.
The architectural piece occupies the upper part of a natural slope in order to take advantage of the height to maximize the vision towards the valley and the mountains in front of the land.
The volume is occupied at one end by the small rectangular house, including the kitchen, bedroom, and services, all open to a small exterior access terrace. The remaining part of the volume is occupied by a square-like space used for storage: objects, machinery, and vehicles. This space is free in the center and has a perimeter of closets and storage spaces of different sizes as well as an external staircase that allows to have access to the roof which is basically understood as a view platform or lookout.
Project gallery
客服
消息
收藏
下载
最近




























