查看完整案例

收藏

下载

翻译
Architects:Fuller/Overby Architecture
Area:2500m²
Year:2022
Photographs:Paul Warchol
Lead Architects:Michael Overby, Emma Fuller
Structural Engineer:Silman Associates
Mechanical Engineer:Fusion Systems
Cladding:Nakamoto Forestry
Cabinetry:Southfork Millwork
Stonework:Hammerhead Stoneworks
Lighting Supply:International Lights
General Contractor :Cottonwood Development
Country:United States
Text description provided by the architects. The house is conceived as a layered, volumetric foreground to distant mountain formations splayed across the landscape. Set within the foothills of the Appalachian range, the site is long and narrow with a dramatic slope down to a lake. Two retaining walls are cut diagonally across the plot, forming a duo of earthwork courts carved out from the steep slope. A cluster of eight volumes, each loosely housing a component of the domestic program, is set along the retaining spine of the lower court, framing the lake and mountains beyond.
The main floor of the house is embedded into the hillside with views oriented outward to the lake—southern light filters in from clerestory windows above. The sunken day-to-day spaces are surrounded by earth on three sides, allowing thermal mass to replace a significant portion of the typically required heating and cooling load. Strategically placed operable windows for natural airflow and a heat pump mechanical system are accompanied by high-performance glazing, insulation, appliances, and LED lighting to reduce the client’s energy usage by half as compared to their previous local residence.
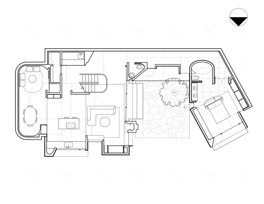
Designed as the permanent home for a retired couple with family nearby, the spaces are scaled to be intimate for a duo while also providing for occasional gatherings and larger celebrations. All daily programs exist on the lower floor with a central courtyard, conceived as an outdoor room, which splits the primary program into two wings. To the East of the courtyard are social areas and to the West is a private sleeping and bathing suite—Day and Night.
A hall that acts as a mechanical and structural spine along the rear retaining wall connects the private and public spaces. The larger, public zones of the interior radiate outward from the courtyard and gradually break up into more intimate niches around the periphery that provide semi-private moments within the open living areas. A sculpted cantilever staircase slices upward to the entry and guest rooms above, forming a continuous three-dimensional void capped by a skylight at its peak.
Above grade, the house appears as a cluster of small pavilions along the hillside. Each pavilion is shaped to frame views of the external landscape and amplify the shifting tones of natural light within. The forms of the roof send water to internal gutters which terminate in large tapered scuppers marking the joints between each volume.
The dark charred cypress cladding reinforces the massing of the pavilions as opaque volumes set alongside the surrounding trees, while the patinaed zinc roof resonates with the gray-green of the lake. At thresholds and entry points, concave inflections lined with brushed, amber-hued cypress are carved out of the volumes. As the sun travels from the Day side of the house to the Nightside, its appearance shifts from a gathering of textured volumes to a flattened silhouette against the distant landscape.
Project gallery
客服
消息
收藏
下载
最近




























