查看完整案例

收藏

下载

翻译
Architects:Alexandre Loureiro Architecture Studio
Area:80m²
Year:2020
Photographs:José Campos
Manufacturers:AutoDesk,Duravit,Adobe,Azulima,Exporlux,Maxxon,Ofa,Rodi,Rothoblass,Umbelino Monteiro,Weber
Lead Architects:Alexandre Loureiro
Collaborators:Ricardo Domingues
City:Oporto
Country:Portugal
Text description provided by the architects. Casa do Limoeiro is a summer house located in a small village on the Costa Vicentina. The rehabilitation of this century-old abandoned house brought to light the dichotomous discussion between tradition and contemporaneity. The challenge was clearly how to build with simple, indigenous materials that are traditionally present in the local culture, adapting them to the new challenges of contemporary living.
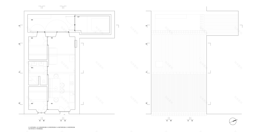
The small narrow house measuring only 55 sqm was organized in a simple way, but very compartmentalized. The plan presented a succession of small spaces of about 2mX3m arranged consecutively and in continuity without a great hierarchy between them. Given the limited space available, the project created an "open space" connecting the entrance to the outdoor patio where the social areas (kitchen and living room) are installed. Private areas, such as bedrooms and bathrooms, occupy the sides and take the form of alcoves.
Simple, basic, and dry details, in line with local tradition, provide the serenity and visual peace of the whitewashed walls. Architecture is reduced to its basics. Minimum. Minimalist. This is the essence of this project. The house has traditional rammed earth walls, wooden cage partitions, and a reed ceiling with the traditional "rat heel”.
The reuse of the existing hydraulic mosaic and the new handmade tiles give a human touch to the water areas, contrasting with the industrial floor of smoothed concrete. All furniture is made of natural wood, providing a natural harmony to the spaces and giving a sense of balance to the environment.
Overall, this little house builds our sense of belonging with its indulgent delicacy. The project is a pure example of architecture 101. Simple isn’t easy!
Project gallery
客服
消息
收藏
下载
最近














