查看完整案例

收藏

下载

翻译
Architects:Guerrero Arquitectos
Area:650m²
Year:2022
Photographs:Max Guerrero
Arquitecto Responsable:Max Guerrero
City:Buenos Aires
Country:Argentina
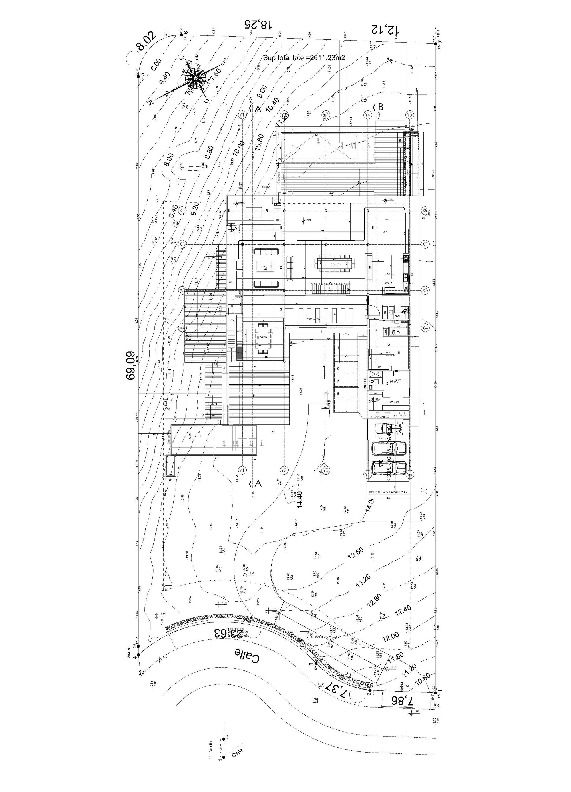
Text description provided by the architects. Overview: The objective of this project was to design a modern, minimalist house that is made of concrete and glass, and offers stunning views of the sea. The house has already been built. Site: The house is located on the coast of Argentina and has an area of approximately 2600 square meters. It is situated on a slightly elevated platform to ensure uninterrupted views of the sea.
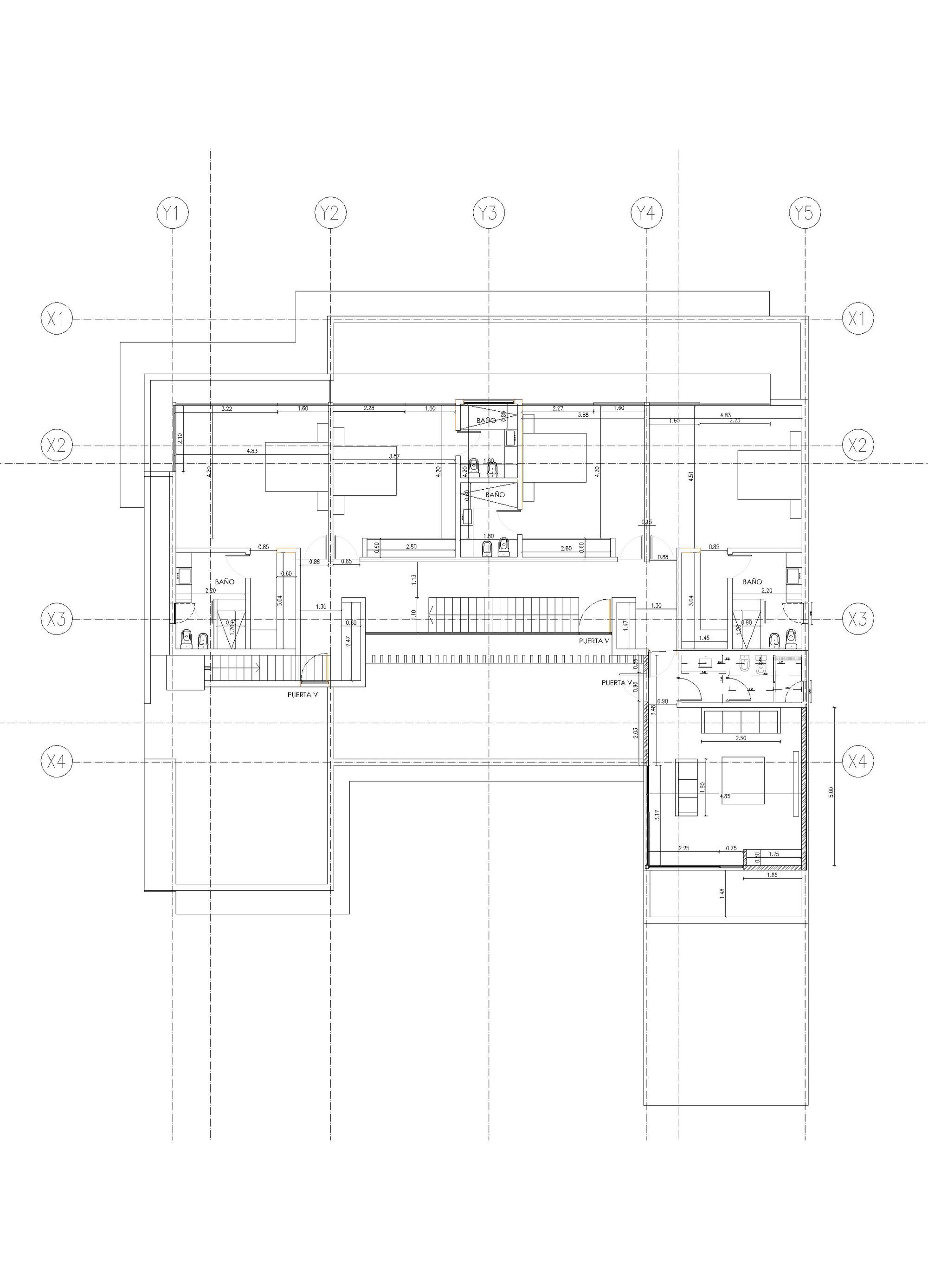
Design Requirements. The house has a minimalist design and is made primarily of concrete and glass. The house has a large open-plan living area that includes a kitchen, dining area, and a living room. The living area has direct access to an outdoor terrace that offers stunning views of the sea. The house has five bedrooms, all of which have en-suite bathrooms and walk-in closets. The house has two swimming pools that are integrated into the design and offer views of the sea. The house has a garage with space for 3 cars.
Interior Design Requirements. The interior design of the house should complement its minimalist design and focus on functionality and comfort. The furniture and finishes should be modern and high-quality. The color scheme should be neutral, with accents of blue to reflect the colors of the sea. The living area should have comfortable seating and entertainment options. The bedrooms should be designed to promote relaxation and offer stunning views of the sea. The bathrooms should have modern fixtures and finishes.
Project gallery
客服
消息
收藏
下载
最近


























