查看完整案例

收藏

下载

翻译
Architects:Jorge Hernandez De La Garza
Manufacturers:Gaggenau,Dada kitchens,Listone Giordano,Molteni & C,Poliform,Restauration Hardware
Lead Architect:Jorge Hernandez De La Garza
Design Team:Miguel Angel Loyola, Alin Gamboa, Veronica Quiroz, Erick Huerta
Interior Design:Jorge Hernández de la Garza, Juan Miguel Prada
Structural Design:Enrique Avalos
Engineering:Mauricio Gutierrez
Construction:M2 Constructora
City:Santiago de Querétaro
Country:Mexico
Text description provided by the architects. Casa Prada is located on land adjacent to a golf course facing the Amazcala Valley within the Sierra Gorda of Querétaro. One of the first lines of the design was the use of the views offered by the environment and the other is the importance of the social areas as a main part of the architectural program for the development of the project. Casa Prada is formed in stages, locating the social area on the upper floor to have a clear view of the valley and the golf course from most of its spaces; It is developed in a staggered manner due to the natural slopes of the land so that the circulation within the spaces works with internal vertical circulations that connect the social areas and the private areas.
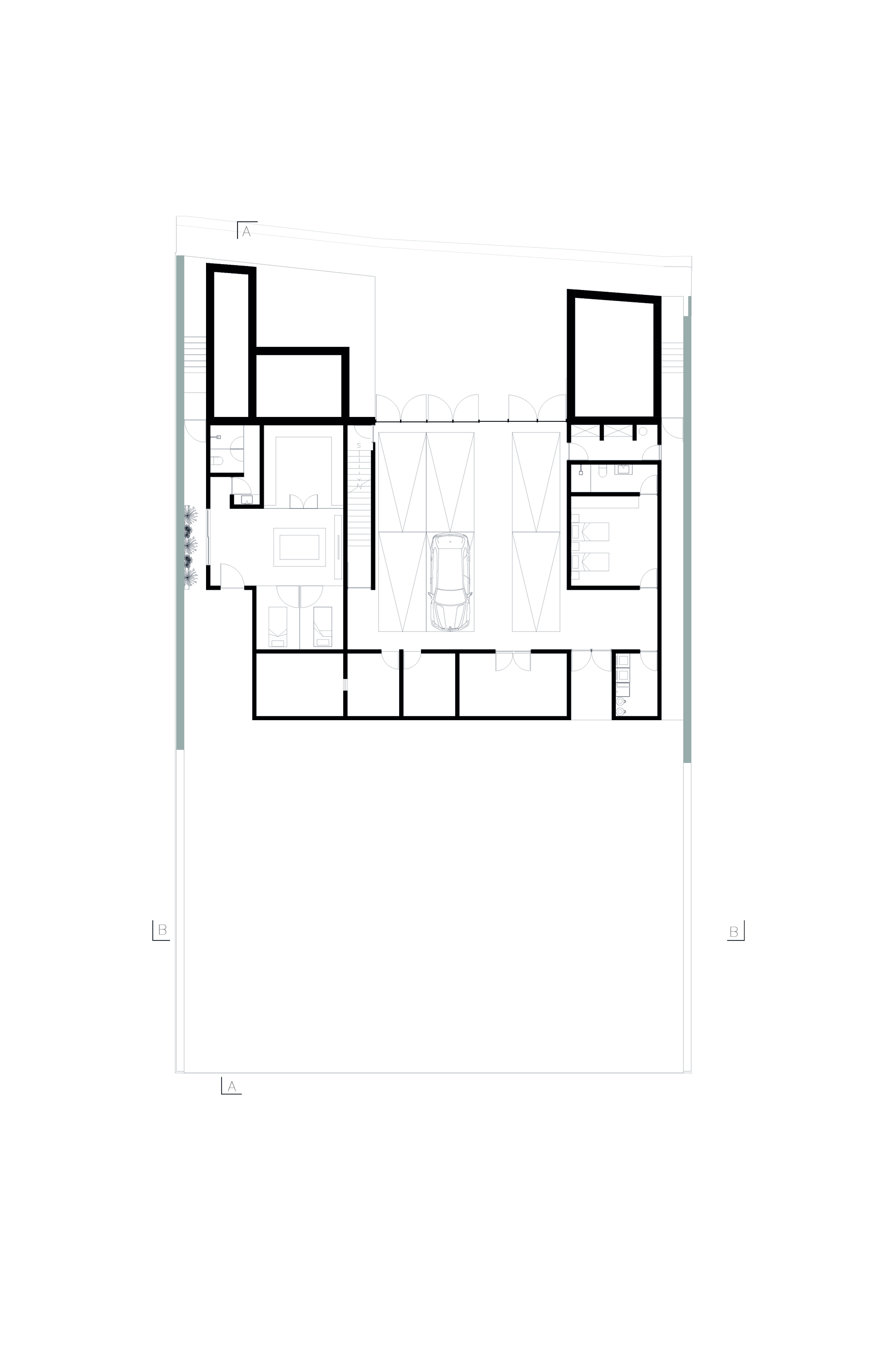
The house has three levels structured by concrete walls and metal beams, along with other materials such as stone, glass, and wood, under the principle that governs us to offer a sensation of light and spaciousness in harmony with nature. The main user of the project plays a fundamental role in the design of the architectural program; The house is resolved on one level with all the main social areas such as the living room, the dining room, the kitchen, the open terrace, and the pool, and the only private area: the master bedroom with a dressing room and its own bathroom. Leaving the guest rooms on a lower level, amenities such as a gym, spa, and service areas, and parking on another level.
The tour. The main access to the house is through a floating staircase that starts from the street to the main hall; The main hall has a warm and natural atmosphere with mirrors on the walls to generate greater space. Said vestibule is a key articulator in the house since it connects horizontally and vertically with different areas. The first area is the social one: living room, dining room, kitchen, open terrace, and pool. The second is the private one: connected by a glass bridge you reach the master bedroom that has a dressing room and bathroom. The third is the vehicular access at street level, in this space is the service room, machine rooms, and connecting with a direct vertical circulation to the lobby. Finally, it connects with a more intimate lobby, half a level below street level, leading to the guest rooms, gym, study, and spa.
Project gallery
客服
消息
收藏
下载
最近






























