查看完整案例

收藏

下载

翻译
Architects:HYLA Architects
Area:778m²
Year:2021
Photographs:Derek Swalwell
Manufacturers:AutoDesk,Chaos Group,Bretz,Kawajun,Made & Make,Phylux,Trimble Navigation,Wantai
Lead Architects:Han Loke Kwang
Engineering:GCE Consulting Engineers
Landscape Contractor:Nyee Phoe Flower Garden Pte Ltd
Main Contractor:Emma Groups Construction Pte Ltd
Interior:Graceful Décor Pte Ltd
Design Team:Tran Thi Thu Trang, Constans Tan
Country:Singapore
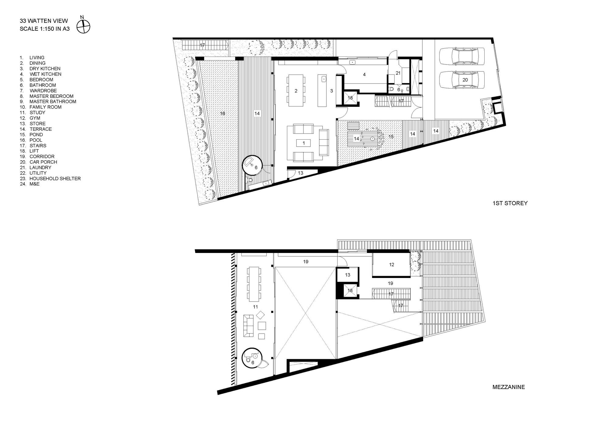
Text description provided by the architects. This house for a family of five sits on high ground with the rear having the view but facing west. The front faces east on a typical residential street. The design strategy was to place the living areas as well as the main bedrooms facing west to take advantage of the view. These spaces have deep overhangs or operable timber screens to protect them from the afternoon sun.
In front, a 15 m high forecourt with a koi pond and feature tree acts as the buffer to the public street frontage. This space is covered, yet outdoors as there are openings on various sides. It is enclosed yet permanently and effectively ventilated. And it is private from the outside world yet serves as the public space for the house where most of the circulation takes place.
At the rear, the pool deck is sheltered by the mezzanine study above which then acts as the shield for the double-volume living-dining space. This study is in turn protected by a rotating timber screen with each blade made up of 8 pieces of timber. To span the entire width of the house the floor is suspended from the top floor, via a pair of deep beams which also serve as a planter for the master bedroom. Throughout the house, nature is introduced and emphasizes the duality of the spaces. Are you inside, or outside? Why not both?
Project gallery
客服
消息
收藏
下载
最近



















