查看完整案例

收藏

下载

翻译
Architects:Anarchlab, Architecture Laboratory
Area:421m²
Year:2020
Photographs:José Campos
Architects In Charge:Pedro Ribeiro da Silva, Pedro Barata
Collaborators:Ana Almeida, Benedita Sampaio, José Azevedo
City:Porto
Country:Portugal
Text description provided by the architects. A single-family house for a couple with 2 children was the initial program...in the middle of the construction works, the initial program got even better and there were already 3 children to consider! The starting point was always the simplicity of the solutions, the strong connection with the garden, and wide and generous social areas for relaxing times with family and friends, all articulated with the pre-existence of an old stone house, along a quiet square, symbolic, facing North, from which we would go into the house. Times have changed, and this square, once pleasant, was now a mere widening for the passage and maneuver of cars, fast buses, arid, where the windows no longer searched for people passing by.
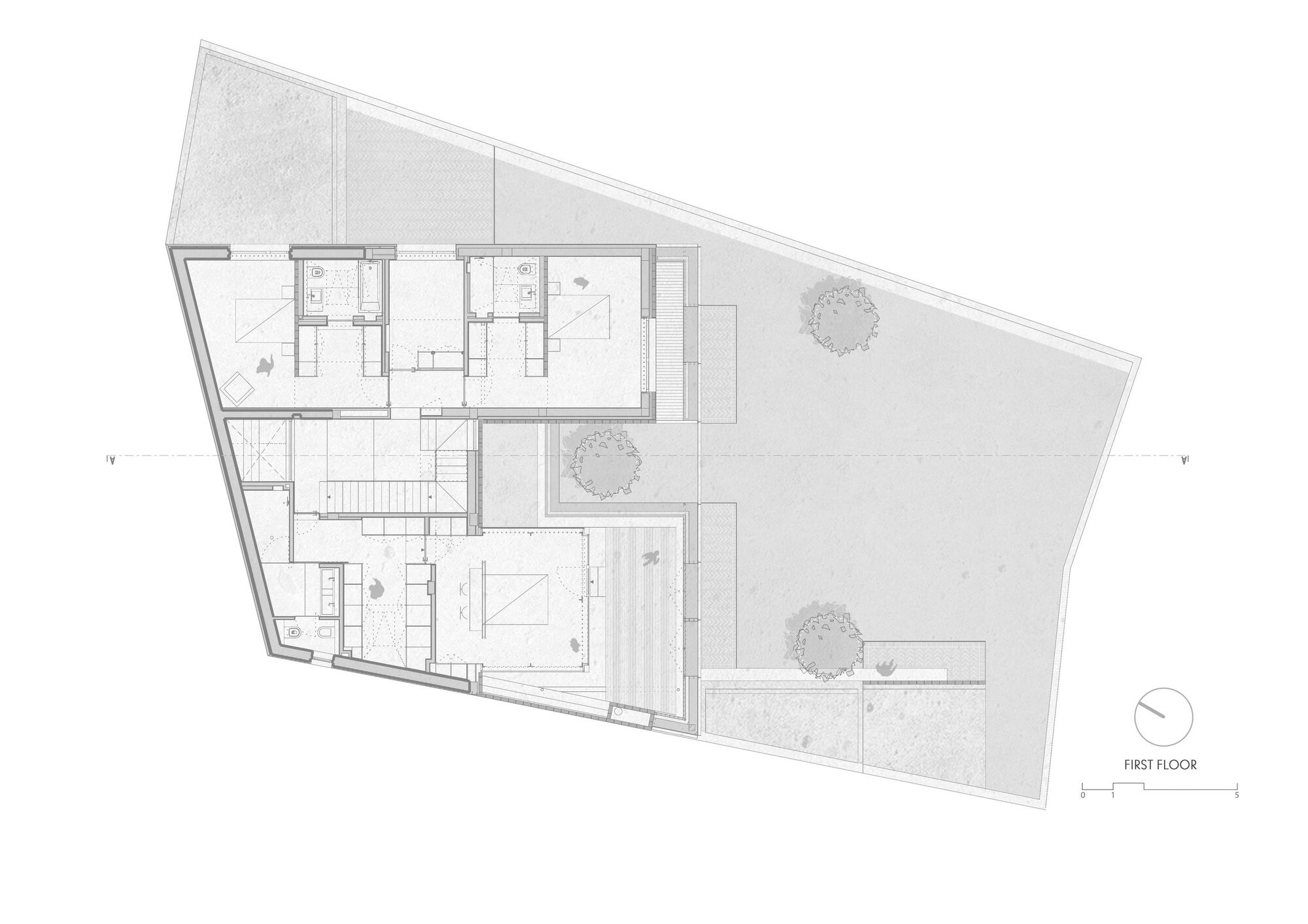
We started here: uncomfortable, noisy, and cold windows to the north were closed and ceased to exist, large continuous glass windows were created on the ground floor facing south, embracing the garden across its entire width, penetrating it with the robust materiality of the house in the form of outdoor living spaces paved with handcrafted solid brick and with a long concrete bench, which turns into interior furniture and vice versa. On the upper floor, the rooms face the South and East, with large windows no longer obscured by the overly exposed relationship with the square to the North.
The master bedroom emerges from the façade as a glazed volume that floats over a private terrace, protected by a huge structure of delicate vertical lines of ribbed iron, which will serve as the basis for a vertical garden to develop across the south-facing façade. This structure, supported by exposed concrete pillars, raw but delicate, will serve as a solar and privacy filter, mediating the close relationship with the garden below, with the sun, rain, and wind to the south, and with the large gym building outside the house further back, after the limit wall. In the attic, a large multipurpose room, looking North but further afield, towards the sea and the City Park, through the only window that, facing the square, dictates the laws of a new relationship.
In the construction, the experience of the handcrafted solid brick as a lego piece made the wonders of all involved: the client who brought back to their daily lives past experiences of living in central European countries that have always fascinated him; the architects who explored the extremely versatile, changeable toy that can be made both a wall and a floor, which is either laid at 90° or 45°, herringbone or running-bond.
Project gallery
客服
消息
收藏
下载
最近































