查看完整案例

收藏

下载

翻译
Architects:Malik Architecture
Area:15000ft²
Year:2019
Photographs:Bharath Ramamrutham
Lead Architects:Arjun Malik, Ketan Chaudhary, Ekta Naidu, Amay Gurkar, Kalpesh Pithwa
Structural Consultants:Global Engineering Services
Electrical Consultants:Lirio Lopez Consultant
HVAC Consultants:Aircon Engineers Pvt.Ltd
Civil Contractors:GSBA Builders Private Limited
Plumbing Consultants:S.S Gagan
City:New Delhi
Country:India
Text description provided by the architects. Delhi’s existing neighborhoods have traditionally been defined by 2 story houses set back from the tree-lined road and buffered from it by a front garden. This relationship has been altered by the new planning regulations that permit taller structures, consuming greater area and with reduced setbacks. The resulting urban condition creates the sensation of buildings imposing themselves on the street and within the homes, the absence of green cover/courtyards and light are palpable. The ground plane, formerly garden and patio/living spaces, has been given over to parking, eliminating any meaningful connection to the street outside.
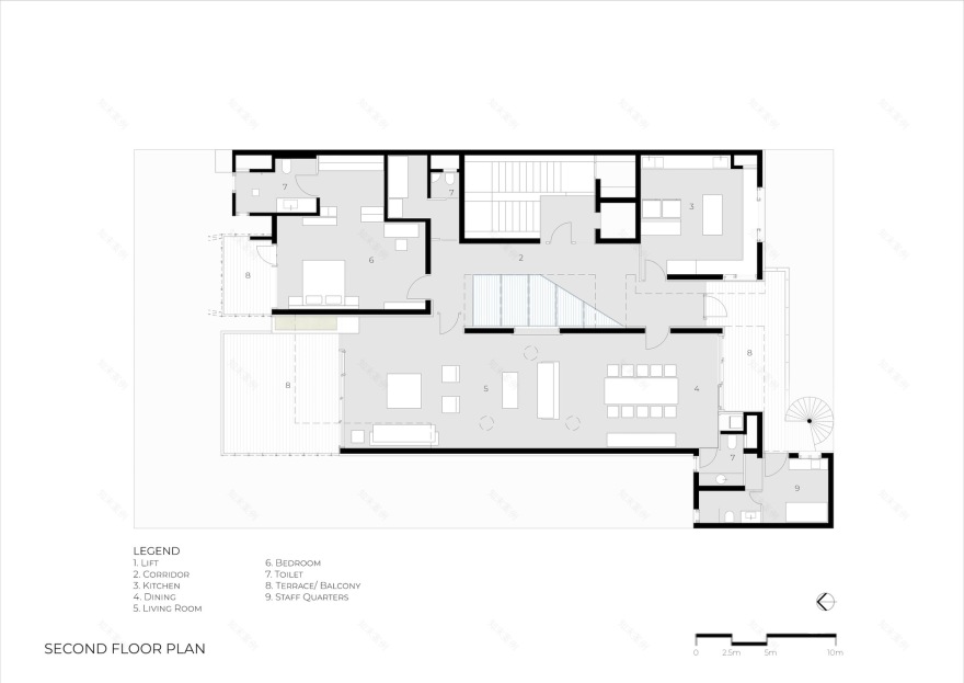
This proposal re-evaluates the typology of the building form as prescribed by the current guidelines and adapts it to re-establish the sensation of the pre-existing urban condition. The lower sections of the house are excised to allow the continuation of the street through the house creating a deep garden that propagates downwards into the basement office and upwards through a series of fragmented courts and fissures. The central courtyard is a network of labyrinthine voids running laterally and vertically through the house working as a light catcher and thermal balancer and expressed as a combination of green spaces, deep fissures, and skylights. A gigantic structural pylon is a load-bearing pivot for the cantilevered superstructure, creating shaded ground and resonating the language of Delhi’s monumental institutions.
As a concept we have adapted the western face of the house to bring in controlled light through punctures, screens, and northern skylights without opening up any views to the west, as there is another house only 20ft away. This arrangement allows us to bring the maximum amount of light from the north and northwestern parts of the house, which is where our site has the maximum openness.
The main living spaces open onto terraces with large overhanging volumes and operable second skins. The fixed and operable screening systems are adapted versions of the traditional 'jaali' – a typical architectural device in north India. South light is brought into the house through a vertical, deep recessed fissure that splits the volumes in the south. By elongating and narrowing the main circulation core we create a large, continuous open volume (32ft X 80ft) within which we can locate most of the living areas. It allows us to puncture the house with a vertical court without having to compromise on usable footprints and allows the house to be visually unified.
The ground-level courtyard is shaded from the south/west and receives ample light from the north which extends down into the basement and upwards through the main central court (also acts as a climate device, adaptable in summer/winter). By raising the major volume to a height of 18ft from the ground level a large garden can be opened in the north. A large cut-out brings light into the basement and this space connects with the vertical void running through the house.
Project gallery
客服
消息
收藏
下载
最近













































