查看完整案例

收藏

下载

翻译
Architects:CLB Architects
Area:2400ft²
Year:2023
Photographs:Matthew Millman
Manufacturers:Vibia,Blu Bathworks,Miele,Cassina,Dacor,Ligne Roset,Rather Well Design,Sub-Zero,Watermark Designs,Wolf
Contractor:Leo's Construction
Electrical engineering:Helius Lighting Group
Lighting Designer:Helius Lighting Group
Partner:Eric Logan
Principal:Sarah Kennedy
Project Manager:Maria James
Project Coordinator:Halie Dedering
Architecture:CLB Architects
City:Jackson
Country:United States
Text description provided by the architects. Evolving as deliberately as the forest surrounding it, the Paintbrush Residence stands as a testament to the longevity of the thoughtful design. Situated in a dappled Aspen grove outside Jackson, Wyoming, the treehouse-like project reorients the occupant to their place in nature, bringing them into a closer, more intimate cohabitation. Under CLB’s care, the home has been carefully crafted and recrafted over the past two decades in a series of graceful iterations which support the site’s shifting inhabitants.
Initially completed by CLB in 2003, the 2,400-square-foot home straddles spatial and budgetary constraints on a picturesque site with a small buildable area. The owner wanted a home that would immerse the occupant in nature, calling for a lightness and porosity that was missing from the dark 1970s-era cabin which existed on site. Rearticulating vernacular forms through modular components and machined details, and incorporating slow-weathering materials such as oxidized steel and cedar, CLB sought to render a structure that would sit lightly and change subtly over time – an organic object within the landscape.
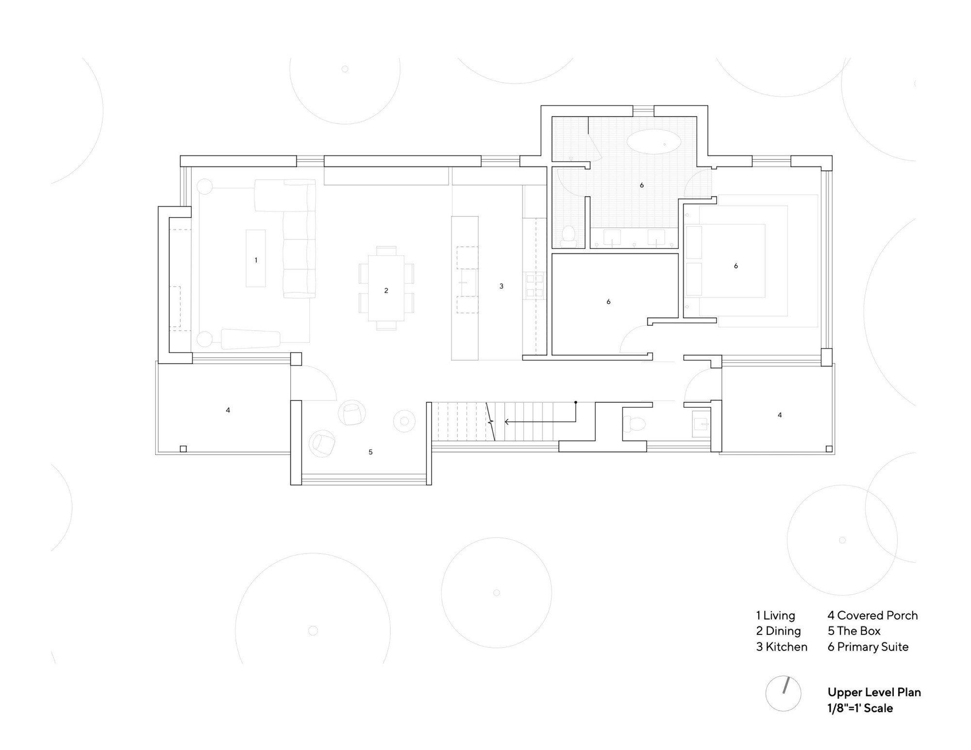
The residence’s design upends the public-to-private relationships of a traditional home, positioning the kitchen, master bedroom, and living room on the upper level nestled within the Aspen canopy. The airy and light-filled volume is revealed dramatically at the top of the stairs when the occupant finally “emerges” into the treetops. A cantilevered, cedar-clad projection from the second level further extends the immersion, allowing daily activities to coexist within expansive views of the outdoors.
A continuous band of glazed clerestories demarcates the high ceilings from exterior walls and filters sunlight into the interior. On the lower level, a guest bedroom and entry area sit close to the hillside, flooded with light by the expansive, two-story window which lines the main stairwell.
Twenty years after its original construction, the home’s care was transferred to a new owner who found inspiration in its humble materials, minimalist detailing, and evocative light quality. Seeking to update the home in its existing design language, the new owner wrote a letter to CLB asking them to revisit the project. The new design works within the decisive structural gestures of the original, while refreshing harder-wearing spaces and surfaces with finely-crafted details and warm, tactile, natural finishes.
Updated elements were fabricated and constructed through modular and machined techniques similar to those used in the original iteration. The team worked closely with the client to select an elevated palette of materials, prioritizing durability and a play of textures. In the kitchen, white oak cabinetry modules are framed by powder-coated steel to mimic the home’s structurally expressive exterior, and a reinvented island allows for easy entertaining. The master bathroom reverses the original plan, positioning the bathtub near the window and wrapping the ceiling and walls in tile and warm wood finishes.
The honesty of each material and connection is brought to the surface in an echo of the original, from expressed screw heads to machined cabinet elements. Drawing from the past and opening up new possibilities for the future, the home’s design embraces its process and the specifics of its place.
Project gallery
客服
消息
收藏
下载
最近




























