查看完整案例

收藏

下载

翻译
Architects:Carbajo Barrios Arquitectos
Area:170m²
Year:2020
Photographs:Luis Díaz Díaz
Lead Architect:Manuel Carbajo Capeáns y Celso Barrios Ceide
Delineation:David Camiño Quintela, Laura Pardo, Beatriz Asorey, Alejandro Calviño Pérez
Technical Architect:Enrique Martínez Carregal
Structural Calculation:Ameneiros Rey | HH Arquitectos
Engineering:Obradoiro Enxeñeiros
City:Sanxenxo
Country:Spain
Text description provided by the architects. Carabuxeira is a place located in Sanxenxo. It takes its name from a little beach placed at the foot of the southwest slope of the Alto de Chan de Gorita (a megalithic complex over 4.000 years ago), an enclave of great landscape value.
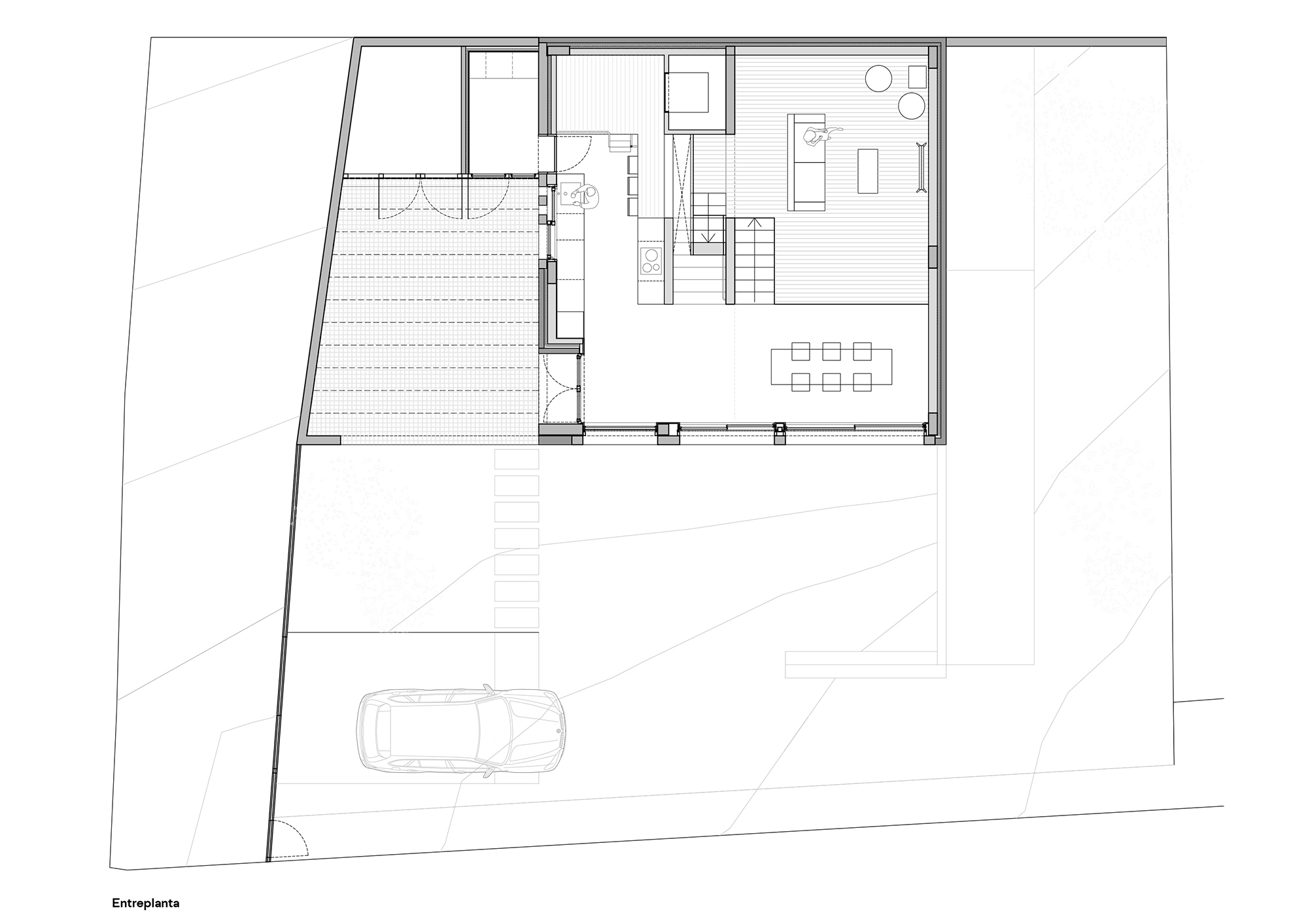
In this location, a small house is demanded, a refuge, of adjusted dimensions, raised as an open common space connected to the exceptional views that the plot has.
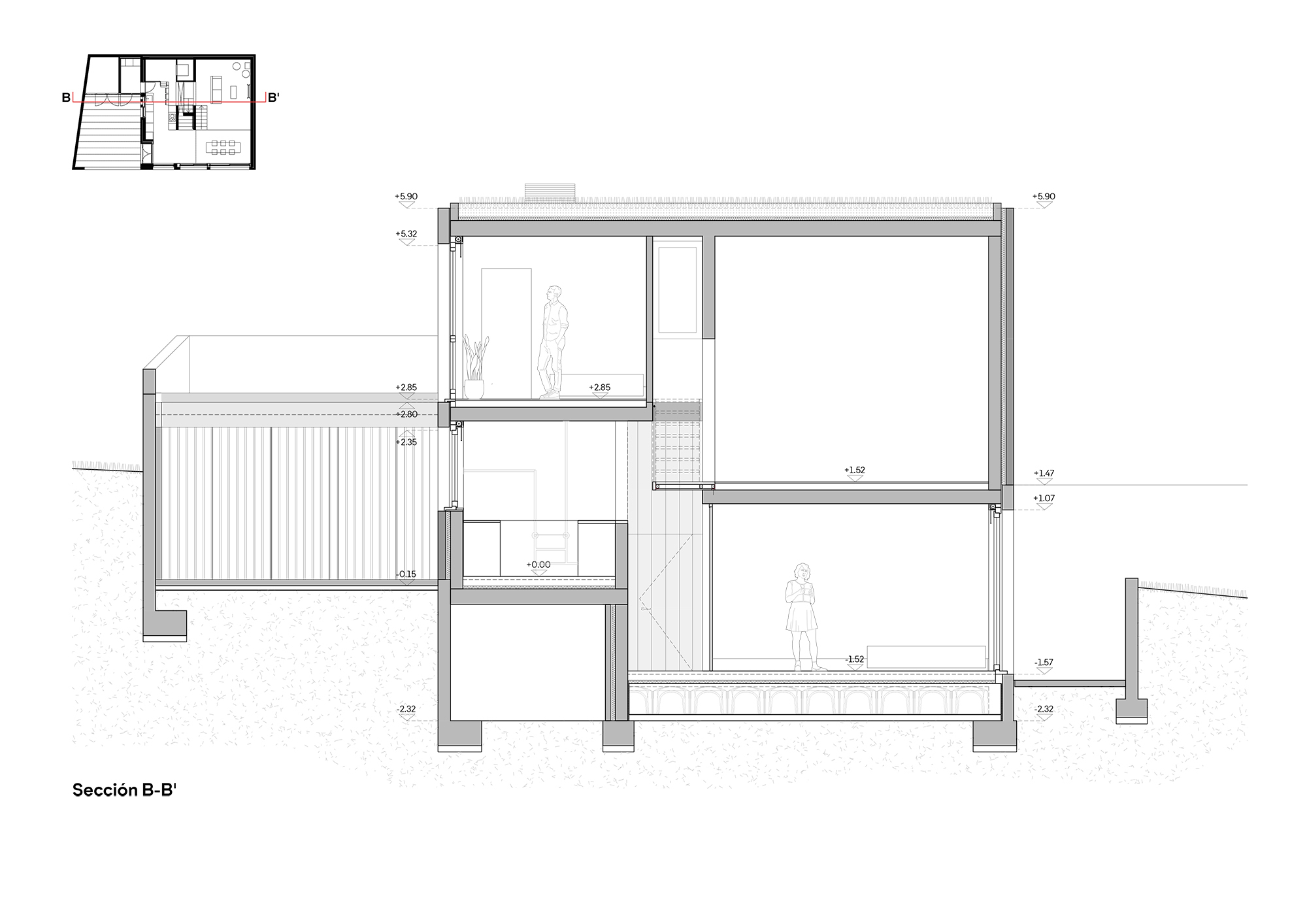
A container is projected that, starting from a main space that recognizes the topography on which it is located, raised to the exterior, both in close relation with the plot (living room, garden) and in the distance of the west views (Ría de Pontevedra). From the central space (live-walk-cook), new spaces are created with an intention of complementing it (bathroom), with scale and dimensions that are adapted to its uses.
As a volume, the purpose is to encourage landscape integration, making diffuse limits, connecting to the closing walls, and using a range of materials that appears in the environment nearby: grey granite, (like feet vine training), concrete, and cedar wood. A house between sea and mountain. An Atlantic refugee.
Project gallery
客服
消息
收藏
下载
最近


























