查看完整案例

收藏

下载

翻译
Architects:Anya Moryoussef Architect (AMA)
Area:67m²
Photographs:Doublespace Photography,Scott Norsworthy
Manufacturers:DuPont,Daltile,Delta Light,Liteline,Moncer Specialty Flooring,Torp Inc,Velux
Lead Architects:Anya Moryoussef, James Swain, Deborah Wang
Structural Engineer:Kieffer Structural Engineering
Landscape Architect:Zahra Awang
Builder:Desar Construction Studio Inc.
Program / Use / Building Function:Residential
Millworker:Renca + Heilimo Inc
City:Toronto
Country:Canada
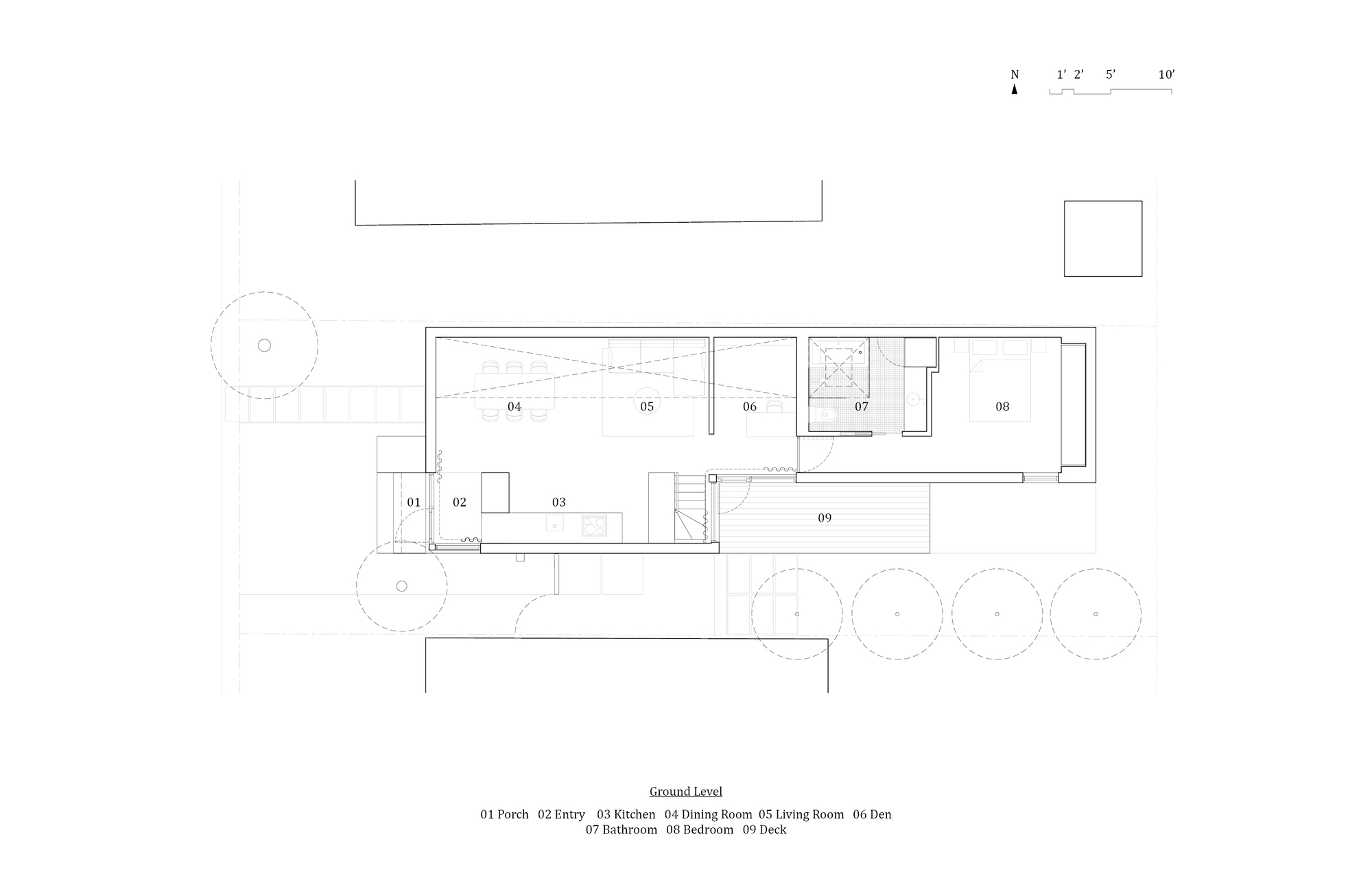
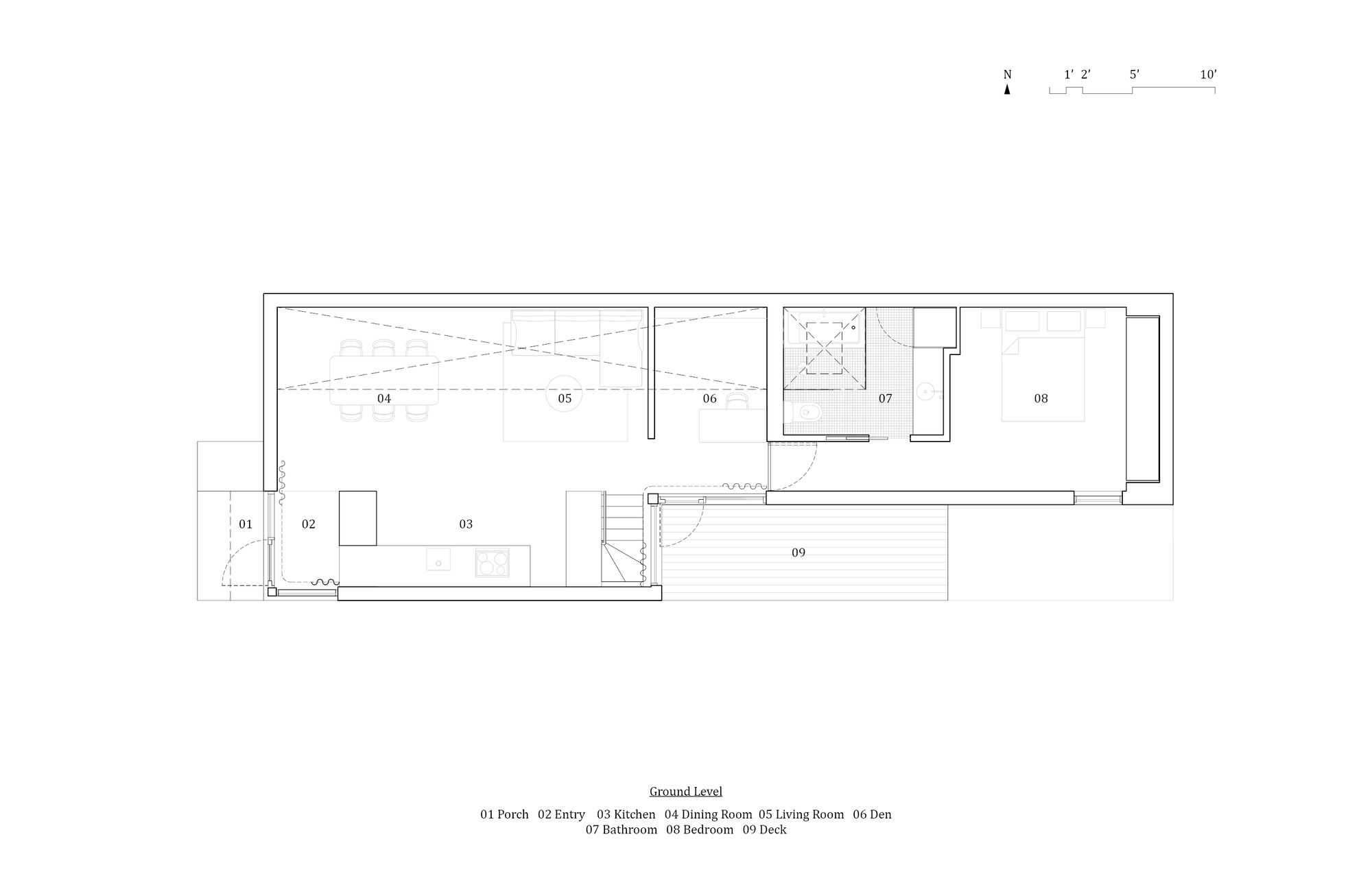
Text description provided by the architects. The complete transformation of this unassuming single-story worker’s cottage in Toronto’s historic "Tiny Town" turned a run-down house into a luminous and ethereal pandemic refuge. The client, Laurel Hutchison, is a retired schoolteacher living on a fixed income, with a budget earmarked for basic renovations to rescue her 112-year-old home from disrepair. The result is a 720 sqft, delicately proportioned, light-filled home, built on its original foundations while re-envisioning every other aspect of the worker’s cottage vernacular – a turn-of-the-century housing typology that has almost completely disappeared from the city.
Context. Craven Road represents an unusual urban condition. Previously known as Erie Terrace, the street was originally developed to house lower-income laborers and immigrants in the early 20th century. With small dwellings lining only the street’s east side, and a municipal fence running along the west, this atypical thoroughfare was the site of Toronto’s highest concentration of detached homes under 500 sqft. Today, Craven Road remains a close-knit community and unique architectural outpost in an increasingly unaffordable city.
The reinvention of the Typology and the Client Brief. With the original footprint intact, and heights of walls, roof angles, and window-to-wall percentages strictly pre-determined by the City's renovation guidelines, the design process entailed a careful study of the existing worker's cottage typology in order to be able to de-construct, transform, re-interpret, and re-construct the home in a completely modern way.
The main design strategies included flipping the program along the plan's long axis, re-orienting the plan towards the intimate south-facing courtyard, and creating a sense of compression and expansion by reinventing the roof's traditional gable as a 36-foot long sawtooth clerestory to flood the home with natural light and fresh air. Additional apertures were strategically introduced to draw in light from various directions and seamlessly connect the interior to its small garden while obscuring direct views into the home from the outside. Together, these formal and phenomenological strategies create a sense of a highly animated, ever-unfolding space that defies the physical boundaries of the 720sf home.
These design decisions were a direct response to the client's mandate: a desire for abundant light, peacefulness, and a relative sense of seclusion from her busy urban surroundings. In response to this desire for inspired solitude – where one can be alone, but not lonely – the home has been transformed into a vessel of light and shadow, where the two almost seem to inhabit the space, alongside Laurel. Despite its relatively minimalist aesthetic, the home always feels full. To further emphasize this, the 16-foot-tall interior facade of the home's north wall, which forms a backdrop to the home’s main living spaces, acts as a projection screen for the ever-changing color, glow, and shadow of the passing day and seasons, including the dappled light and arboreal silhouettes of the mature urban forest on the west side of Craven Road.
Aging-In-Place, Affordability, and Maintenance. The home consists of four rooms: a combined entry, living, dining, and kitchen space; a small studio/den that could accommodate a single bed; a combined washroom/laundry room; and a principal bedroom. This straightforward program was complemented by an aging-in-place strategy that integrates a U-shaped kitchen for easy circulation; a curbless wetroom suitable for accessibility equipment with walls blocked for future grab bars; LED lighting and robust finishes to promote low maintenance and energy bills; sleeping space for a potential live-in caregiver; and a front porch designed to accommodate a future ramp, with a canopy that protects against weather.
Project gallery
客服
消息
收藏
下载
最近


































