查看完整案例

收藏

下载

翻译
Architects:Miguel Olazabal Arquitectos
Area:308m²
Year:2020
Photographs:Luis Asín
Lead Architect:Miguel Olazabal
Design Team:Juan Carlos Plaza, Fernando Polo
Structural Engineering:Montserrat Jori
Contractor:Sucesores Barber S.L.
Country:Spain
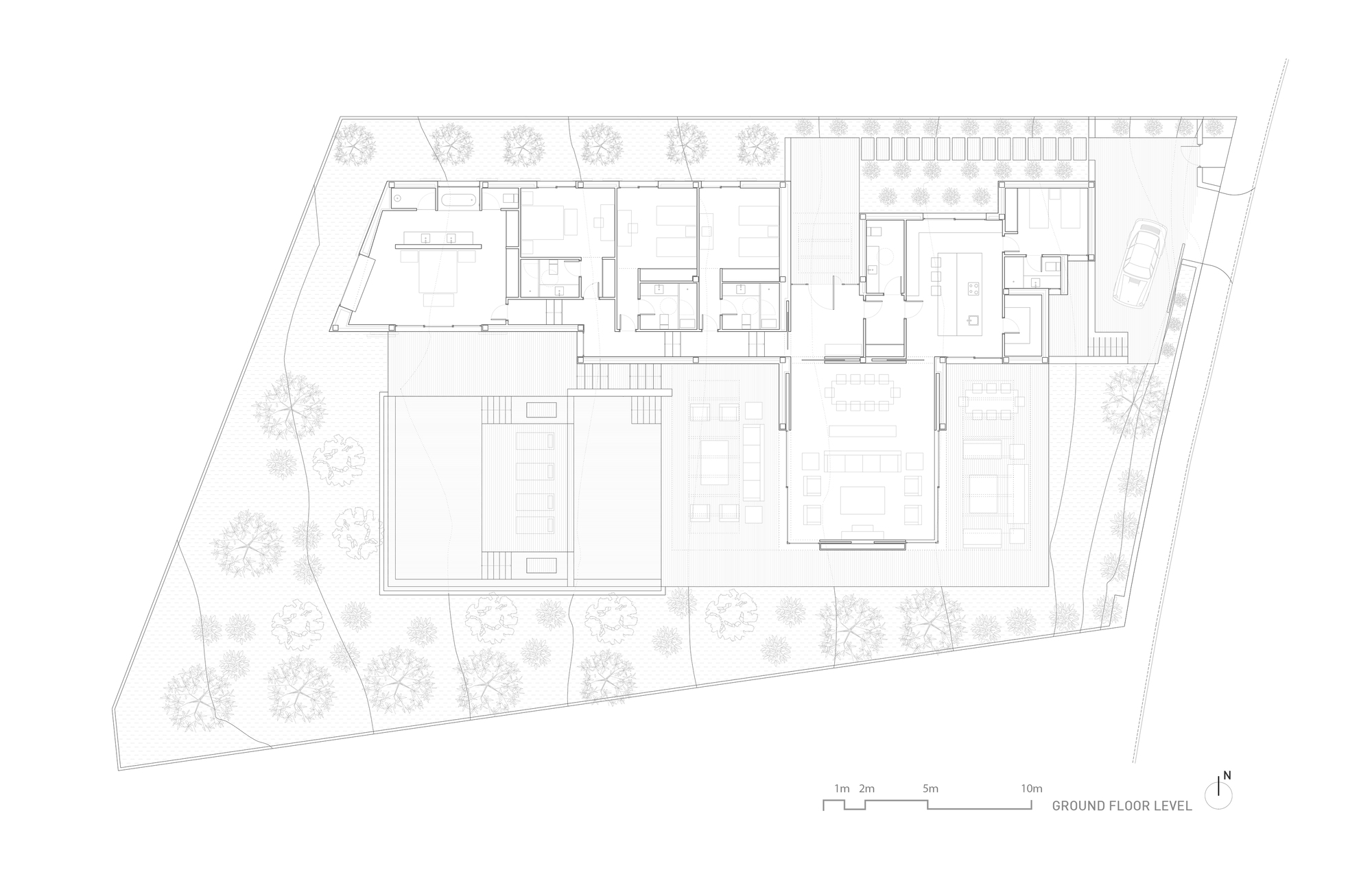
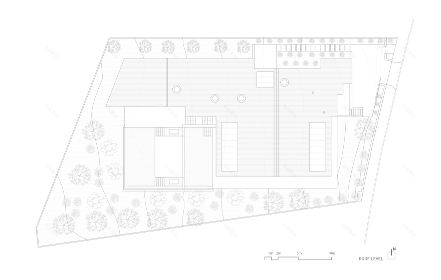
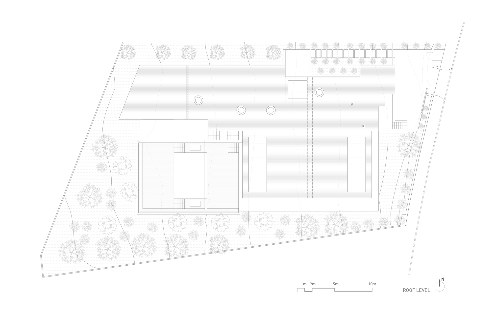
Text description provided by the architects. The Casa Cavero arises from a cross-cutting dialogue between the dwelling and its privileged natural environment. The roof, an identifying and structuring element of the project, adapts smoothly to the topography of the plot so that it emerges from the ground itself and follows the natural slope of the land, creating a close and intimate relationship with it.
Architecture is not imposed but rather accommodates obtaining the best of the land for its own benefit. The program is fully developed on the ground floor, demonstrating its commitment to the environment by not standing out more than necessary, in addition to offering users a simple way of living, and organizing the functioning around the daytime spaces, both built and unbuilt.
The main living room opens up to views of the southern coast of Menorca while being protected from the Tramontana wind, allowing the sea breeze to flow through and cool the room in summer, while in winter it allows adaptation to the intense winds with a series of strategically located outdoor spaces.
Regarding its materiality, the project alternates between two very characteristic materials of the island such as white mortar and dry stone walls, which together with the exposed white concrete roof and limestone flooring have a clear integrating vocation with the environment and history of the place.
Project gallery
客服
消息
收藏
下载
最近






















