查看完整案例

收藏

下载

翻译
Architects:Viento Norte
Area:155m²
Year:2022
Photographs:Matias Riveros
Manufacturers:Abeja Reina,Dveta
Lead Architects:Dulce Elena Sánchez y Valeria Perramont
Architectural Drafts:Teresita Polette
City:Puerto Varas
Country:Chile
Text description provided by the architects. The Casa MiniDV is a rural architectural work that stands out for its functionality, compact design, and fast construction. The project was designed by architects from Viento Norte, who sought to integrate the house harmoniously and respectfully into its natural environment.
The two-sloped design of the house is a classic solution for the area, perfectly adapted to the flat 5,000m2 terrain and the natural tree line that divides it. The facade facing the access street is hermetic and integrates with the plantation of native trees, providing a sense of privacy and protection to the home. Additionally, the maneuvering yard, cellar, and greenhouse make up a more functional and service-oriented sector of the house.
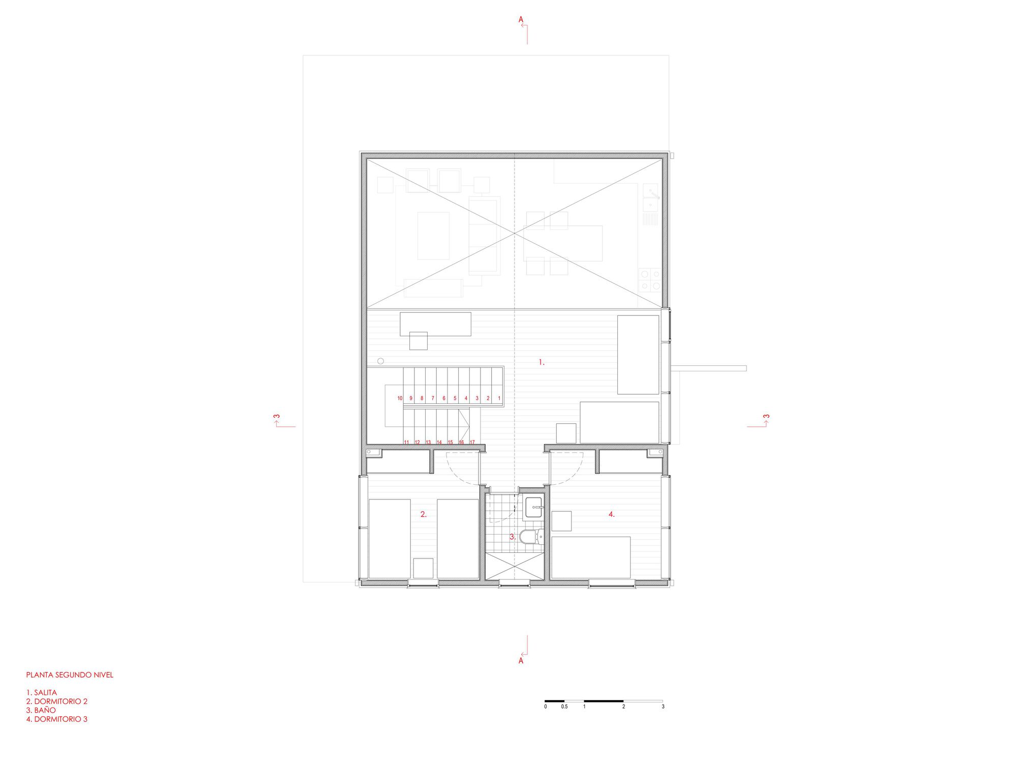
The spatial distribution of the house focuses on creating a welcoming and functional main space. The double-height living room and large corner window allow natural light and views of the forest and distant meadows. The kitchen and dining room are integrated with the living room, creating a warm and cozy atmosphere. The playroom on the second level is also integrated into the main space, projecting out from it. Meanwhile, the private areas of the house are compact and functional, designed to offer comfort and privacy.
The structure of the house was built on a concrete base, and the frame is entirely made of wood, covered in white painted pine board to provide brightness and warmth. The windows, supported by graphite-stained wooden structures, create contrast and frame the view toward the outside. The hermetic facades covered in graphite zinc contrast with the large windows and the tile entrance, creating a fusion of the traditional and contemporary.
In summary, the Casa MiniDV is a rural architectural work that perfectly integrates into its natural environment, combining functionality and aesthetics in its design. A compact and cozy home that offers its inhabitants a life experience in the middle of nature.
Project gallery
客服
消息
收藏
下载
最近




































