查看完整案例

收藏

下载

翻译
Architects:GRAO
Area:80m²
Year:2023
Manufacturers:Cortinas del Río,Lampenwelt,Terrazos Andalucia,Tres
Lead Architect:Francisco García Ramírez
City:Encinas Reales
Country:Spain
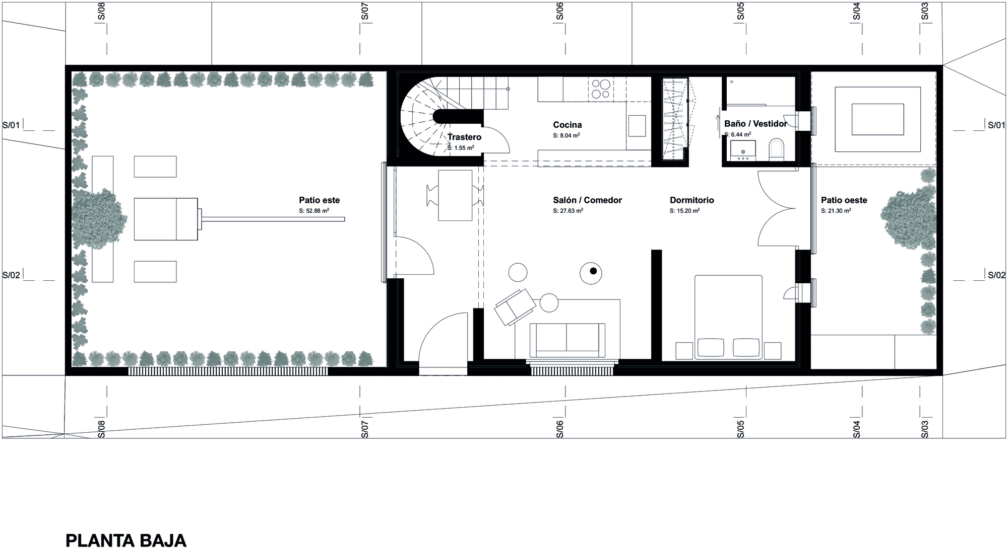
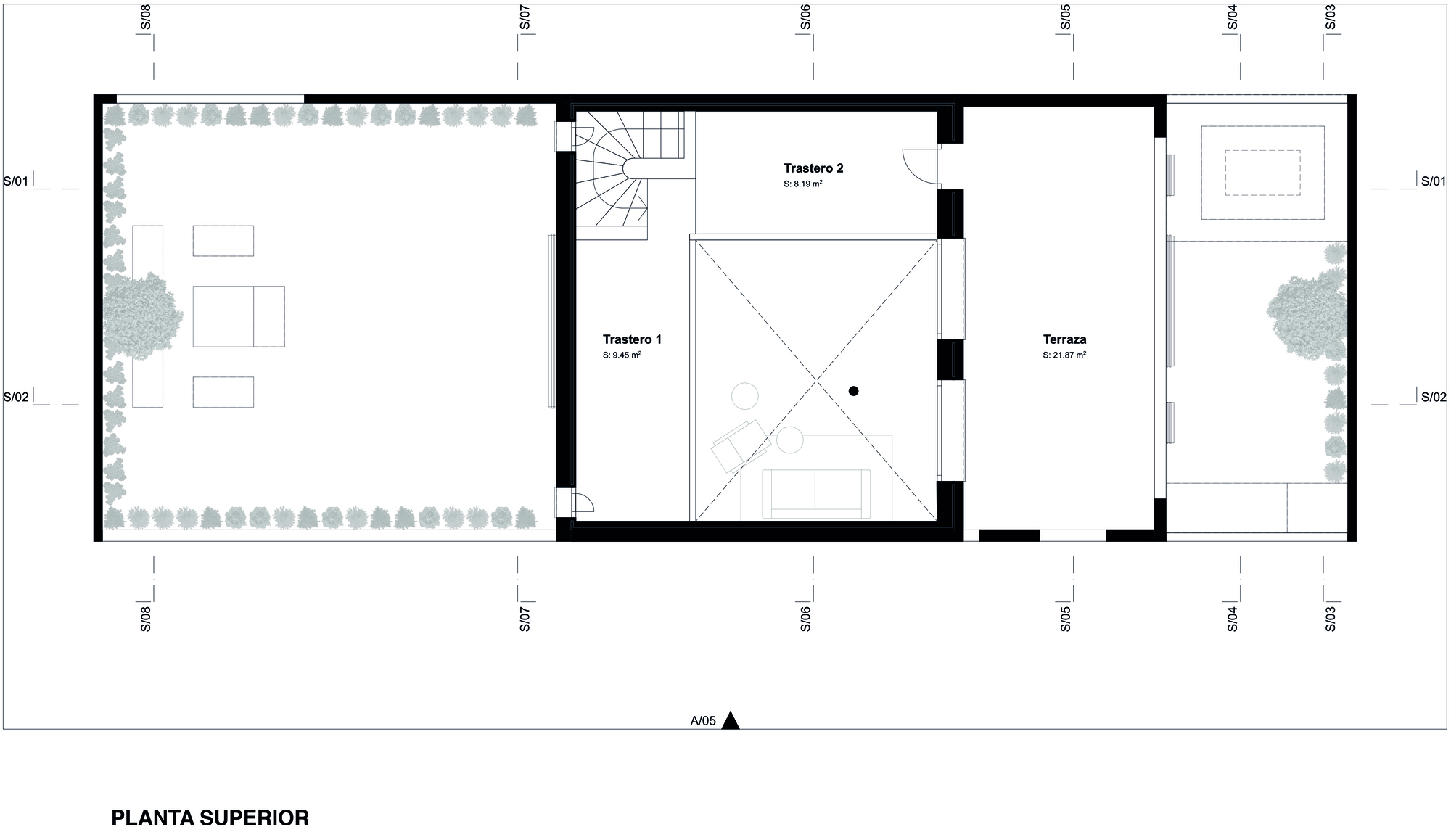
Text description provided by the architects. South Córdoba, on the outskirts of a small rural town and delimited in its northern part by a vast landscape of olive groves, is located the „Casa Libertad“, named after the homonymous street in which it is founded. Conceived as a retirement home for the parents, with a main room as a living & dining room, kitchen, bedroom, bathroom, two patios, and a terrace, is the result of a coworking between a father as a master builder and a son as an architect. The building is on a rectangular plot measuring 7 x 20 meters and rotated 45° around the cardinal axes. In other words, on the face of things, its orientation and its location in an urban environment of little interest are not ideal.
In keeping with the tradition of domestic architecture in warm climates -and with immediate references such as the classical domus, the Islamic house and the local traditional architecture- the building‘s implementation strategy has been based on achieving a certain autonomy concerning its immediate surrounding by defining an isolated architecture as a monolithic box closed to the exterior; however, it is opened to the interior patios, where family life takes center stage.
The project seeks a building and a constructive system that with very few elements could be appropriated by a family as a dignified home and can be built in the fastest and most efficient way possible.
The project is a firm commitment to using local materials with low environmental impact and applying passive air conditioning systems. Solar radiation is captured in winter and avoided in summer using mobile wooden shutters. Thermal bridges are minimized and cross-ventilation and thermal inertia are maximized, generating breathable, healthy living spaces with very low energy consumption.
The program, the structure, the construction, and the comfort of this building are resolved with a unitary strategy arising from the qualities of the materials used. These are coming mostly from the same municipality itself and are present in the vernacular architecture.
Project gallery
客服
消息
收藏
下载
最近

















































