查看完整案例

收藏

下载

翻译
Architects:ArquiPartners
Area:414m²
Year:2022
Photographs:Lorena Darquea
Lead Architect:Arq. Rubén Rodríguez, Arq. Lorena Ortiz, Arq. Martha Serrano.
City:Ocotlan
Country:Mexico
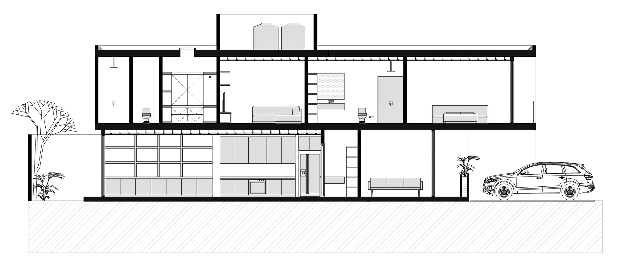
Text description provided by the architects. The house is located in the condominium of Mitica Residencial in the city of Zapo-pan, Jalisco. The project is developed on a 309 m2 lot, it has 2 levels and a small service basement.
The concept emerges from the idea of a central patio where most of the spaces in the house can coexist, in addition, to taking advantage of the ventilation, lighting, and views throughout the house.
On the ground floor, the most social spaces are distributed: the living room, dining room, kitchen, and a small study; with a large opening onto the terraces and private gardens of the house. The front patio has the function of parking and access to the house as well, however, a garden is created that overlooks the main facade of the house. Upstairs there are 3 bedrooms with their own bathroom and walk-in closet, as well as a TV room that overlooks the large double-height window that gives the house a special character.
The materials we consider for the facades are wood, stone, and warm tones in paint to create an attractive and modern style that stands out from the other houses.
Project gallery
客服
消息
收藏
下载
最近























