查看完整案例

收藏

下载

翻译
Architects:HYLA Architects
Area:673m²
Year:2022
Photographs:Derek Swalwell
Manufacturers:AutoDesk,panoramah!®,SketchUp,Bocci,Daikin,Davoe,Fibaro,MacroAir,Sene,Somfy,Vray
Engineering:ASE Consultants
Landscape Contractor:Green Forest Landscape Pte Ltd
Main Contractor:Emma Groups Construction Pte Ltd
Interior:Graceful Décor Pte Ltd
Design Team:Tran Thi Thu Trang, Nicolas Teoh
Country:Singapore
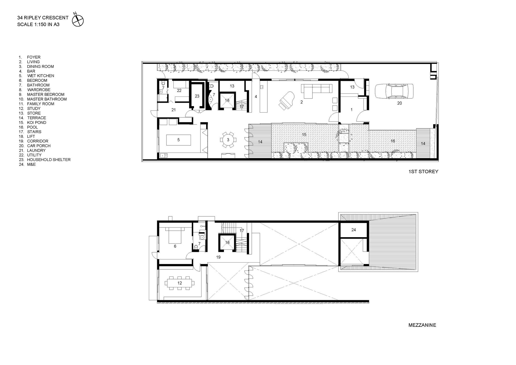
Text description provided by the architects. The house sits on a typical landed housing plot with an oncoming road directly facing the front and this becomes a privacy issue. To address this, a vertical court is inserted between the house and its adjoining neighbor. All the main spaces of the house look into this courtyard.
At the ground level, there are two pools, a koi pond under the covered skylit trellis extending into a swimming pool outside. The double-volume living, and dining rooms open to this court, with correspondingly tall sliding and folding glass doors that can open fully. The courtyard is covered at the top with a glass roof and an intricate pattern of the anodized aluminum trellis. This creates a perfect environment for the house – sheltered from the rain, screened from the sun, hidden from the public, and well-ventilated through the large opening in front. It is a veritable oasis for the family and their guests.
This typology redefines how a typical landed house in Singapore can relate to the environment. It enables a space that can be fully opened yet remain private, sheltered, and comfortable. The house still has the usual assortment of (6) rooms and sits on a plot size of 445m2 so it is a very typical house with regard to its requirements. The Merriam-Webster dictionary defines an oasis as “something that provides refuge, relief, or pleasant contrast”. We think a house in Singapore can be all three, especially in this era of uncertainty and trouble.
Project gallery
客服
消息
收藏
下载
最近




















