查看完整案例

收藏

下载

翻译
Architects:Viento Norte
Area:150m²
Year:2020
Photographs:Matias Riveros
Manufacturers:CHC,Tablao PV
Architects In Charge:Dulce Elena Sánchez, Valeria Perramont
Drawings:Teresita Polette
City:Puerto Varas
Country:Chile
"Casa Cumbre" is a housing project that aims to reinterpret rural living by combining natural beauty with modern sophistication and comfort. Located in the town of Las Quemas, near Puerto Varas, it seeks a flexible design that can adapt to different types of spaces and uses.
The house is located in a typical grazing meadow of the region, a blank canvas that allowed the project to start from scratch. Its location at the back of the plot allows for distant views of the Andes mountain range and close-up views of the surrounding trees and the garden and orchard that will be created over time.
An optimal solar exposure is sought through a transparent axis that runs through the house from east to west, capturing the light of sunrise and sunset.
The project focuses on the common areas of the house, with a living room, dining room, and kitchen integrated and with double height, which receives the sun at different times of the day and provides a sense of spaciousness and spatial integration. A small room protrudes over this space, further enhancing this feeling.
Towards the east, a winter garden is projected that functions as an intermediate space between the interior and exterior, a place protected from the rain that on sunny days helps to heat the house. This space is an extension of the interior of the house and the place where the plants and animals of the house coexist.
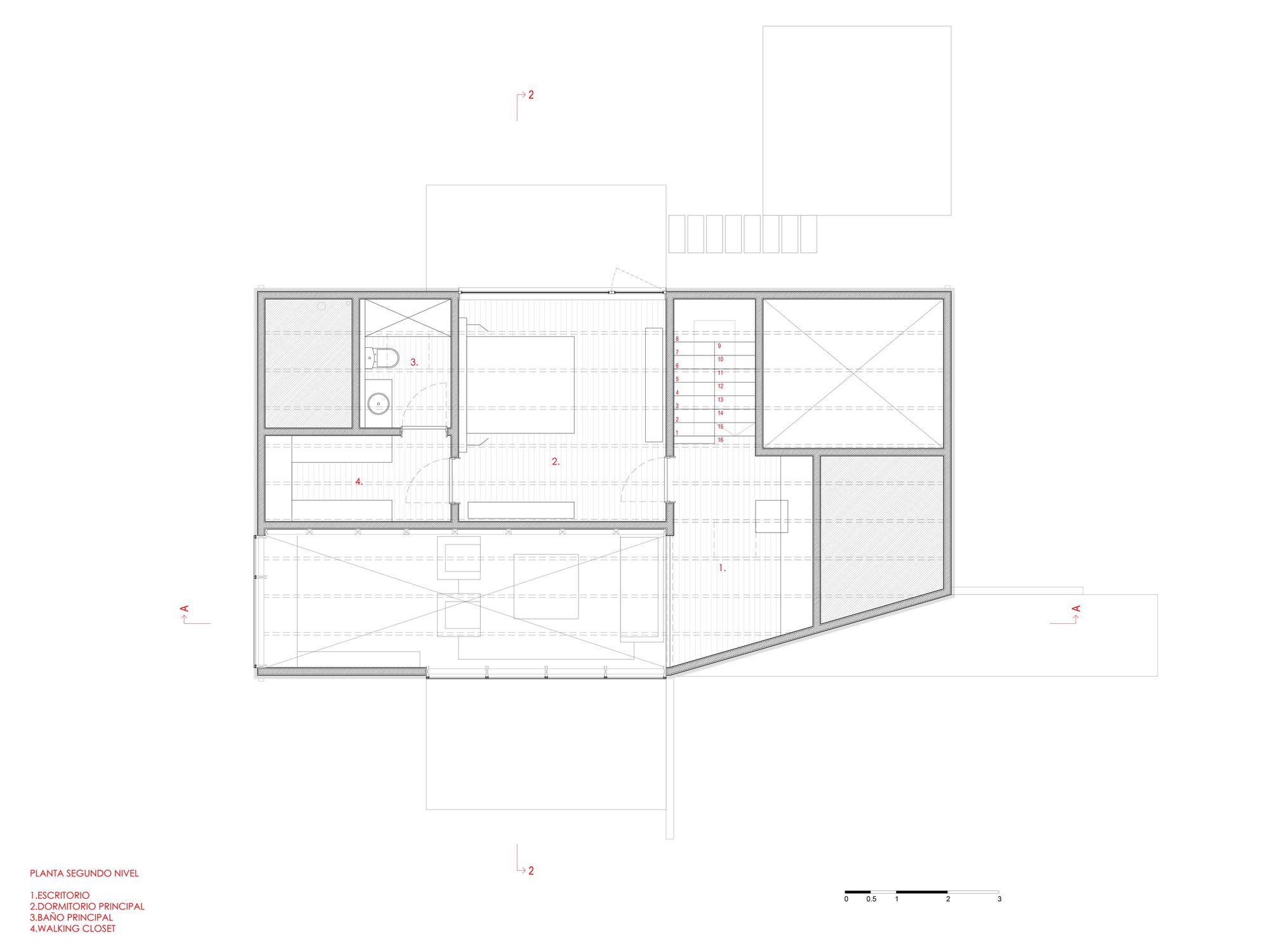
The shape of the house is given by its interior program, with level 1 housing the main common spaces and a guest bedroom and bathroom. On level 2, we find the small room and the master bedroom with its bathroom and walk-in closet. The ridge, or the highest point of the house, responds to the layout of the second level.
The structural system of Casa Cumbre is a house with a mixed structure of steel and traditional wooden framing, with a black zinc exterior combined with wooden details that create a feeling of warmth and invite protected access to the house and its terraces. These are the elements that connect the house with the terrain.
Inside, structural elements of steel and wood are exposed. The native wood floor and white-painted wooden walls contribute to the natural brightness of the space.
The wood used in Casa Cumbre is a sustainable and environmentally friendly choice. By using wood in the walls and floor, the carbon footprint of the construction is reduced and the responsible use of natural resources is promoted. In addition, being a renewable and biodegradable material, wood is an ideal option for achieving sustainable construction and harmony with the natural environment in which the house is located.
Project gallery
客服
消息
收藏
下载
最近

































