查看完整案例

收藏

下载

翻译
Architects:Bakermat atelier voor architectuur
Year:2021
Photographs:Michiel Vergauwe
Manufacturers:Floren Bricks,Profel,Winckelmans
Text description provided by the architects. The original house dates from 1959, the home of the current occupant's grandmother. A typical Belgian subdivision house of that time. Sober in detailing, limited in daylight, and with no connection between the living space and the garden.
The current residents, a newly composed family with large age differences, needed more space. Mainly the parents felt the need for their own living space again: a space rich in daylight with a connection to the garden and an extension with a focus on lifelong living.
There was also a desire to design the conversion of their home in the spirit of the Californian modernist architectural style, inspired by case study houses. A style in keeping with the client's penchant for vintage designer furniture. The budget was limited, and the house had to remain habitable at all times during the works. Bakermat is set to work with this parameter.
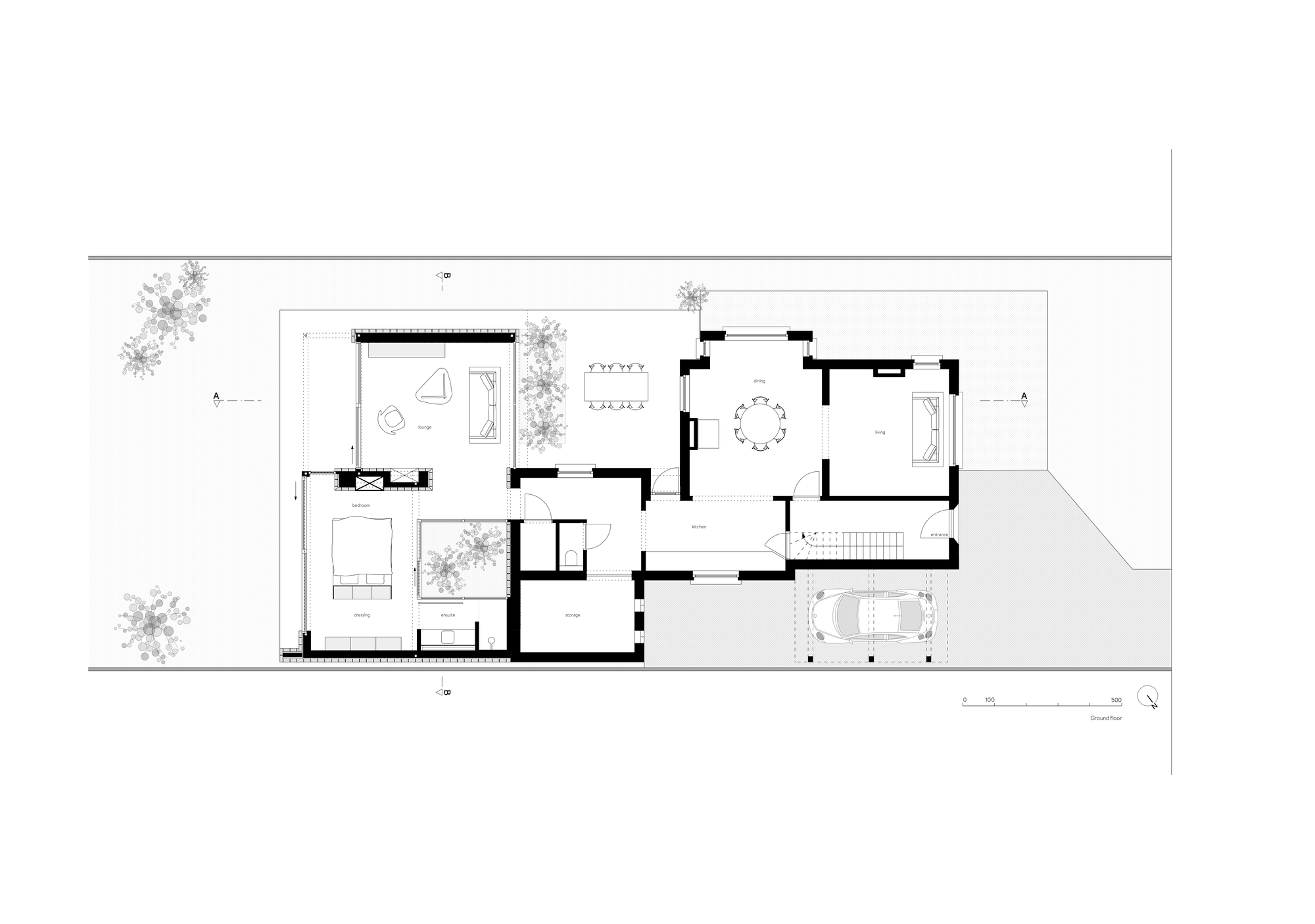
The existing layout on the plan, as well as the façades of the existing house, were almost entirely retained. At the back, the façade was slightly altered to create a connection with the new extension.
By using clean lines and large windows, a new experience was designed for the house. The patio works for both connection and separation between the sleeping area and the living space. An ideal buffer that also draws in plenty of light. A green tube that focuses on the indoor-outdoor experience in the middle of the house. The spaces are further organized around a large fireplace volume. The central fireplace became the ideal separation for the bedroom from the living space. On top of that, the volume hugely determines the façade and volume effect of this extension.
The extension was deliberately kept clean, with minimal lines and optimal views. The possibility of smoothly opening up the house and enhancing the indoor-outdoor feeling was realized by the minimalist extension. Built-in cupboards were integrated here to achieve an atmosphere of optimal tranquillity. The original house stores most of its belongings, so the openness in the new design would not be negated.
The connection of the new living space with the garden is emphasized by the covered terrace adjacent to the living space and the fireplace volume.
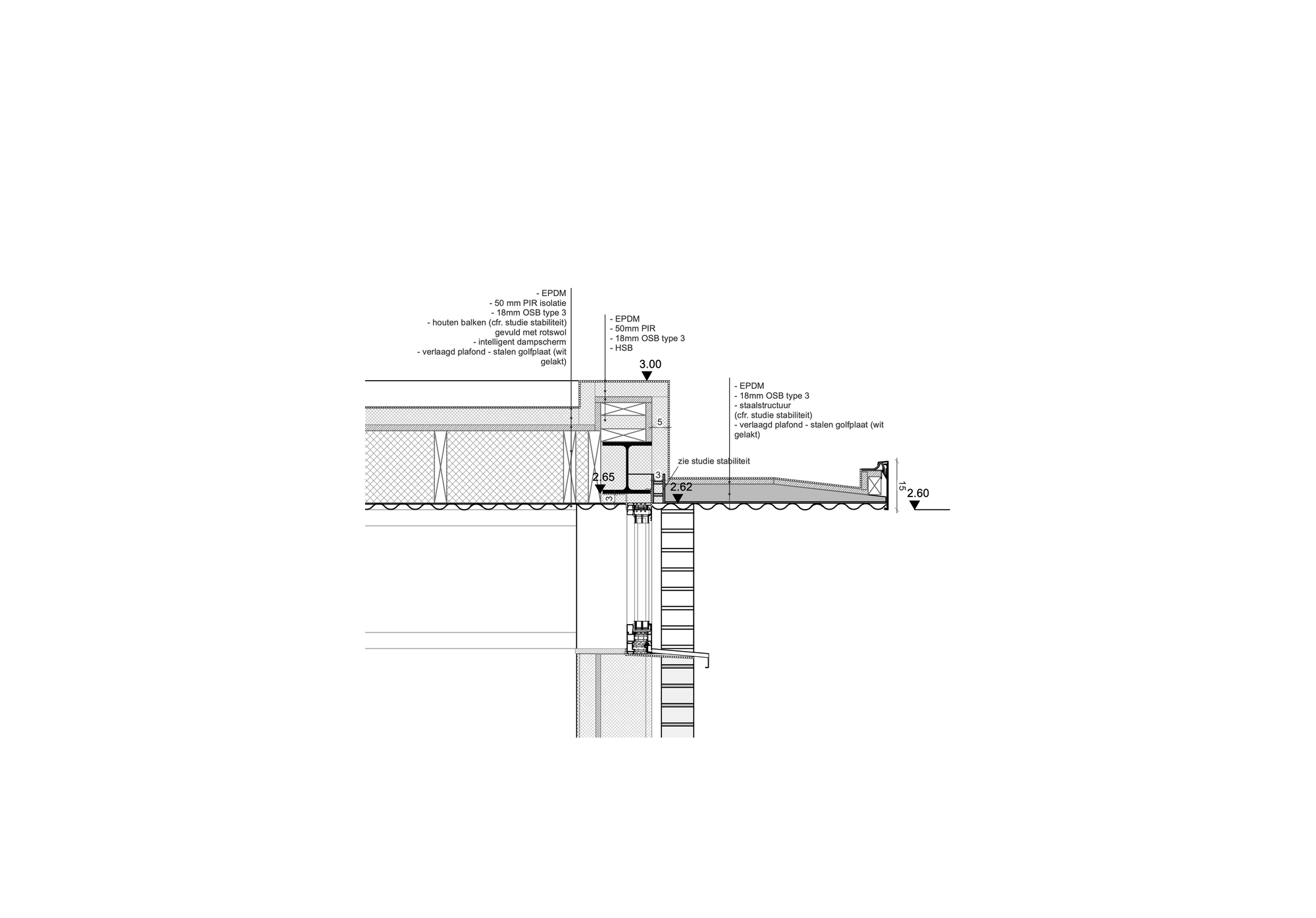
In terms of materialization, a clear vision was put forward. The color of the facing brick was deliberately chosen to be similar to that of the façade. By choosing a straight masonry bond, a sufficient contrast was created without causing an inconsistency in materials. The metal roof finish is painted white, as is the corrugated iron ceiling. In turn, the aluminum joinery is black while the floor is natural-colored polished concrete.
The interior was further finished with a warm color palette. The colors red and green combined with black and warm shades of walnut veneer formed a whole that was continued in the design. Despite the diversity of furnishings, the house has a calm understated impression.
Project gallery
客服
消息
收藏
下载
最近


























