查看完整案例

收藏

下载

翻译
Architects:ANNABAU Architektur and Landschaft GmbH
Area:166m²
Year:2022
Photographs:Hanns Joosten
Wood construction:Zimmerei David Krebs
Facade Builder:Zimmerei David Krebs
Heating And Plumbing:Bau Casekow
City:Friedrichswalde
Country:Germany
Text description provided by the architects. Opposite the village church in the village center, on a rectangular plot lies the House Parlow. The elongated property slopes downward towards the east and, thanks to its location, allows a view over the roofs into the countryside.
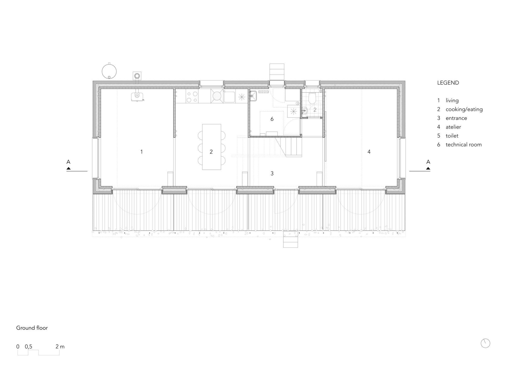
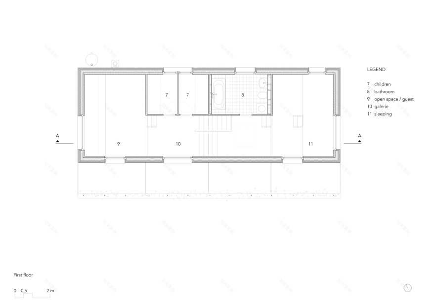
The building is only 5m wide and 15m long. Due to the small ´´footprint´ ´of the house, a lot of open space is preserved. The angle of the shed roof is chosen parallel to the topography. The landscape also has a constitutive effect on the interior. The ground floor cascades over four plateaus. Above them, platforms made of pure cross-laminated timber are arranged at different heights and connected by stairs with varying inclinations.
In addition to the serving functions, such as the kitchen, bathroom, and toilet, many flexible areas do not have to be assigned a specific use. The interior development experiences a performative moment due to the many offsets and open visual relationships.
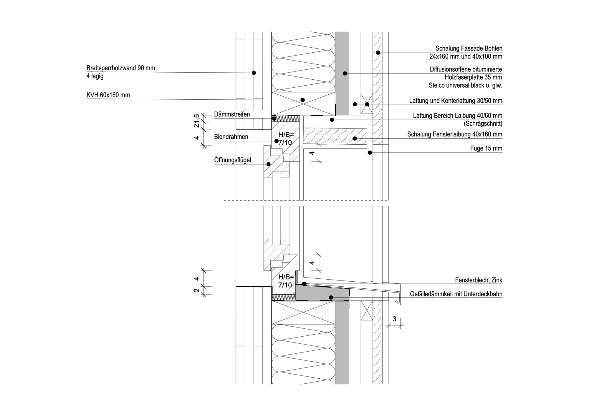
The four plateaus of the ground floor are based on reinforced concrete foundations and were given exposed concrete floors. All rising structural elements are consistently made of cross-laminated timber panels of different thicknesses, which remain visible inside. The cross-laminated timber elements of the exterior walls are building-high, and the ceilings are hung between the walls. This significantly reduced the number of components. The exterior walls are insulated from the outside with cellulose fiber and covered with rough-cut spruce planks. Their red color contributes to the house's special character.
The roof is a green roof with a retention layer that stores rainwater and releases it to the plants over a long period. The project's sustainability is characterized by the chosen wood building materials, a green roof with retention volume, and an energy concept. Heating is provided by an air heat pump and supplemented by a wood stove.
Only the floors on the ground floor are equipped with underfloor heating. Warm air can flow through the building through the intermediate spaces, reducing energy consumption. Massive components (concrete floors) store heat and release it with a delay. The roof is prepared for the installation of PV modules. The green roof protects against excessive heating in summer.
The large, partly fixed-glazed wall openings allow the exterior and interior spaces to flow into one another, especially at the front ends. Protected by a canopy, a terrace follows the interior's cascades on the south side. Hardy kiwi plants intertwine on the plant strands along the south side, framing the terrace and providing shade in the summer months.
The house's materials are robust and age-worthy due to the surface quality of the raw building materials and finishes.
Project gallery
客服
消息
收藏
下载
最近







































