查看完整案例

收藏

下载

翻译
Architects:CDC ARQ
Area:65m²
Year:2021
Photographs:Ana Grucki
Manufacturers:Calyfornio,Glassic,Grifería,Humitronic,Huup,Purastone
Director:Rodrigo del Castillo
Designer:Paula Casado
City:Buenos Aires
Country:Argentina
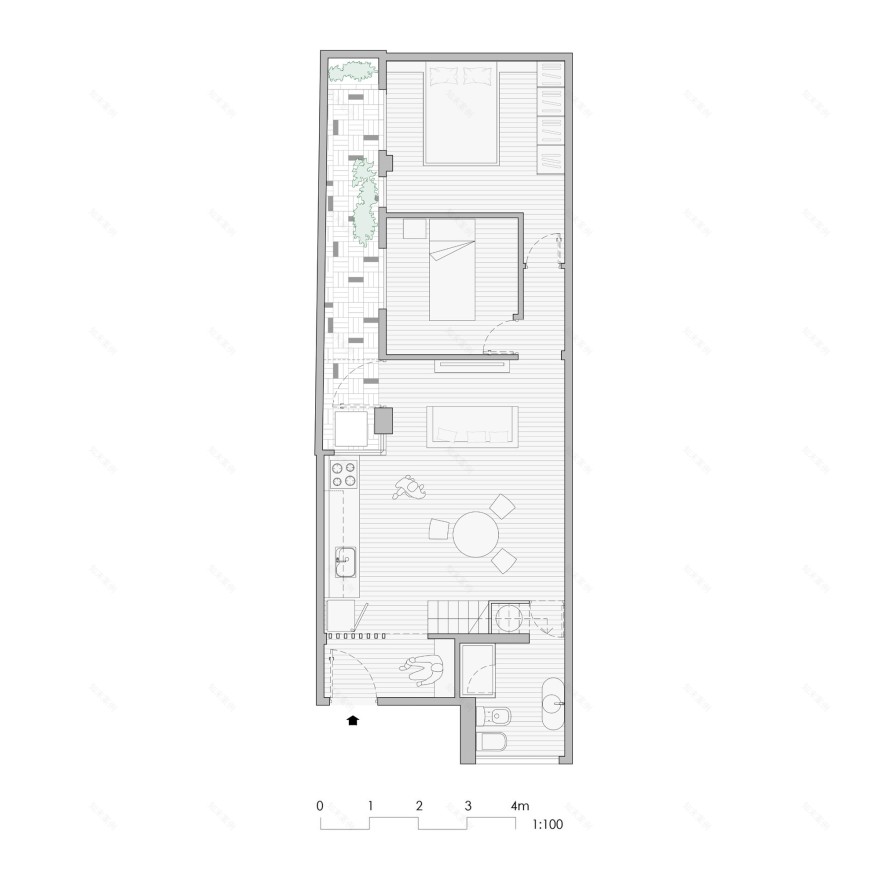
Text description provided by the architects. Our clients chose an old warehouse that had been repurposed as rental housing as the location for their new home. The project was designed with a focus on the vertical plane, emphasizing the original double-height void characteristic of this type of warehouse architecture.
The program is organized around two sides of the central space. A mezzanine with wood cladding optimizes the area, elevating the studio to the top level. Balconies facing the double-height space create a dynamic interplay and enable different uses of the space. On the lower level, the entrance to the house is situated through a hallway with a designated space for shoes and outdoor gear. A hidden door under the stairs leads to the bathroom located behind the hallway.
On the opposite side and positioned against the large wall of polished cement is the kitchen. Designed as an integrated space with wooden elements, the kitchen blends seamlessly with the surrounding volumes to form a cohesive and strategically placed layout.
Project gallery
客服
消息
收藏
下载
最近


















