查看完整案例

收藏

下载

翻译
Firm: Imagina Arquitectos
Type: Residential › Multi Unit Housing
STATUS: Under Construction
:
SIZE: 300,000 sqft - 500,000 sqft
BUDGET: $10M - 50M
Cercado de Lima – Lima downtown - is a historic district from which the city developed into what it is today. It houses heritage properties, important urban landmarks, large green areas and much of our urban history. However, as in many historical centers in the world, its surroundings are replete with low-density buildings.
Urban Park is a residential project designed by Imagina Arquitectos that prioritizes the issue of redeveloping the city center. The architectural design proposes a strategic solution to the lack of housing. The location is very close to the historic city and ITS theaters, museums and parks, and at the same time interconnected to the modern city through sustainable mobility, such as public transport and the important cycle path of Arequipa Avenue.
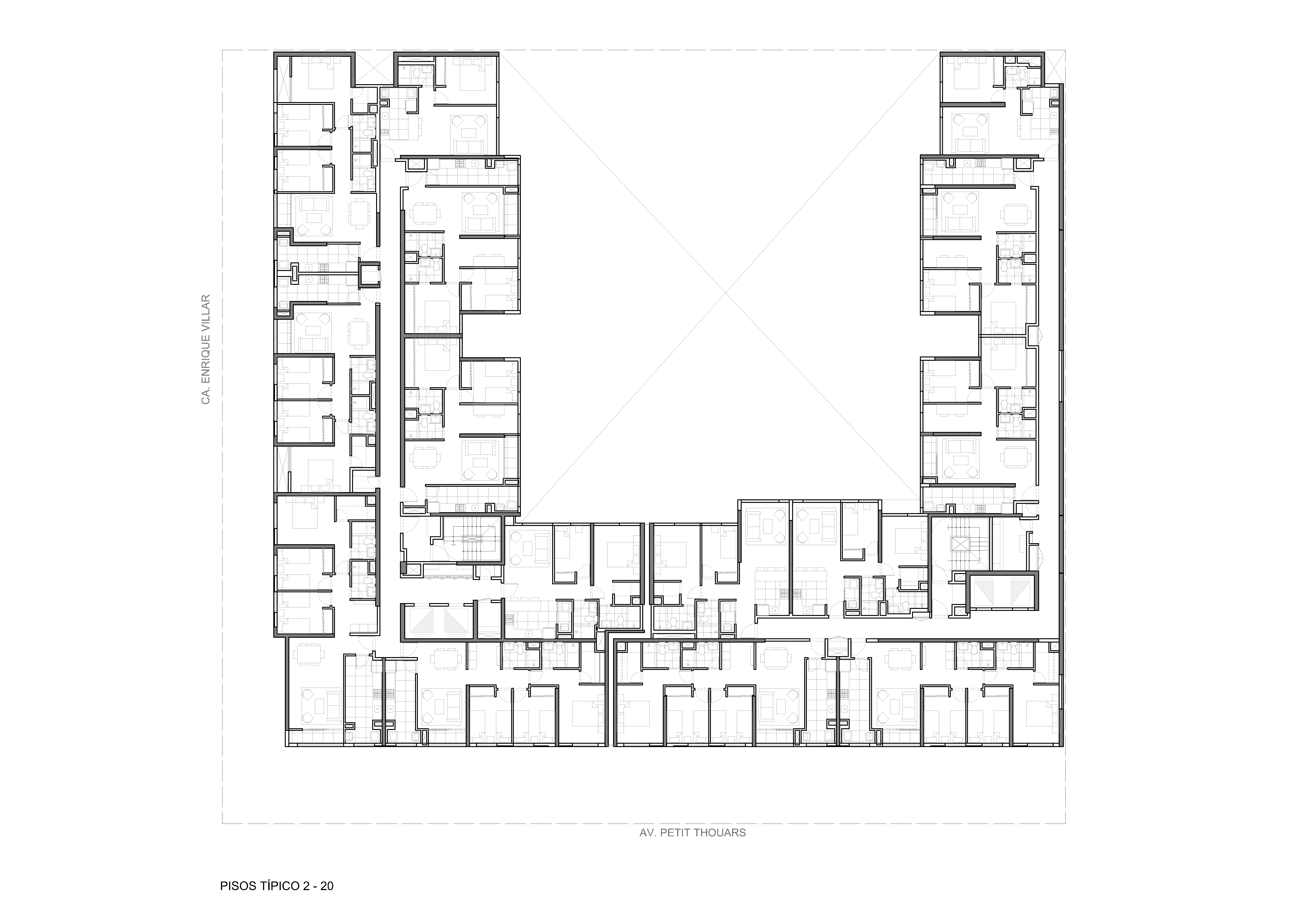
The 20-story building takes advantage of the large corner lot and has a generous interior square designed as an urban park. The design is sober and orderly, setting the tone within the urban environment that surrounds it.
The apartments have been designed to adapt to the needs of different users, from housing apartments for single persons to family homes. Despite this diversity, high design criteria are maintained in all cases, prioritizing the quality and functionality of the interior living space.
The heart of the project lies in the landscaping design and recreational use of the interior square. On the ground floor there are different social areas for the residents, taking into account the variety of needs and desires they might have. On the last floor there is a large terrace with a pool that allows residents to enjoy the view of the city. These spaces have been designed with a high attention to materials and architectural detail, as well as interior lighting. At the street level, the building presents a large entrance lobby and a commercial level that seeks to improve the dynamics of the street on which the building is located.
客服
消息
收藏
下载
最近










