查看完整案例

收藏

下载

翻译
Architects:Schwember García-Huidobro Arquitectos
Area:272m²
Year:2020
Photographs:Nicolás Sánchez
Manufacturers:Arauco,Timber
Engineer:Patricio Bertholet
Architect:Fernando García-Huidobro
City:Chicureo
Country:Chile
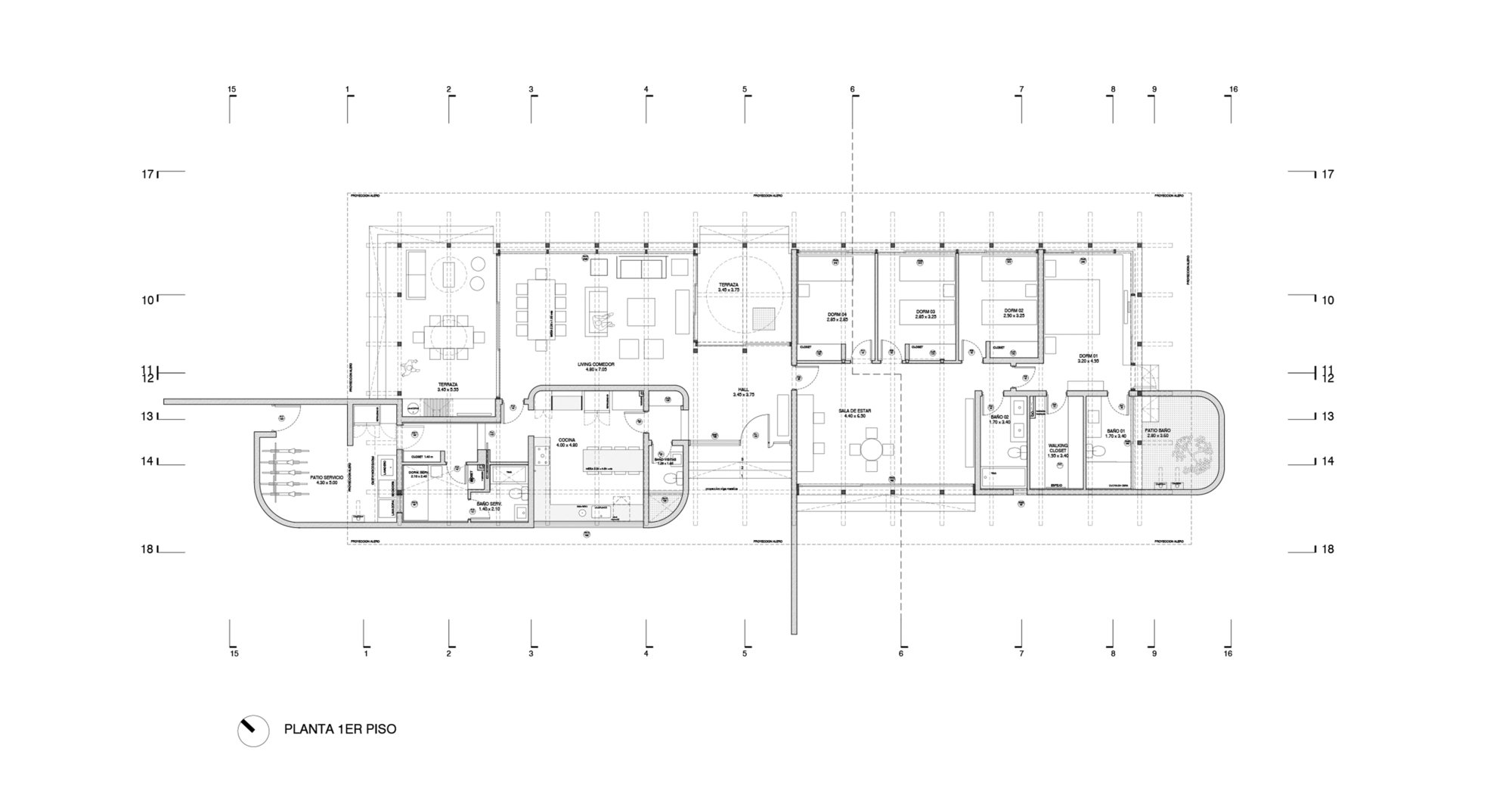
Text description provided by the architects. The Curved Walls House is located on the outskirts of Santiago, in the Chicureo sector. One of the client's main requirements was that the house be as cool as possible, considering the high temperatures that are reached during the Mediterranean summer.
Considering this context, a one-story house facing northeast is proposed, with two premises: building shade and thermal mass.
Shade is achieved by means of a large ventilated wooden roof provided with wide eaves that prevent the entry of the sun in summer. This roof, manufactured with numerical control technology, is structured based on a module that is repeated every 1.8 meters, which is made up of trusses and laminated wood pillars.
The thermal mass is given by the brick walls independent of the roof structure, which delimit the different rooms of the house, organized in two areas; a public area where the living room, dining room and kitchen are located, and a private area that houses the bedrooms.
Project gallery
客服
消息
收藏
下载
最近

























