查看完整案例

收藏

下载

翻译
Architects:En Obra Arquitectos
Area:178m²
Year:2022
Photographs:Mariano Imperial
Project Team:Luis Cisneros, Rosario Hillebrand, Viviana Lloyd, Sofia Falcón, Facundo Casales
Construction:Narciso González
Landscape:Forestal Corina Andina
City:Bosques
Country:Argentina
Text description provided by the architects. Near Pinamar, Partido de la Costa is formed by a series of projects and urban developments, among which is the "Costa Esmeralda" neighborhood. Surrounded by forests and coastal dunes, its longitudinal limits are the Argentinean sea to the east and National Route 11 to the west, which, among other characteristics, encourage its constant residential growth.
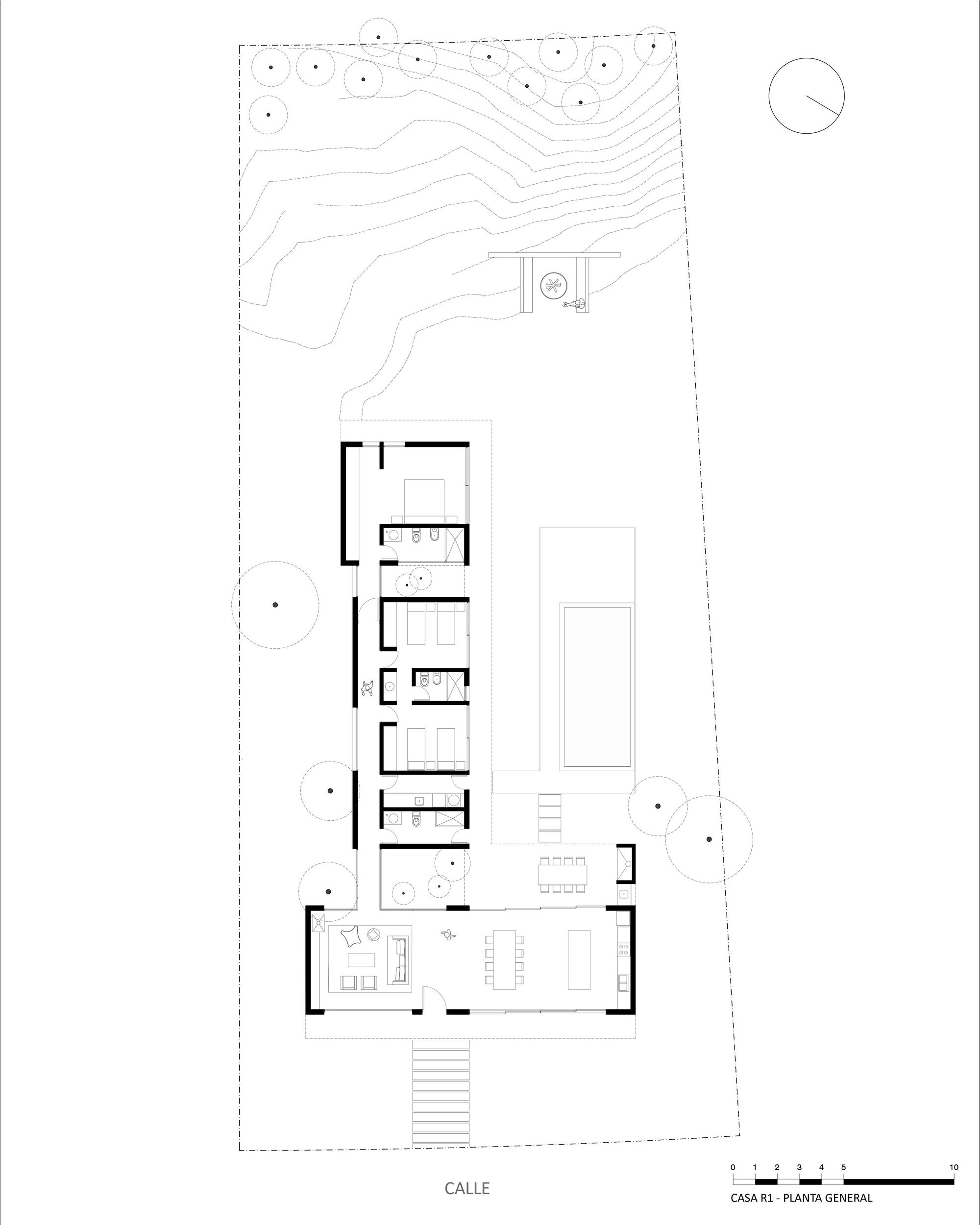
This summer house with "L" implantation is arranged on a rectangular lot that maintains a flat level, and towards the back it rises pronouncing a dune with a significant slope. In addition, there are few but predominant pine trees, which surround the perimeter allowed for construction within the lot, which encouraged later, articulate the spaces through courtyards with a consequent landscape intervention.
The design response seeks to take advantage of the best orientations (north and east), formally generating two perpendicular volumes: the first in a transverse direction arranges the common areas, while the second in a longitudinal direction, the sleeping area. Both are connected by a single glazed corridor to an "interior" courtyard that gives a sense of fluidity and spatial dynamism, and merges both the indoor-outdoor relationship and the functional relationship of the different areas.
As a series, and at the client's request, the functional relationship of the common bedrooms with the en-suite bedroom is affected in the same way. The entrance is interrupted by a glazed corridor where the boundary between inside and outside is lost with a new internal courtyard, to give way to a fully glazed bathroom oriented to it. The entry of natural light and its expansion towards the green with stone background, gives warmth and spatial freshness, we call it "a bathroom to reflect".
The exterior-interior spatial continuity is achieved from fully glazed planes in the front and back facades that open and connect the house, with a constant but controllable visual and spatial permeability. In this way, the social area is experienced as a gallery of crossed views where the sliding enclosures will allow its functional connection so that all kinds of activities can be developed comfortably.
For the concept of summer housing, materials that do not require constant maintenance are fundamental in the coastal area, combined with a mixed construction process that emphasizes the purity of materials, such as exposed concrete and balsamic stone.
The carpentry materialized in black anodized aluminum gives its own brightness and transparency. The furniture chosen and designed integrally throughout the house, was manufactured entirely in paradise wood, enhancing the synthesis of nobility and neutrality that seeks to convey the house in its functional and formal totality.
Project gallery
客服
消息
收藏
下载
最近






















