查看完整案例

收藏

下载

翻译
Architects:Andrew Franz Architect
Area:2500ft²
Year:2019
Photographs:Albert Vecerka/Esto
Manufacturers:American Bluestone,Duratherm,Heath Ceramics,Petersen brick,Vermont Soapstone Co.
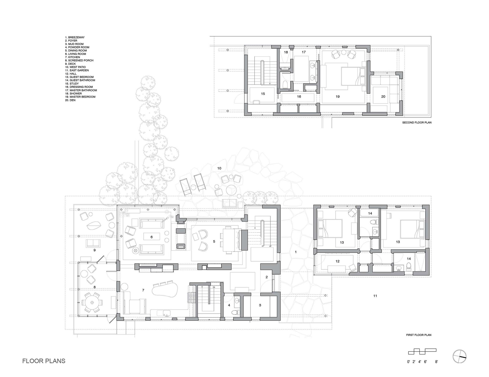
Text description provided by the architects. Perched on a bluff overlooking the water, this sustainably designed house on Long Island’s East End is a serene year-round retreat. Living spaces open outward toward the landscape, catching cool breezes and lapping waves in summer, and in winter orient inwards toward a cozy two-sided fireplace and warm wood paneling.
Broad cantilevered overhangs create dramatic external rooms while providing additional shade from the summer sun. The house is contemporary but makes distinct reference to the modest early-modern dwellings that inspired the client.
The house is uniquely situated between a wooded forest on one side and a bluff overlooking a sandy beach and the water’s edge on the other. Prioritizing views and connections to the natural environment, each space is oriented to maximize the experience of the surrounding nature, sunlight, and water views. The house is kept low, stepping down with the terrain rather than interrupting the tree line, to minimize its presence on the site.
The wide eaves on the flat roofs extend the house’s proportions horizontally, making the two-story dwelling look smaller than it is and allowing it to dissolve more gradually into the surroundings. Viewed from the water, the house almost disappears.
The boldest gesture, a cantilevered porch supported by a large board-formed concrete pier and board-formed retaining walls, is gently revealed only from the back.
A familiar regional palette of red cedar, copper, and bluestone belies the sophisticated passive house strategies and construction methods incorporated, which include thick insulated framing, a continuously insulated envelope and energy-recovery ventilation, and a green roof that provides both a visual reward and environmental benefits.
Carefully detailed construction of a limited material palette supports the vision of a high-performing home to serve generations.
Project gallery
客服
消息
收藏
下载
最近























