查看完整案例

收藏

下载

翻译
Architects:PXP Design Workshop Co
Area:700m²
Year:2022
Photographs:Greg Mayo
Manufacturers:Aoceres,Kaufmann,Kblanco,LIXIL
Lead Architects:Patrick Espiritu, Spencer Sy
Landscaping:Plontur
Program / Use / Building Function:Residential
City:Ciudad Quezon
Country:Philippines
Text description provided by the architects. Often regarded as the “screen house”, this tropical home in a private village in Quezon City, Philippines was designed for a small family of 4— the couple, both businessmen, and their two children who are both in college. The Screen house will be the second house of the family. They felt that their first home was inadequate for their growing lifestyle, so they decided to build a second house. This time, addressing a new design brief according to the lifestyle that they want to achieve; a tropically responsive, relaxing vibe, and bigger spaces. This resulted in the conception of the “Screen House”.
The new house sits on a rectangular lot, slightly sloping and bounded by neighbors on its 3 sides. The site’s frontage opens to the west where an array of lush trees planted on the opposite side of the street becomes the visual focal point for this project. To take advantage of the focal view on the west side, the architects’ solution is to orient the spaces of the house to face west and introduce full-height windows to preserve the visual connection of the spaces with the lush trees across the street. The challenge however is that since the house will be oriented facing west it will receive the harsh gleam that naturally results in excessive heat gain.
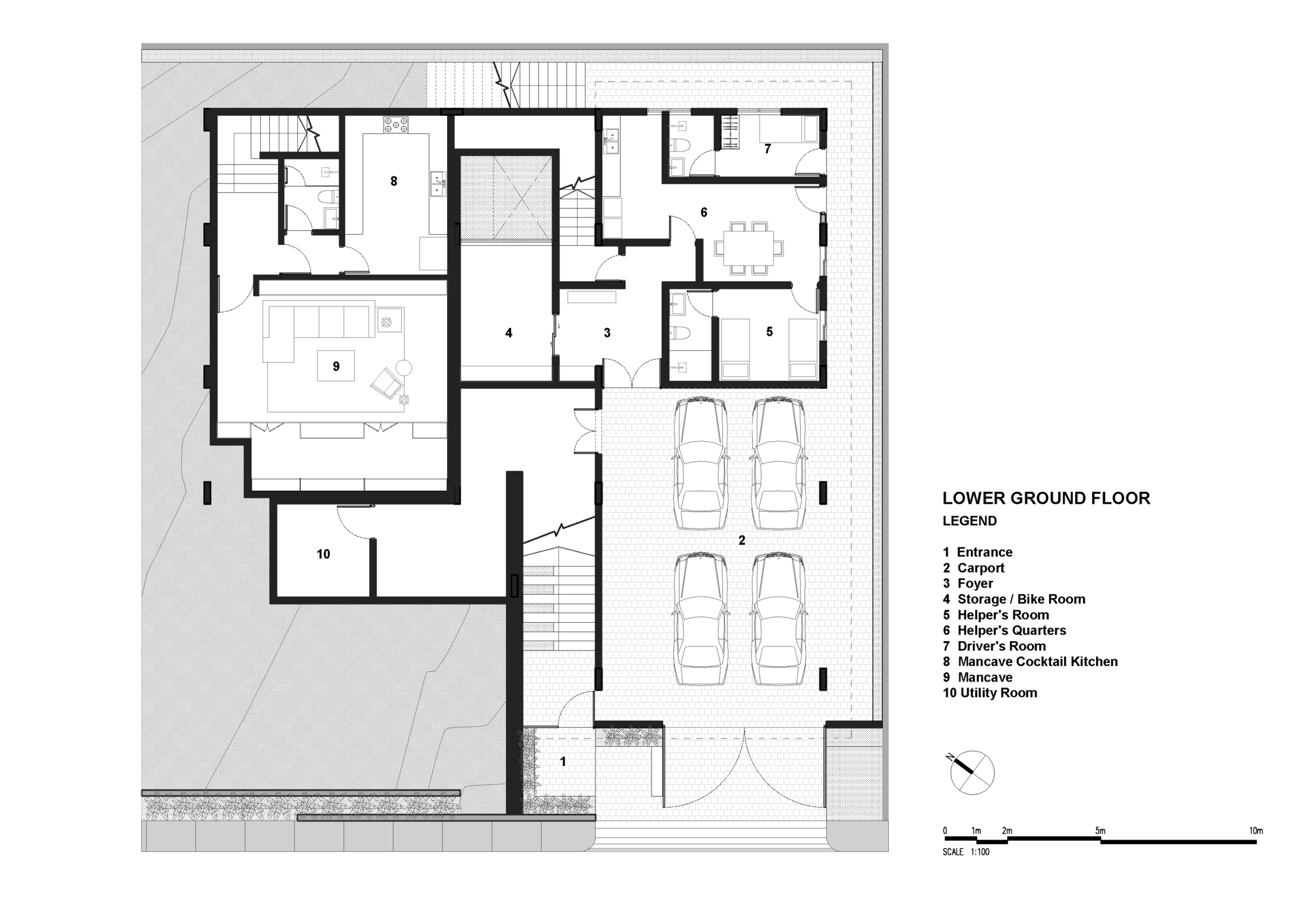
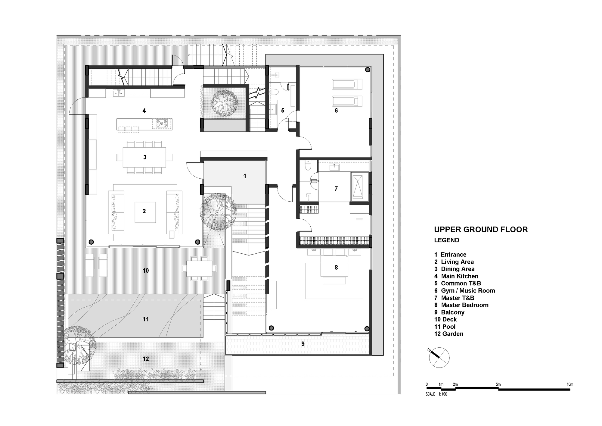
As a response, the architects introduced overly extended eaves and timber louvers that act as a brise-soleil in the facade. These louvers were primarily added to filter the midday sunlight into the house but still provide adequate vision from the inside. With the secondary intent to obscure the users out of public view, the screens provide privacy inside whilst keeping the house naturally ventilated. This veil of locally sourced teak wood is mainly a response to what the architects consider as the puzzle aspect of the project. To further heighten privacy, all the main spaces were elevated away from the gaze of passersby. All the service areas are put on the lower ground floor which meets the street level while being partially embedded underground. The ancillary spaces put at this level become a pedestal for the main areas on the upper ground floor while the second floor is reserved for the family area and the other bedrooms. All these design techniques give a clear vision to the line of trees fronting the property while shielding the inside from intense heat and from public view.
The exterior, enveloped in wood and stone, appeals to clients who wanted a timeless but warm vibe to their home. The components of its exterior landscapes are sparsely carried out in pockets between the living spaces. The interior is kept predominantly open but lush landscaping and beds of gravel were used to create visual separation, implying the transition from one area to another. Finishing the house with the addition of locally made furniture, complemented by hand-picked accessories perfectly suited the request of the clients to complete a vibrant yet welcoming feel to their home.
Project gallery
客服
消息
收藏
下载
最近
























