查看完整案例

收藏

下载

翻译
Architects:COM/O atelier
Year:2020
Lead Architects:Joana Duarte
City:Caniço
Country:Portugal
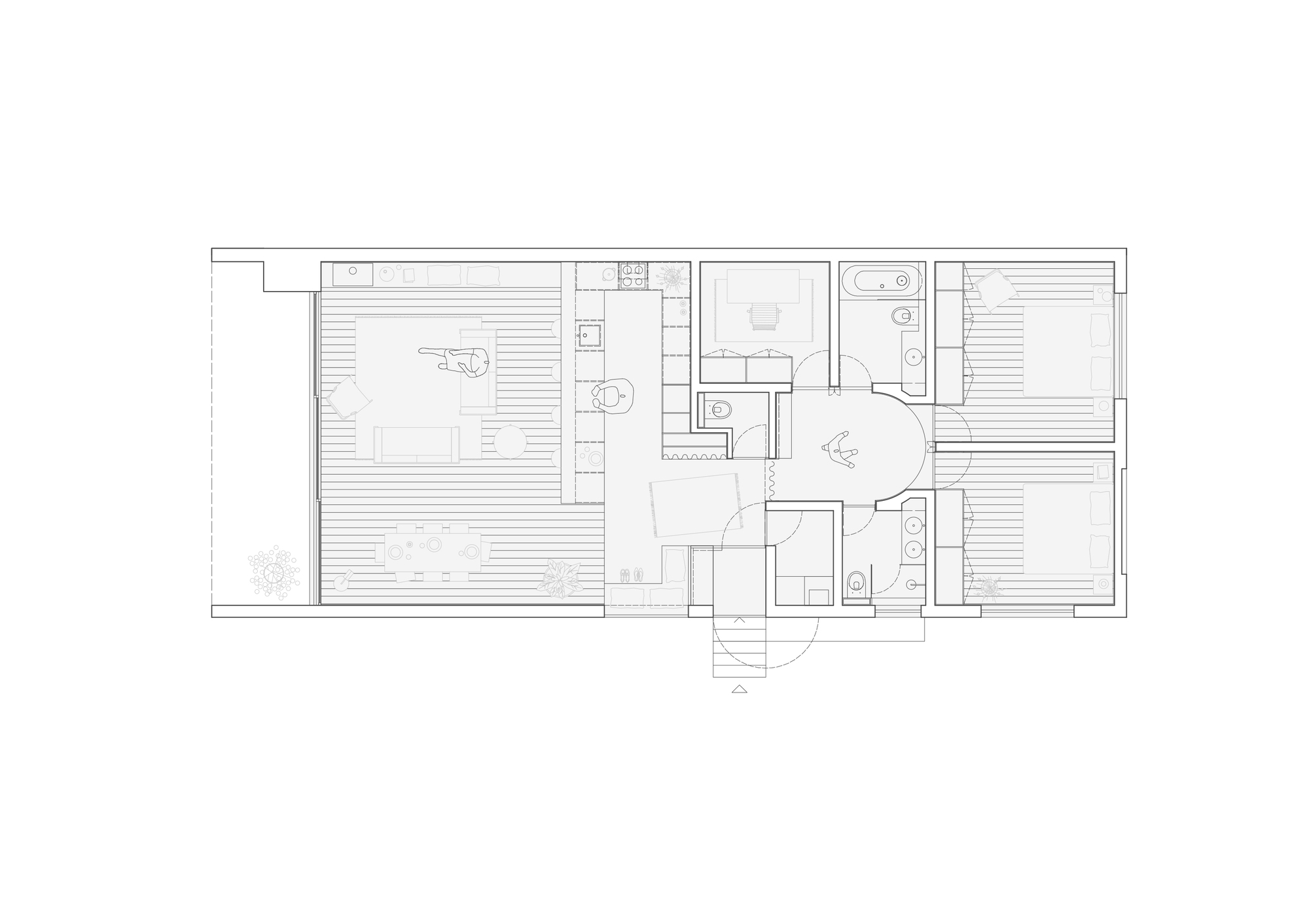
Text description provided by the architects. Vila Venus Sol is a house located in the area of Caniço de Baixo on Madeira island. Being a renovation whose original project from the 1970s did not have characteristics of particular interest and whose construction was of inferior quality, the option was a total intervention through a “tabula rasa” operation. Thus, the entire interior was demolished, the outer envelope was consolidated and its original volume restored in order to take advantage of the high ceiling provided by the existing sloping roof.
Inserted in an exceptional location, right in front of the sea, overlooking the Atlantic Ocean, the house seeks to bring the landscape to its interior while aiming to control the intense sunlight in the region. In this sense, the windows are designed through several layers that constitute light filters that control the house's luminosity and temperature. At the same time, these filters transpose the green surroundings into the interior through reflections and shadows.
In terms of its organization, the longitudinal axis North-South establishes a gradation between spaces of a private nature and spaces of a social nature, between shadow and light.
Project gallery
客服
消息
收藏
下载
最近



















