查看完整案例

收藏

下载

翻译
Architects:Wenink Holtkamp Architecten
Area:495m²
Year:2022
Photographs:Tim van de Velde
Manufacturers:Glazing Vision,Keller,Rockwool International A/S,Schüco,Sky-Frame AG,Velux
Contractor:De Wit van Loon
Interior architects:Baas Kleinbloesem
Construction:Van de Laar
Project Management:Bureau Franken
Landscape architects:Vis-a-Vis
Design And Supervision:Ferdy Holtkamp, Jan-Peter Wenink
Technical Drawings:Rick Zwerver
Country:The Netherlands
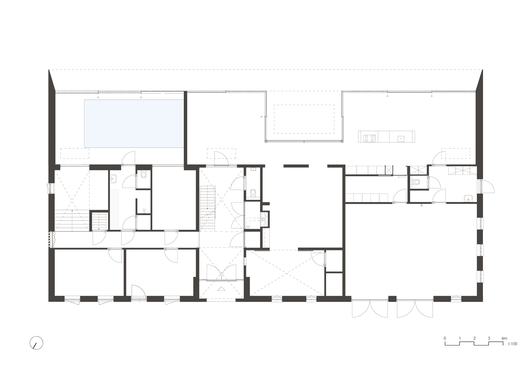
Text description provided by the architects. This typical dutch long-gabled farmhouse is located in a protected village and has cultural and historical value. For the renovation, we designed the farmhouse in such a way that towards the village, the historic appearance is preserved and strengthened, but towards the spacious and deep backyard the building unfolds as a modern villa. Both on the outside and on the inside, a contrast has been applied: between historic and contemporary, between seclusion and openness.
A unified extension across the full width of the long-gabled farmhouse brings a modern layer and an ideal connection to the outdoors. After all, it was the client's wish to involve the garden as much as possible in their daily life.
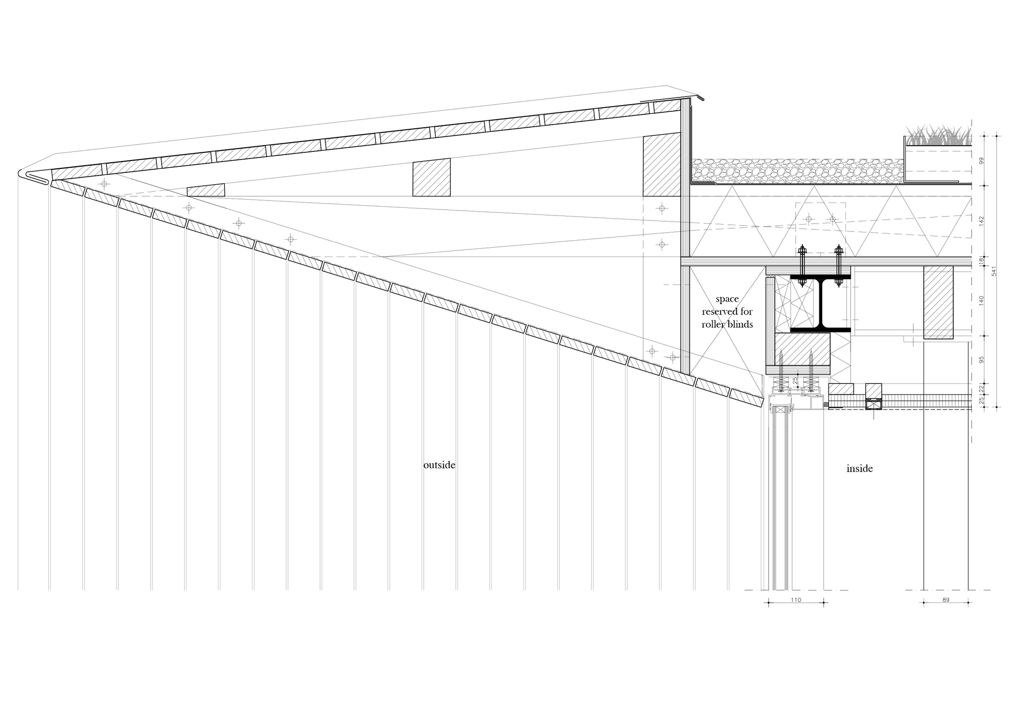
Residents can now choose the enclosed cozy spaciousness of the historic farmhouse or opt for the open connection to the garden. A wide wooden overhang frames the glass facade and provides shade.
The mixture of different ambiances and of materials makes this design unique in its spatial experience. No space is the same and all have their own qualities. The meeting of modernity and tradition not only comes together in the architecture but is also carried through in all the details of the interior.
Project gallery
客服
消息
收藏
下载
最近






























