查看完整案例

收藏

下载

翻译
Architects:Marina Vella Arquitectura
Area:386m²
Year:2022
Photographs:Lorena Noblecilla
Architectural Design:Marina Vella CAP 5700
Collaborators:María José Gaitán, Diego Cárdenas, Carolina Neuhaus
Special Design:PLANEA ingeniero Javier García
Construction:AREAR Servicios Generales Ingeniero Raul Echegaray Lic. Rebeca Diaz Grados
Landscaping:Marina Vella arquitectura + Vivero 4 estaciones
City:Irrigación Santa Rosa
Country:Peru
History and Place. 105 km north of Lima, where the Andean foothills reach the coastal desert, we enter the Santa Rosa Irrigation Valley, a valley where groundwater generates lush vegetation that is the habitat of a great variety of birds. Surrounded by this idyllic landscape is the Camponuevo farm, which has specialized since 1981 in raising fighting bulls, Peruvian Paso horses, fighting cocks, and free-range hens.
A few years ago the owners decided to subdivide a part of the farm to share this place with friends and family. To create the new lot, the original access road to the farm was moved, thus leaving the old avenue of leafy ficus trees within the new lot.
One of the requirements of the original owners for the development of Campo Nuevo 2.0 was that the architecture of the new houses would have features that communicate with the existing buildings and integrate into the landscape.
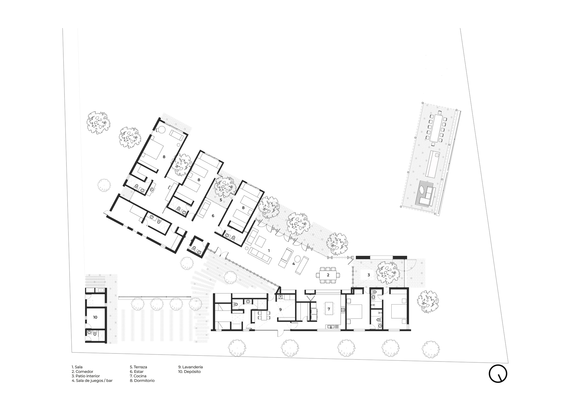
Program and Guidelines. The lot with a flat surface and visual amplitude towards the farm has an area of 3,531m2. Two of its sides adjoin the vehicular, pedestrian, and cattle roads that organize the farm. The old boulevard crosses the upper part of the lot, manifesting itself as a trace of time and the farm's history.
As the solar route is opposite to the direction of the view towards the field, high windows and voids in the volumetry were used in order to frame the views to the south and catch the light that travels from east to west.
The owners contemplate an extensive program, where activities must take place both indoors and outdoors and many visitors must be accommodated simultaneously. At the same time, pedestrian entrances must be contemplated through the road that connects with the existing houses and vehicular entrances through the entrance road to the farm.
The proposal breaks down the program into five zones; guest, social, private, technical, and outdoor social area, where each one of these parts are located according to the use, articulating the context, the views and the line of the seven trees of the old boulevard that crosses the terrain.
Thus the volumes are coupled to the axis of existing trees, achieving a play of solids and voids where the first tree defines the pedestrian entrance patio and connects with the guest bedrooms, while the next three accompany the terrace of the social area. The sixth tree defines a patio between the two children's bedrooms and the living room and the last one frames a garden attached to the master bedroom.
The different environments of the house are protected from the high temperature of the area by the shade and freshness produced by the treetops. In turn, the wind over the trees produces a musicality that accompanies the inhabitants in each environment.
The Materialization. To define the materials and construction techniques to be used in the construction, the existing buildings on the farm were studied, thus discovering the bricks manufactured in situ using the layer of gravel sand that characterizes the composition of the soil and artisan molds made with black iron plates. The second constructive technique to use was the quincha, a traditional constructive system of the Peruvian coast that combines wood, reeds, and earth.
In accordance with the relationship with the environment and the spaces that contain the volumes, the selected materials and construction techniques constitute a skin over the house. Thus, the sides of the lot attached to the roads, which receive a greater amount of solar radiation, were built with handcrafted bricks finished with tempera paint as they are resistant to humidity and high temperatures, keeping the interior of the rooms cool.
To define the volume of the social area, the quincha technique was used, starting from a structure of columns of the walls and ceiling beams in certified Huayruro wood which is resistant to the climate of the area, this material generates fresh environments and verticality of the wooden structure, helps to highlight the verticality of the space. In the buildings of the outdoor social area, reeds and eucalyptus trunks grown on the farm are used.
Project gallery
客服
消息
收藏
下载
最近


























