查看完整案例

收藏

下载

翻译
Architects:Vitório Ecker Arquitetura
Area:1110m²
Year:2022
Photographs:Gabriel Konrath
Manufacturers:BTC Construtora,Bella Pietra,Concretar Concreto Usinado Ltda,Esquadrias João Schwanck,Gramoterra
Lead Architects:Vitório Ecker
Collaborator Architect:Catiele Pires Martins
Colaboradoras:Keite Bittencourt, Cristine Barchinski Bauer
Structural Engineering:Moises Maciel Vitoretti
Electrical Engineering:Celso Rosa Júnior
Landscape:Gramoterra
Lighting:Lucce Consultoria
Interiors:Stemmer Rodrigues Arquitetura
Country:Brazil
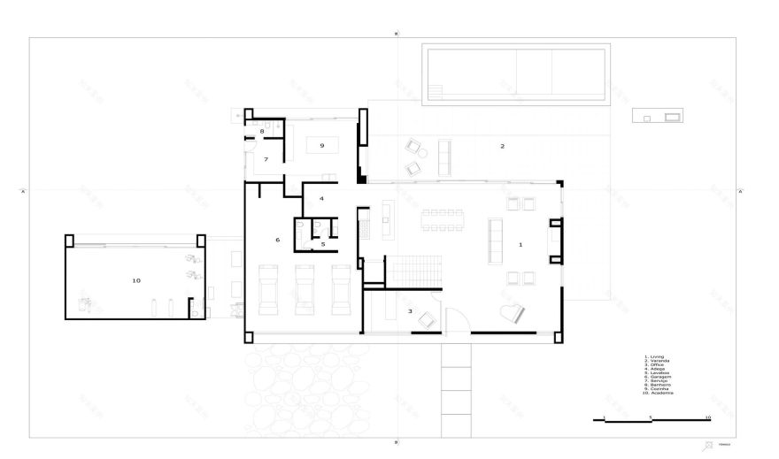
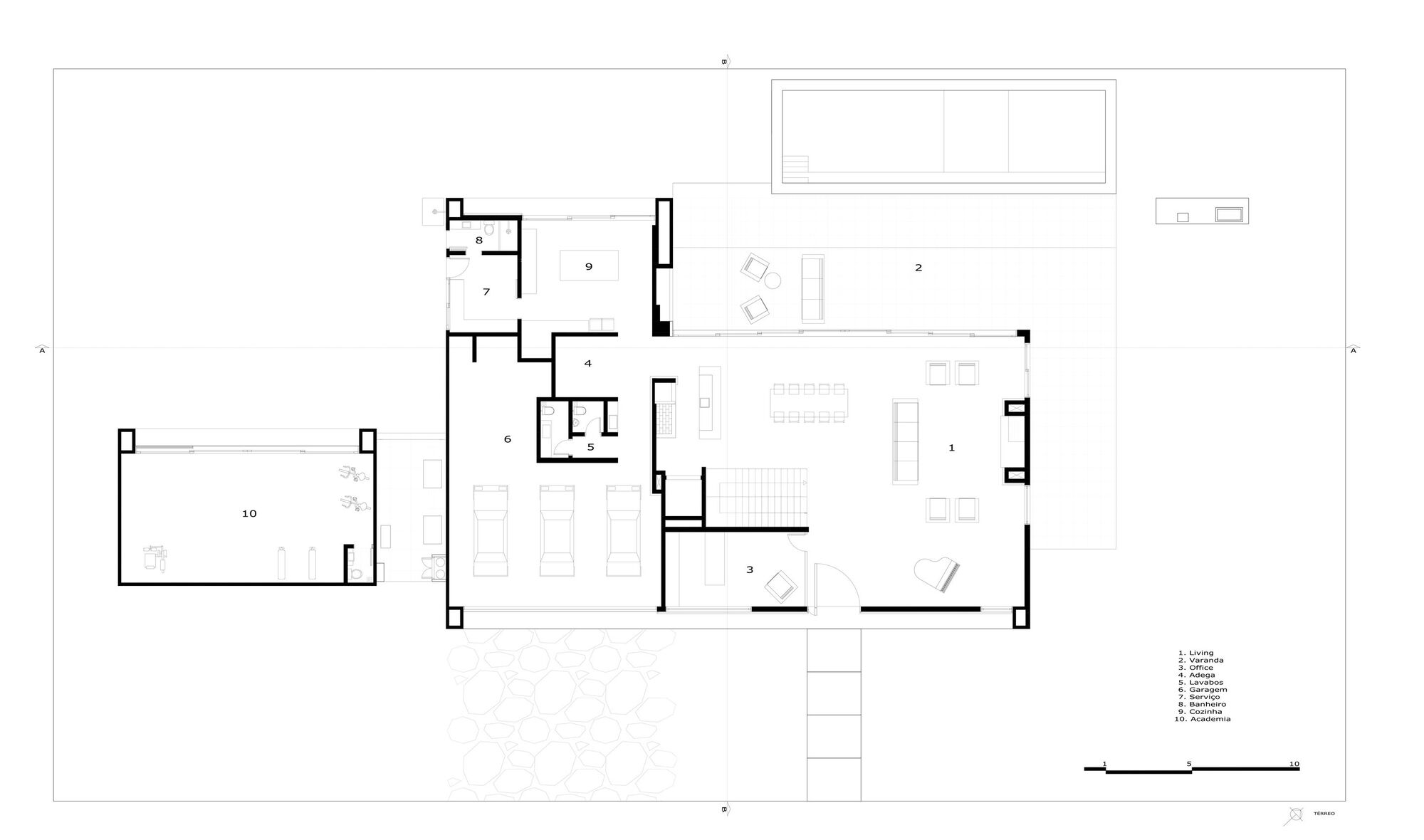
Text description provided by the architects. With minimalism as a premise, the project basically consists of three volumes of raw concrete, arranged on the ground in a hierarchical way, dividing into intimate, social /service, and fitness. The project was designed to be aesthetically harmonious and functional, the volume that houses the private part is superimposed on the volume of social/service, and displaced in order to create a contemplation deck for the sea on the second floor on the front facade and 4m wide balcony on the back facade. The fitness volume is displaced from the rest, amid vegetation, it is an exclusive use space of the owners with privacy and a vast green area in the back.
The position of the house's rooms was an equation calculated to follow the best solar orientation, plan of needs of the owner, and use of the green area of the condominium. The main rooms, the suites, and the living room were all facing the lake and sunset. The porch with an integrated external fireplace was one of the most important requests. It was located in order to be sheltered from the south wind of winter and to confer shade necessary in the summer, having the same level of the living room, and making the transition between the internal and external so that the whole house appeared to be a large balcony on hot summer days. The outdoor area is totally focused on leisure, with a 70m² pool, Parrilla space, and lawns. The materiality follows the minimalist line, practically all the external walls are in apparent concrete, only where there are openings, glass was used and, to obtain necessary privacy, the slatted wood overlaps certain openings, which composes harmonically together with landscape design.
The living room of the house has a free span of 16m followed by a 4m swing on the balcony, to structure all this so that there was no loss in aesthetic harmony with high beams, the responsible for the structural design used pro-technology tension, where steel cables are fixed in certain positions within the structure before concreting, and during the curing of concrete are gradually stretched, so as to increase the strength of the structure. In large-area residences, the biggest challenge is to have a cozy home of functional, the goal was achieved with the choice of the best flowchart according to the constraints of the land and plan of needs of the owner.
Project gallery
客服
消息
收藏
下载
最近


































