查看完整案例

收藏

下载

翻译
Architects:BASIO
Area:70m²
Year:2022
Photographs:Bayu Ariyanto
Manufacturers:AGROB BUCHTAL,Jotun,Toto,Woodlam Indonesia
Principal Designer:Bayu Ariyanto
Architecture & Interior Design:Rizki Nurkarim, Mirza Annisa, Andi Maulana
Structure Engineer:Handiyanto Dwikarya
Contractor:Concorde Studio
Program / Use / Building Function:Villa
Country:Indonesia
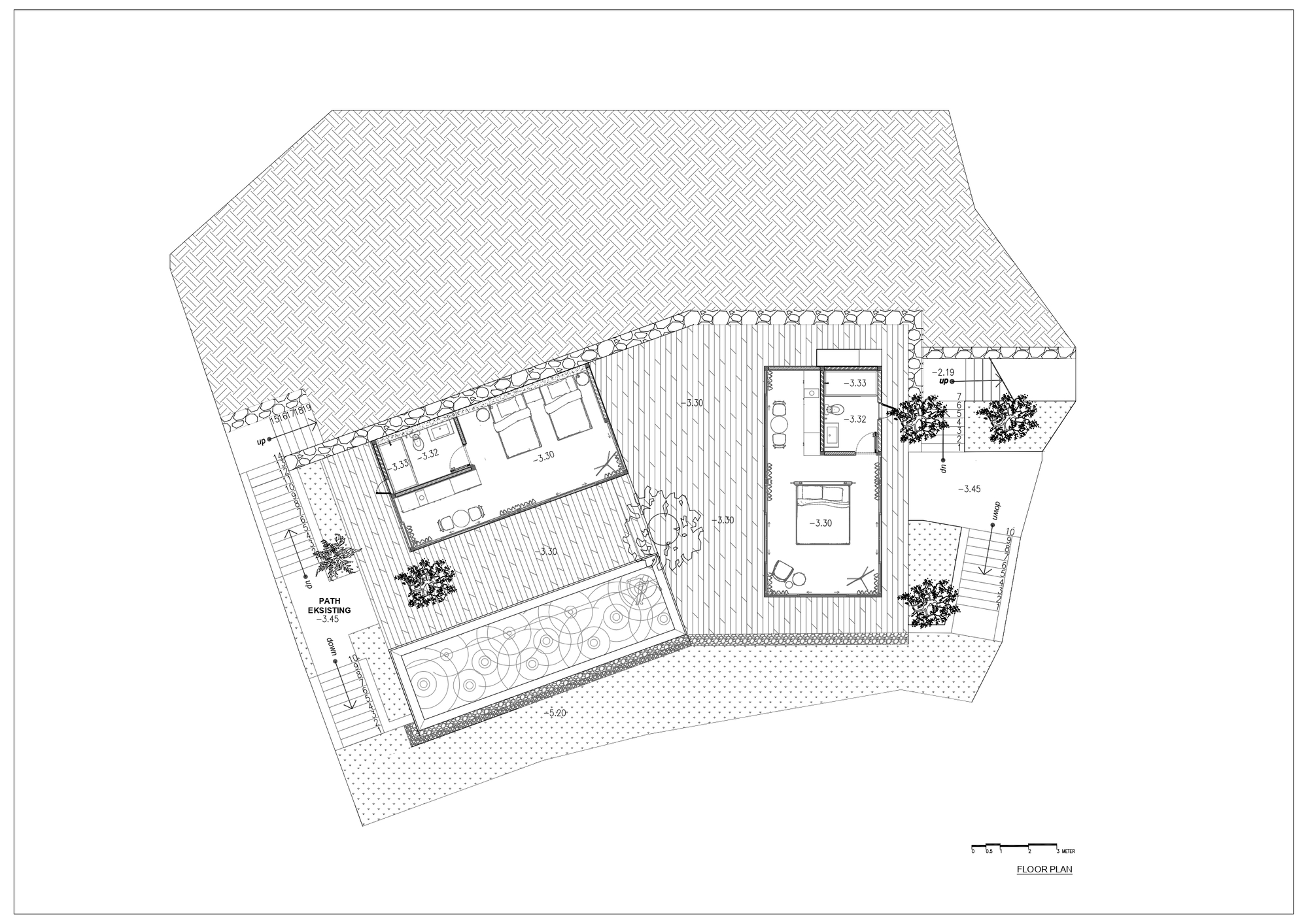
Text description provided by the architects. Sawasae Bunisari is a residential building project for a private client, located in Cijambe, Bandung. The building takes the form of a villa or vacation house, located on the client’s family-owned land.
The villa is situated on a landscape with uneven contour and adapted around it. To maximize the field of view from the indoor areas, the buildings are split into two and constructed in a V-shape, with full height glass walls overlooking the rice fields around the area to allow a good amount of natural light to go in. Interior for the indoor areas are made out of concrete and wood. The interior features a bed, living room, kitchen, and bathrooms. In the outdoor area between the buildings is a communal space, with a table to gather around on.
The roof of the villa is designed to be a garden, making the building blend with its surroundings. Flooring for the outdoor area is made from wood and the surrounding walls are made from stones, emphasizing the harmony between the villa and nature. In the upper garden and lower outdoor area, a number of trees are also planted.
The villa also features a pool, which is placed at the edge with a wide deck, adding the impression of a private resort while also allowing for a full view of nature. Overall, the villa is designed for the residents or visitors to immerse themselves in the beauty of what surrounds them.
Project gallery
客服
消息
收藏
下载
最近





























