查看完整案例

收藏

下载

翻译
Architects:elton_léniz
Area:302m²
Year:2019
Photographs:Marcos Mendizábal
Manufacturers:MK
Architects In Charge:Mauricio Léniz, Mirene Elton, Rodrigo Fernández, Scarlett Greco
Structural Engineering :Alberto Ramirez
Sanitary Installations:Patricio Vega
Electrical Engineering :Carlos Gana
Energy Efficiency:Olivia Sepulveda
Lighting Design:Studio Par
Climate Installations:Nortem
Landscape:Fernanda Larraín
City:Lo Barnechea
Country:Chile
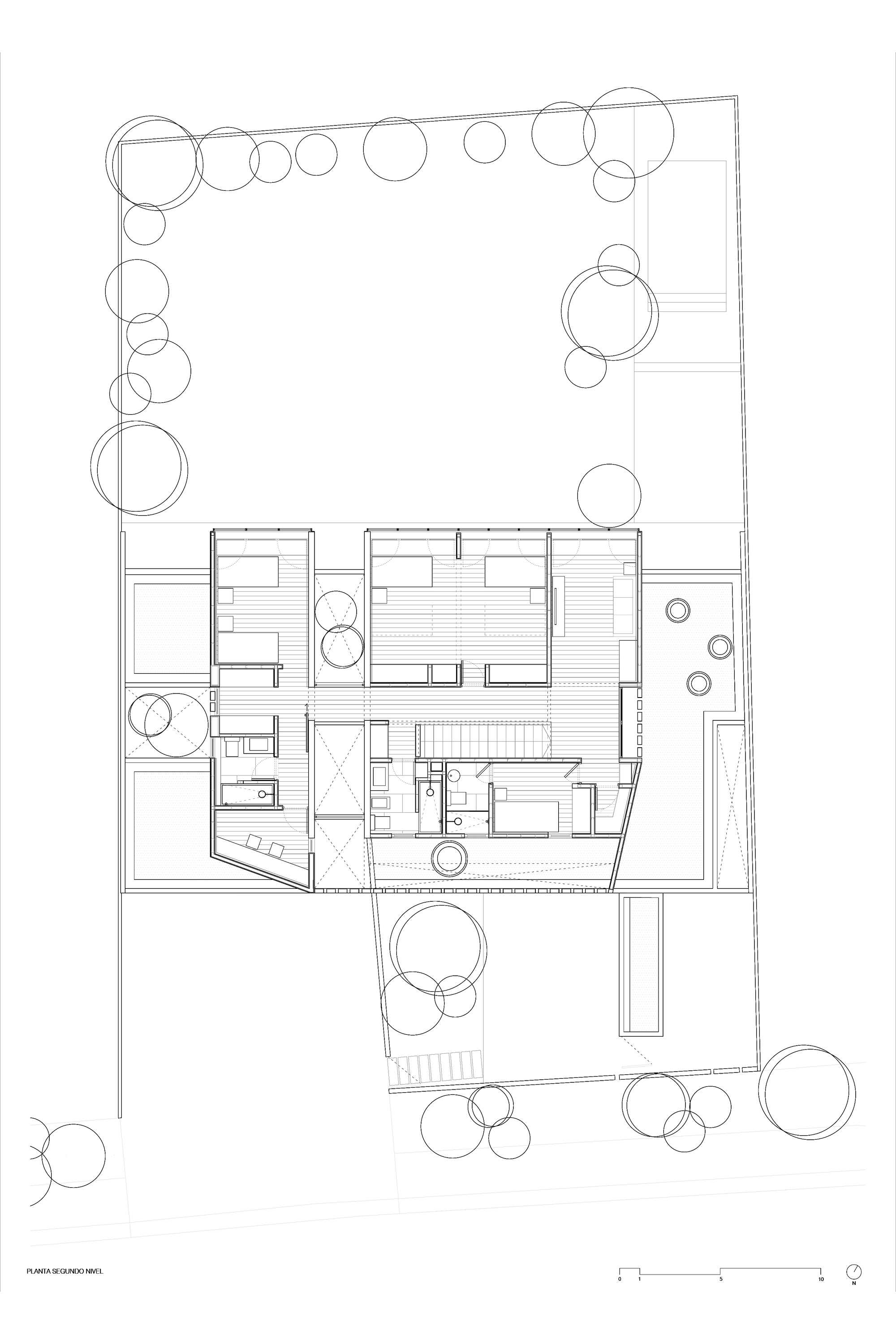
Text description provided by the architects. The design of this single-family home is part of a private condominium of two family groups that together developed an urbanization of 17 plots of between 650-750 m2. Each family could develop their own project framed in the condominium regulations.
Four young families entrusted us with their projects. Although the programs had many similarities in the description of venues and their relationships, it was the identity of their imaginaries where the most radical differences appeared.
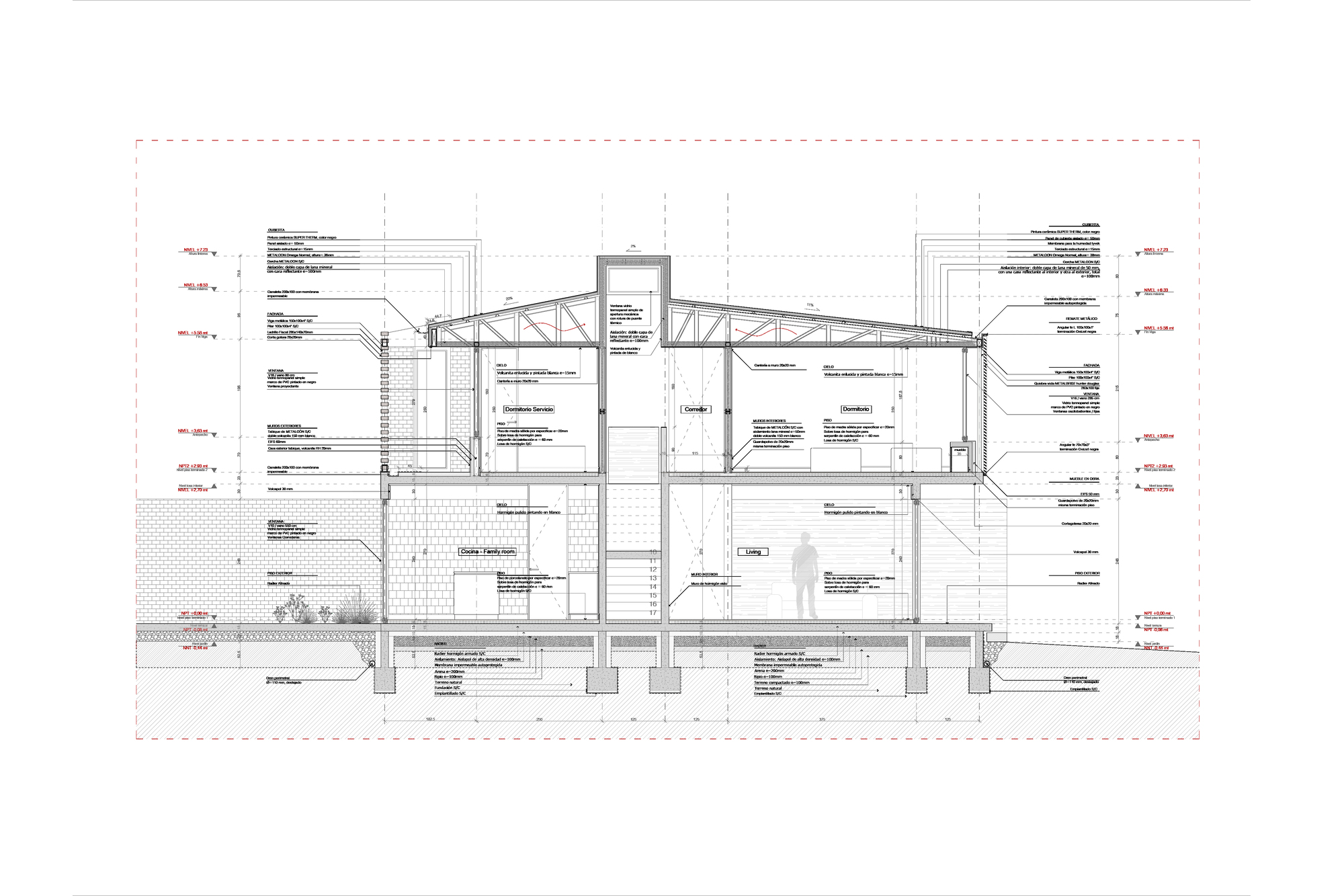
In this particular house, the use of the material was the direct translation of the architectural language of the object. The use of brick as the predominant material was an initial decision that informed the project throughout its development. The handmade brick was chosen for its tectonic expression, color, and constructive possibilities.
In the final volume, the brick solves a large part of the envelopes, including the development of latticework as a light and privacy filter, as well as geometric reliefs to accentuate light and shadow.
The brick and its craftsmanship are part of a constructive tradition inherited from adobe, with objective properties of economy, expression, and duration over time.
Project gallery
客服
消息
收藏
下载
最近























