查看完整案例

收藏

下载

翻译
Architects:SMxL Architects
Area:114m²
Year:2022
Photographs:Hanbit Kim
Manufacturers:American Standard Korea,Haemil Kitchen Furniture,KIM JONG CHUL TILE,THE JOHN TECH
Lead Architects:Sangmin Lee
Structural Engineer:Archfeel Structural Egineering
Construction:Tae Young Engineering&Constructin
Manager:JeongHoon Shin
Staff:JeongIn Kim
Landscaping:Jogyeongsanghoi
Program / Use / Building Function:Single Family House
City:Yangsan
Country:South Korea
Text description provided by the architects. The Yangsan Panorama House is built upon a plot of country land that was originally covered with woods. The plot was cleared and leveled using reinforced soil blocks. Prior to this, the land had a 4-meter dip in elevation, which is now at an even height. The Yangsan Panorama House overlooks the Dangchon reservoir and has a stunning view of the mountains, which cannot be seen from the road. According to the owner’s wishes, the interior and exterior of the house were built with solid materials that make for a rather simplistic and minimalist design.
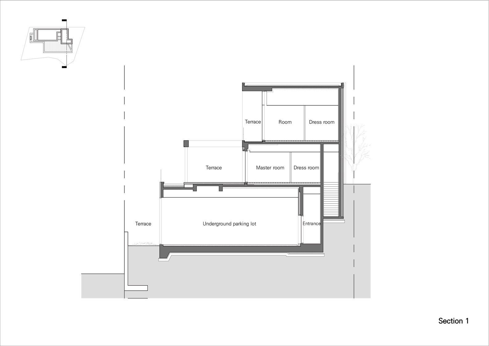
From the outside, the Yangsan Panorama House seems large and vast. Surprisingly, however, excluding the underground floor, the total ground area is less than 214m2. The main gate can be found on the underground floor beside the driveway. After walking up the staircase from the underground floor, a panoramic view of the Dangchon reservoir and the mountains can be seen from the bedroom, the living room, and the kitchen. Above the front window, large concrete louvers protrude from the wall in varying lengths, depending on which room they are protruding upon. These louvers block any bright sunshine from the front terrace and the entire first floor. On the second floor, there are 3 bedrooms. Each bedroom has access to a terrace where you can relax and enjoy the countryside view.
Two Courtyards - The Yangsan Panorama House has two courtyards. The first is a glass-paned courtyard that is visible from the living room. This courtyard is located between the living room and the main bedroom, and it enhances the views from the living room. The garden is flat and has no trees or foliage order to leave the view of the beautiful scenery from the front window unobscured. In addition, is it possible to determine the time of day and the season from the shadows cast by the louvers. The garden has no trees, but the courtyard is filled with small trees and moss to bolster the feeling of nature in a refined space. The second courtyard is a small, triangular courtyard right outside the main bedroom’s shower. The walls of this courtyard are made of concrete and allow for privacy while still enabling one to feel outdoors under the open sky.
Sandwich Insulation, Exposed Concrete, and Chipped Concrete - The owner prefers the hard, solid nature of concrete; therefore, the sandwich insulation exposed concrete method was used when constructing the walls to ensure that concrete exposure was visible from both the interior and exterior of the house. The house was designed to have exposed concrete with different textures to fit the characteristics of each area. First, the ground floor next to the road is constructed like a stereobate and supports the whole building. This ground floor has a stone-like texture that gives the house a solid impression, which the owner desired.
The exterior concrete walls of the ground floor were chipped to give a rough texture to the walls. The chipped concrete wall texture was done by hand. An EPS mold (depth 35mm, width 20mm) was built to cure the concrete, which was then chipped and textured manually. The exterior of the first and second floors was made with board-formed concrete in order to give a wood grain texture while simultaneously maintaining the use of concrete. Raw concrete was used for the inside walls to maintain the concrete aesthetic throughout the whole building. However, this concrete was highly in order to make the concrete’s surface smooth to the touch. The Yangsan Panorama house was designed with a variety of concrete textures in order to maintain a hard aesthetic without making it too uniform.
Concrete Louvers - The main bedroom, living room, and kitchen all have large, connecting windows that overlook the scenery, and this makes for a picturesque, panoramic view from the front of the house. This was designed in accordance with the owner’s wishes. The panoramic windows facing the south can create dazzling displays of sunlight entering the house. However, too much sunshine entering the house could become uncomfortable, so it was necessary to be able to control the amount of sunshine that passes through. Therefore, large concrete louvers (7.5m long at max length) were constructed above the panoramic window and connected to the terrace’s upper part. The louvers not only control the amount of sunlight entering the house, but they also add to the hard, concrete aesthetic of the house and cast a variety of shadows.
Project gallery
客服
消息
收藏
下载
最近

































